110 Larimar Circle, Ottawa, Ontario K1X 0B6

Listed for:
$709,900
3 beds
3 baths
Listed 21 days ago
Row / Townhouse for rent: 110 Larimar Circle, Ottawa, Ontario K1X 0B6

View all 33 photos

About

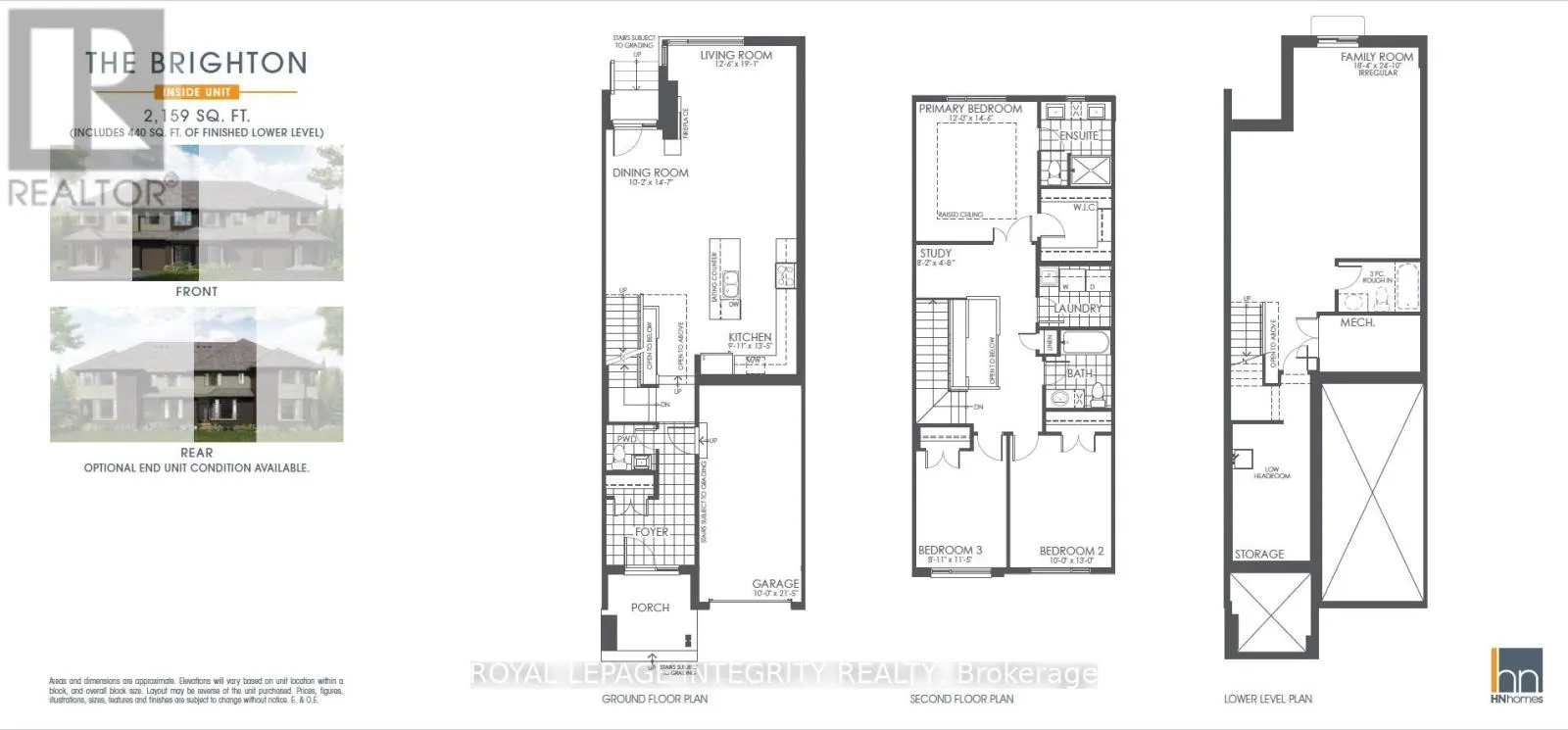
Cross Streets: Earl Armstrong and Portico Way. ** Directions: Earl Armstrong to Portico Way to Larimar circle. Welcome to this bright, modern, and exceptionally well-maintained HN Homes Brighton townhome, where design and clean, contemporary finishes come together to create a space that feels both elevated and inviting from the moment you arrive. The main level is airy and open, featuring 9-foot ceilings, rich hardwood floors, and a seamless flow that makes everyday living and entertaining feel effortless. At the heart of the home, the kitchen offers a sleek and functional design with quartz countertops, stainless steel appliances, and a generous centre island with seating. It connects naturally to the dining and living areas, where windows flood the space with natural light and a modern fireplace creates a warm, welcoming focal point. Upstairs, the home continues to impress with hardwood stairs and a striking modern glass railing that adds to the clean, architectural feel. The layout is both practical and comfortable, with laundry conveniently located on the bedroom level and three generously sized bedrooms finished in neutral, modern tones that make it easy to personalize the space. The finished basement provides valuable additional living space-perfect for a rec room, home office, or gym-offering flexibility to suit your lifestyle. Outside, the fully landscaped backyard is designed for effortless enjoyment, with a no-maintenance setup that allows you to spend more time relaxing and less time working. Warm wood fencing adds privacy while bringing a soft, modern contrast to the outdoor space. The front of the home is equally well considered, with a landscaped walkway and the added bonus of potential extra parking for a small vehicle. Located in Riverside South, this home is just a short walk to the new LRT, local amenities, and the upcoming district park and community centre-offering a lifestyle that balances convenience, community, and modern living. Clean, stylish, and completely move-in ready, this is a home that feels easy to settle into and even easier to love. (id:27476)

Property Highlights

MLS® Number
X12874318
Type
Single Family
Community Name
2602 - Riverside South/Gloucester Glen
Ownership Type
Freehold
Land Size
20.1 x 4.9 FT
Parking Space Total
2

Building

Building Type
Row / Townhouse
Storeys
2.00
Square Footage
1500 - 2000 sqft
Bathrooms Total
3
Bedrooms Above Ground
3
Bedrooms Total
3
Amenities
Fireplace(s)
Exterior Finish
Brick, Vinyl siding
Fireplace Present
Yes
Basement Type
N/A (Finished)
Basement Features
Building Heating Type
Heating Fuel
Building Cooling Type
Central air conditioning

Utilities

Water
Municipal water
Utility Sewer
Sanitary sewer

Location

Learn more about this property
Listing provided by:
ROYAL LEPAGE INTEGRITY REALTY
MLS® number:
X12874318
Agent:
Andrew Latty
*Indicates required field
Name is required
Email is required
Please enter a valid phone number (e.g., 416-111-1111).