1705 Belcourt Boulevard, Ottawa, Ontario K1C 1M3

Listed for:
$769,900
3 beds
3 baths
Listed 8 days ago
House for rent: 1705 Belcourt Boulevard, Ottawa, Ontario K1C 1M3

View all 38 photos

About

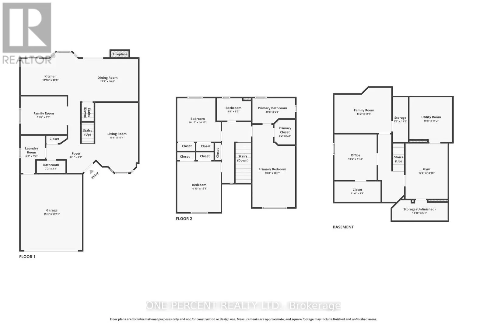
Belcourt Blvd. & Toulouse Cres. Welcome to this beautifully maintained detached two-storey home in the heart of Orleans - a true family gem with a backyard that must be seen to be believed. The massive fully fenced backyard is complete with a stunning deck, creating the perfect space for entertaining, relaxing, and making lasting family memories. The main floor offers an excellent layout designed for everyday living and entertaining. You'll find a bright living room, a comfortable family room, and an open-concept kitchen and dining area that flows seamlessly to the backyard. The main level also includes a convenient powder room, laundry room, and interior access to the double garage. Upstairs, the spacious primary bedroom features its own private ensuite bathroom and walk-in closet. Two additional well-sized bedrooms and a full bathroom complete the second floor. The fully finished basement adds incredible versatility, offering a dedicated home gym, a private office, and a second family room that could be used as an additional bedroom. This home is truly move-in ready with major updates already completed, including roof (2023), furnace (2023), and central air conditioning (2023). Windows are also in great condition, providing peace of mind for years to come. The property also features a double garage and driveway parking for up to six vehicles, making it ideal for families and visitors alike. Located in a fantastic family-friendly neighbourhood, you're just a three minute walk to Marcel Beriault Park, with excellent English and French schools nearby, along with grocery stores, public transit, and everyday amenities. A rare opportunity to own a move-in ready home with exceptional outdoor space in one of Orleans' most desirable communities. Don't forget to checkout the 3D TOUR and FLOOR PLAN. Call your Realtor to book a showing today! (id:27476)

Property Highlights

MLS® Number
X12899534
Type
Single Family
Community Name
2011 - Orleans/Sunridge
Ownership Type
Freehold
Land Size
37.5 x 150.3 FT
Parking Space Total
6

Building

Building Type
House
Storeys
2.00
Square Footage
1500 - 2000 sqft
Bathrooms Total
3
Bedrooms Above Ground
3
Bedrooms Total
3
Amenities
Fireplace(s)
Exterior Finish
Vinyl siding
Fireplace Present
Yes
Basement Type
Full (Finished)
Basement Features
Building Heating Type
Forced air
Heating Fuel
Natural gas
Building Cooling Type
Central air conditioning

Utilities

Water
Municipal water
Utility Sewer
Sanitary sewer

Location

Learn more about this property
Listing provided by:
ONE PERCENT REALTY LTD.
MLS® number:
X12899534
Agent:
Eduardo Alculumbre
*Indicates required field
Name is required
Email is required
Please enter a valid phone number (e.g., 416-111-1111).