7010 Parkway Road, Ottawa, Ontario K4P 1A7

Listed for:
$1,075,000
0 beds
2 baths
Listed 13 days ago
7010 Parkway Road, Ottawa, Ontario K4P 1A7

View all 19 photos

About

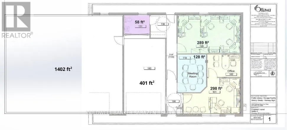
Cross Streets: Bank St & Parkway Rd. ** Directions: Head south on Bank St towardsGreely. Turn right onto Parkway Rd,property is on the left. Excellent opportunity to acquire a versatile flex commercial building in the heart of Greely with great exposure on Parkway Rd. This 3,000 sf (approx) building features a large heated multi-bay/warehouse section with 13' clear height and two overhead doors, plus a secondary bay with a 9'10" ceiling and single overhead door. The finished office wing offers a separate entry, multiple offices or meeting rooms. The 22,152 sf corner lot provides high visibility on Parkway Road, with direct access to both Bank Street/Hwy 31 and Old Prescott Rd and is well suited to contractors, service industry, medical and professional uses, among others. Zoned VM - Village Mixed-Use, the property permits a broad range of commercial uses. Please do not visit the site without express consent from the listing representatives. A portion of the building is tenanted; however, vacant possession can provided on closing. Please note, automotive uses of the property may not be approved by the city. (id:27476)

Property Highlights

MLS® Number
X12900212
Type
Retail
Community Name
1601 - Greely
Land Size
140 x 159.84 FT
Parking Space Total
12

Building

Square Footage
3000 sqft
Bathrooms Total
2
Fireplace Present
No
Basement Type
Basement Features
Building Heating Type
Forced air
Heating Fuel
Natural gas
Building Cooling Type
Fully air conditioned

Location

Learn more about this property
Listing provided by:
COLDWELL BANKER SARAZEN REALTY
MLS® number:
X12900212
Agent:
Ryan Holmes
*Indicates required field
Name is required
Email is required
Please enter a valid phone number (e.g., 416-111-1111).