2003 - 3360 Southgate Road, Ottawa, Ontario K1V 9A6

Listed for:
$449,800
2 beds
2 baths
Listed 8 days ago
Apartment for rent: 2003 - 3360 Southgate Road, Ottawa, Ontario K1V 9A6

View all 19 photos

About

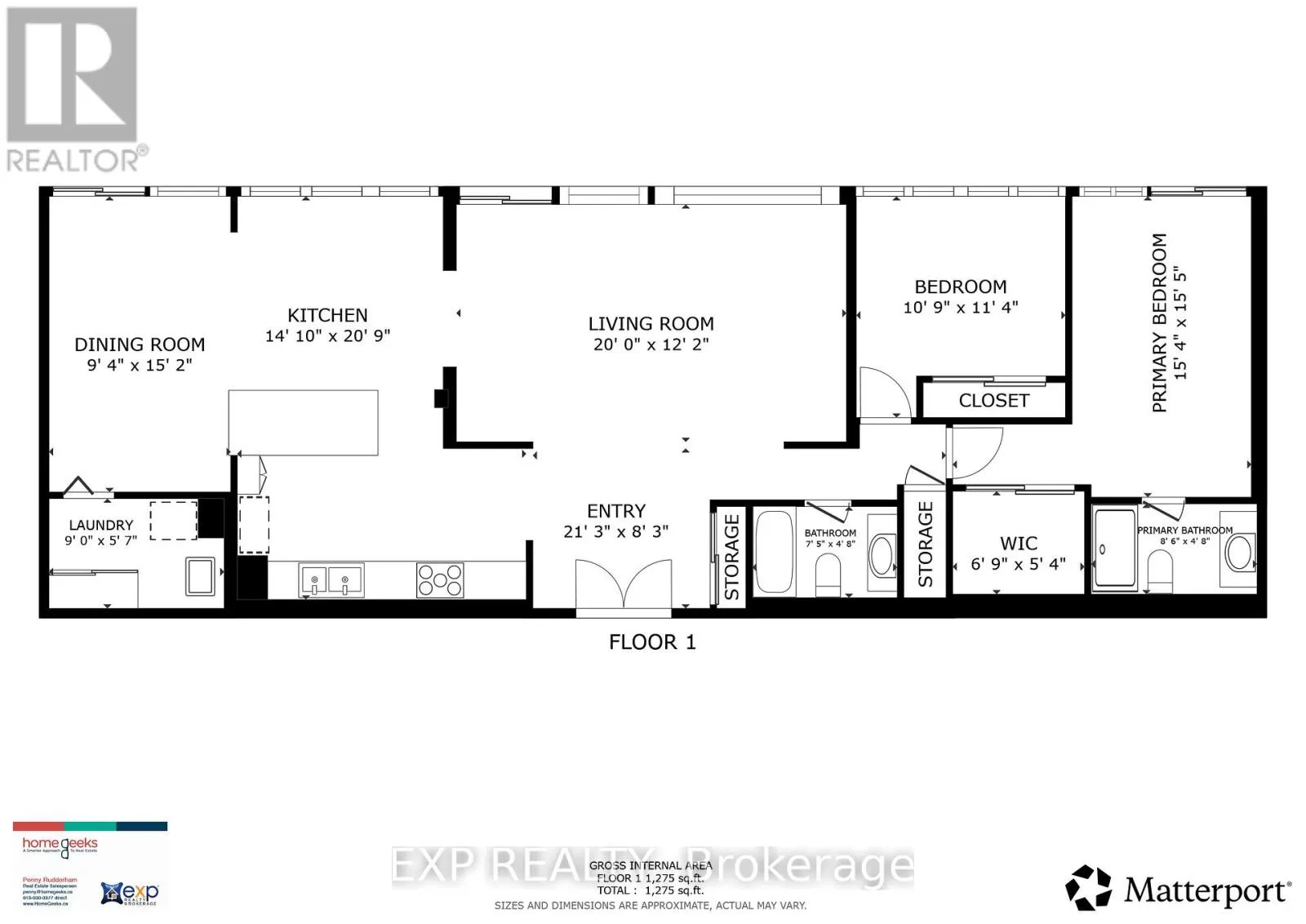
Cross Streets: Southgate and Cahill. ** Directions: From Bank St, head south and turn left onto Cahill Dr. Turn left onto Southgate Rd. The property will be on the left. Welcome to penthouse living at Strathmore Towers, where space, simplicity, and skyline views come together in one of the building's most desirable layouts. Offering approximately 1,350 sq.ft., this extensively renovated 2 bedroom, 2 bathroom suite delivers the feel of a home without the maintenance.Originally designed as a 3 bedroom layout, the wall has been removed to create a larger, open-concept living and dining space-maximizing flow, light, and functionality. High-end renovations have been completed throughout, including a custom kitchen by Wood Priorities Limited featuring granite countertops and timeless cabinetry, along with full electrical updates by T&M Electric for added peace of mind.Refinished hardwood flooring runs through the main living areas, and both bathrooms have been updated with clean, neutral finishes. The result is a cohesive, move-in-ready space that balances comfort and quality.Enjoy three private west-facing balconies with panoramic city views and stunning sunrises, creating the perfect setting for both quiet mornings and entertaining. Strathmore Towers is a well-established, amenity-rich building known for its strong ownership base and long-term residents. Condo fees include heat, A/C, hydro, water, sewage, parking, storage, and on-site supervision-offering a true "pay and forget it" lifestyle with predictable monthly expenses and no surprises. Recent building updates, including window replacements, reflect ongoing care and long-term planning. Ideally located within walking distance to shops, dining, and transit, including O-Train access and direct routes to downtown and the airport.Spacious, low-maintenance living with incredible views and effortless ownership.*Some rooms have been virtually staged (id:27476)

Property Highlights

MLS® Number
X12917550
Type
Single Family
Community Name
3805 - South Keys
Maintenance Fee
1286.00
Ownership Type
Condominium/Strata
Parking Space Total
2

Building

Building Type
Apartment
Square Footage
1200 - 1399 sqft
Bathrooms Total
2
Bedrooms Above Ground
2
Bedrooms Total
2
Amenities
Party Room, Sauna, Visitor Parking, Storage - Locker Public Transit
Exterior Finish
Concrete
Fireplace Present
No
Basement Type
None
Basement Features
Building Heating Type
Forced air
Heating Fuel
Electric
Building Cooling Type
Wall unit

Location

Learn more about this property
Listing provided by:
EXP REALTY
MLS® number:
X12917550
Agent:
Penny Rudderham
*Indicates required field
Name is required
Email is required
Please enter a valid phone number (e.g., 416-111-1111).