1027 Parabolica Way, Ottawa, Ontario K2T 0R1

Listed for:
$1,248,000
5 beds
5 baths
Listed 52 days ago
House for rent: 1027 Parabolica Way, Ottawa, Ontario K2T 0R1

View all 47 photos

About

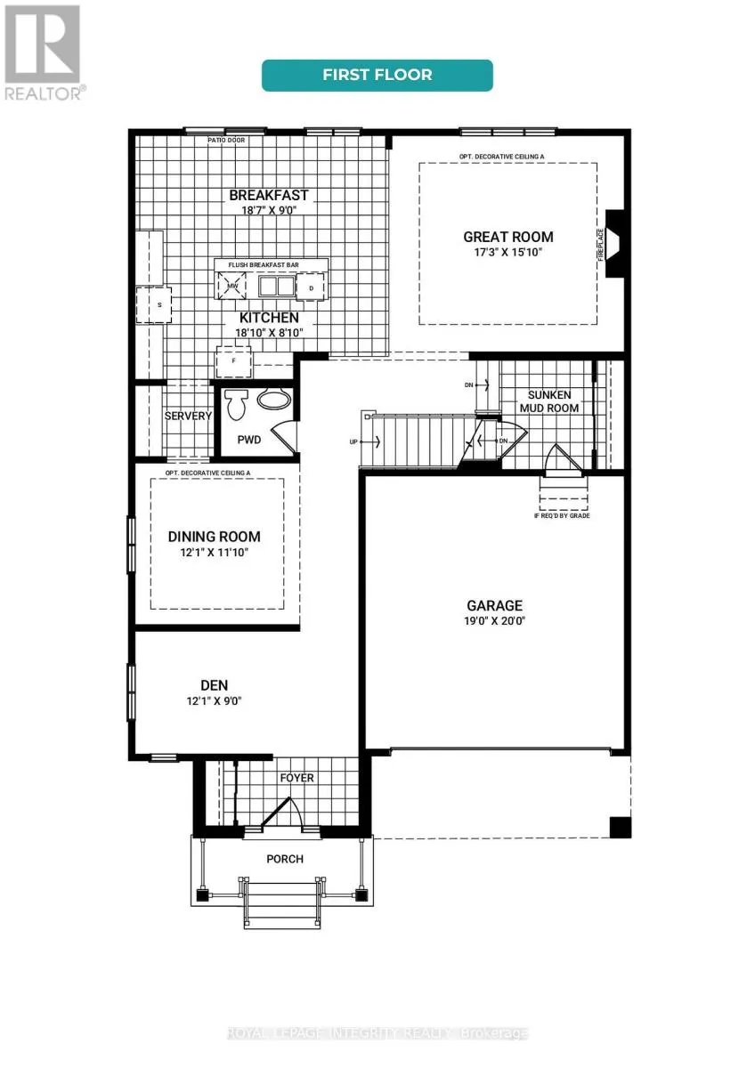
Campeau Drive to Winterest Road to Parabolica Way Welcome to this beautifully upgraded home in the highly sought-after Kanata Lakes Arcadia community, offering over 4,000 sq.ft. of living space with a functional and well-designed layout. Featuring 5 bedrooms and 5 bathrooms, this home is ideal for growing families.The main floor features a dedicated den with French doors, a formal dining room connected to the kitchen, and a bright open-concept living area overlooking the backyard. The kitchen is thoughtfully upgraded with high-end appliances and modern finishes, ideal for both everyday living and entertaining.Just a few steps up, the impressive sunken family room boasts a stunning 12-ft ceiling, large windows, and access to a private balcony, creating a bright and inviting space filled with natural light.Upstairs offers 4 spacious bedrooms and 3 full bathrooms, including 2 ensuites and a convenient Jack & Jill layout, along with a second-floor laundry room. The entire home features 9-ft ceilings on the second level and a carpet-free interior throughout.The fully finished basement adds an additional bedroom, bathroom, walk-in closet, and a large recreation area, perfect for extended family or guests.It also features an electric fireplace, oversized windows that bring in abundant natural light, and a separate washer and dryer set, offering excellent flexibility and the potential to function as an independent in-law or secondary living suite. Situated on a rare oversized pie-shaped lot, this home offers a fully fenced backyard with southwest exposure, providing exceptional natural light throughout the day. The outdoor space features a two-tier deck, plus a separate deck with gazebo, creating multiple areas for outdoor entertaining and relaxation.Located in a top school zone, close to parks, shopping, and Kanata Tech Park. (id:27476)

Property Highlights

MLS® Number
X12915550
Type
Single Family
Community Name
9007 - Kanata - Kanata Lakes/Heritage Hills
Ownership Type
Freehold
Land Size
35.6 x 102.1 FT ; pie shape lot
Parking Space Total
6

Building

Building Type
House
Storeys
2.00
Square Footage
3000 - 3500 sqft
Bathrooms Total
5
Bedrooms Above Ground
4
Bedrooms Total
5
Amenities
Fireplace(s)
Exterior Finish
Brick, Vinyl siding
Fireplace Present
Yes
Basement Type
Full (Finished)
Basement Features
Building Heating Type
Forced air
Heating Fuel
Natural gas
Building Cooling Type
Central air conditioning, Air exchanger

Utilities

Water
Municipal water
Utility Sewer
Sanitary sewer

Room Layout

Bedroom
Second level
4.64 m x 3.17 m
Family room
Second level
5.79 m x 6.1 m
Primary Bedroom
Second level
4.88 m x 4.88 m
Bedroom 2
Second level
3.43 m x 3.35 m
Bedroom 3
Second level
3.51 m x 3.05 m
Bedroom 4
Second level
3.51 m x 3.51 m
Living room
Main level
5.25 m x 4.9 m
Dining room
Main level
3.68 m x 3.61 m
Kitchen
Main level
5.74 m x 2.69 m
Den
Main level
3.68 m x 2.74 m
Eating area
Main level
5.66 m x 2.74 m

Location

Learn more about this property
Listing provided by:
ROYAL LEPAGE INTEGRITY REALTY
MLS® number:
X12915550
Agent:
Haiyun Wang
*Indicates required field
Name is required
Email is required
Please enter a valid phone number (e.g., 416-111-1111).