415 Shoreway Drive, Ottawa, Ontario K4P 0G4

Listed for:
$1,695,000
5 beds
4 baths
Listed 3 days ago
House for rent: 415 Shoreway Drive, Ottawa, Ontario K4P 0G4

View all 50 photos

About

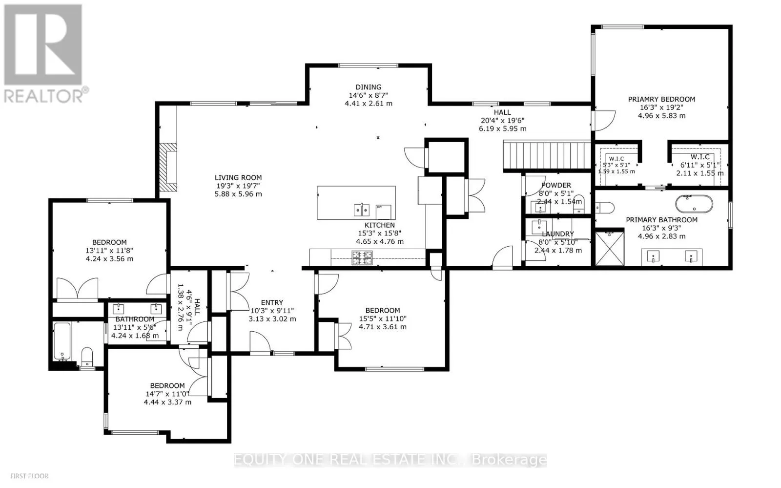
Cross Streets: Lakewood Trail & Shoreway. ** Directions: Mitch Owens to Old Prescott to Lakewood Trail to Shoreway. Welcome to this spectacular 4+1 bedroom, 4 bathroom bungalow in the highly sought-after Lakewood Trails community of Greely where modern luxury meets peaceful estate living. Built by Mackie Homes, this beautifully designed residence offers exceptional craftsmanship, thoughtful upgrades, and an ideal layout. The main level features a bright, open-concept design anchored by a stunning great room with a cozy natural gas fireplace, seamlessly flowing into a designer kitchen with quality cabinetry, stone countertops, and generous prep space ~ perfect for hosting family and friends. Designed for privacy, the primary suite is set on one side of the home, offering a peaceful retreat complete with his & hers walk-in closets and a luxurious ensuite featuring a freestanding soaker tub, glass shower, and heated floors. On the opposite side of the home, you'll find three additional well-sized bedrooms and a full bathroom-ideal for family living or guests. A spacious mudroom with built-in cabinetry provides excellent everyday storage and organization, while the main floor laundry room adds convenience and functionality.The fully finished lower level expands your living space with a large recreation area, dedicated exercise space, additional bedroom, and full bathroom. A separate theatre room with a second gas fireplace creates the perfect setting for movie nights and entertaining ~ ideal for multi-generational living or a private retreat. Car enthusiasts and families alike will appreciate the heated oversized 3-car garage, complete with built-in shelving for storage and direct access to the basement ~ an incredibly practical feature. Storage is abundant throughout the home, making it easy to stay organized and clutter-free. Outside, enjoy a beautifully landscaped backyard, rear patio, and upgraded exterior featuring stone and brick finishes, all set within one of Greely's most desirable communities featuring a community rec centre, pool and gym. Association fee of $350/year. (id:27476)

Property Highlights

MLS® Number
X12932992
Type
Single Family
Community Name
1601 - Greely
Ownership Type
Freehold
Land Size
99.8 x 233.9 FT
Parking Space Total
15

Building

Building Type
House
Storeys
1.00
Square Footage
2500 - 3000 sqft
Bathrooms Total
4
Bedrooms Above Ground
4
Bedrooms Total
5
Amenities
Fireplace(s)
Exterior Finish
Brick, Stone
Fireplace Present
Yes
Basement Type
Full (Finished)
Basement Features
Building Heating Type
Forced air
Heating Fuel
Natural gas
Building Cooling Type
Central air conditioning

Utilities

Utility Sewer
Septic System

Room Layout

Family room
Lower level
8.38 m x 4.72 m
Bathroom
Lower level
2.64 m x 2.01 m
Bedroom 5
Lower level
4.87 m x 4.05 m
Recreational, Games room
Lower level
10.14 m x 5.13 m
Exercise room
Lower level
7.97 m x 3.83 m
Living room
Main level
6.19 m x 4.95 m
Bathroom
Main level
5.01 m x 2.92 m
Mud room
Main level
3.45 m x 2.84 m
Dining room
Main level
4.43 m x 2.72 m
Kitchen
Main level
4.73 m x 4.7 m
Bedroom 2
Main level
3.96 m x 3.77 m
Bedroom 3
Main level
3.84 m x 3.21 m
Bedroom 4
Main level
4.39 m x 3.69 m
Bathroom
Main level
4.39 m x 1.7 m
Bathroom
Main level
1.46 m x 2.67 m
Laundry room
Main level
2.63 m x 1.89 m
Primary Bedroom
Main level
5.01 m x 4.18 m

Location

Learn more about this property
Listing provided by:
EQUITY ONE REAL ESTATE INC.
MLS® number:
X12932992
Agent:
Joanne Gauthier
*Indicates required field
Name is required
Email is required
Please enter a valid phone number (e.g., 416-111-1111).