1021 Fieldfair Way, Ottawa, Ontario K4A 0E2

Listed for:
$749,900
4 beds
3 baths
Listed 2 days ago
House for rent: 1021 Fieldfair Way, Ottawa, Ontario K4A 0E2

View all 35 photos

About

Cross Streets: Linaria X Fieldfair. ** Directions: Trim Rd south of Innes, right on Montmere, left on Linaria Walk, right on Fieldfair Way, home is on the right side. Welcome to 1021 Fieldfair Way, a beautifully appointed 4-bedroom, 2.5-bathroom family home nestled in the desirable community of Orléans. The main floor welcomes you with gleaming dark hardwood floors and an abundance of natural light throughout. Upon entry, you're greeted by a spacious foyer complete with a walk-in coat closet and convenient powder room. To the right, elegant formal living and dining rooms provide the perfect setting for entertaining. The updated eat-in kitchen(2025) is a true showstopper, featuring shaker-style cabinetry, stainless steel appliances, and stunning quartz countertops with a waterfall edge. The adjacent family room offers a cozy gas fireplace and direct access to the fully fenced backyard, complete with a deck, patio, and gazebo-ideal for outdoor living and gatherings. On the second level, retreat to the spacious primary suite highlighted by soaring cathedral ceilings, private balcony, a walk-in closet, and a luxurious 4-piece ensuite with a separate soaker tub and shower. Three additional generously sized bedrooms, a full bathroom, and the convenience of an upper-level washer and dryer(2024) complete this level. The unfinished basement offers endless potential, ready for your personal touch-whether you envision a recreation room, home gym, or additional living space. This is a fantastic opportunity to own a move-in ready home in a family-friendly neighbourhood close to parks, schools, and everyday amenities. Recent Updates : Windows & Front Door (2021), Roof (2025). (id:27476)

Property Highlights

MLS® Number
X12936614
Type
Single Family
Community Name
1119 - Notting Hill/Summerside
Ownership Type
Freehold
Land Size
35.4 x 105 FT
Parking Space Total
4

Building

Building Type
House
Storeys
2.00
Square Footage
2000 - 2500 sqft
Bathrooms Total
3
Bedrooms Above Ground
4
Bedrooms Total
4
Amenities
Fireplace(s) Public Transit
Exterior Finish
Stone, Vinyl siding
Fireplace Present
Yes
Basement Type
Full (Unfinished)
Basement Features
Building Heating Type
Forced air
Heating Fuel
Natural gas
Building Cooling Type
Central air conditioning

Utilities

Water
Municipal water
Utility Sewer
Sanitary sewer

Room Layout

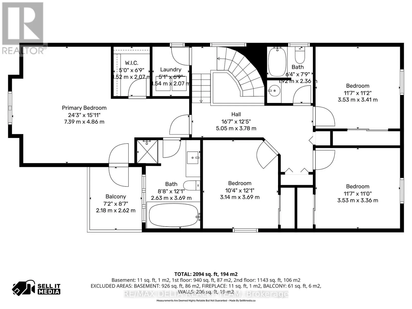
Primary Bedroom
Second level
7.39 m x 4.86 m
Bedroom 2
Second level
3.14 m x 3.69 m
Bedroom 3
Second level
3.53 m x 3.36 m
Bedroom 4
Second level
3.53 m x 3.41 m
Laundry room
Second level
1.54 m x 2.07 m
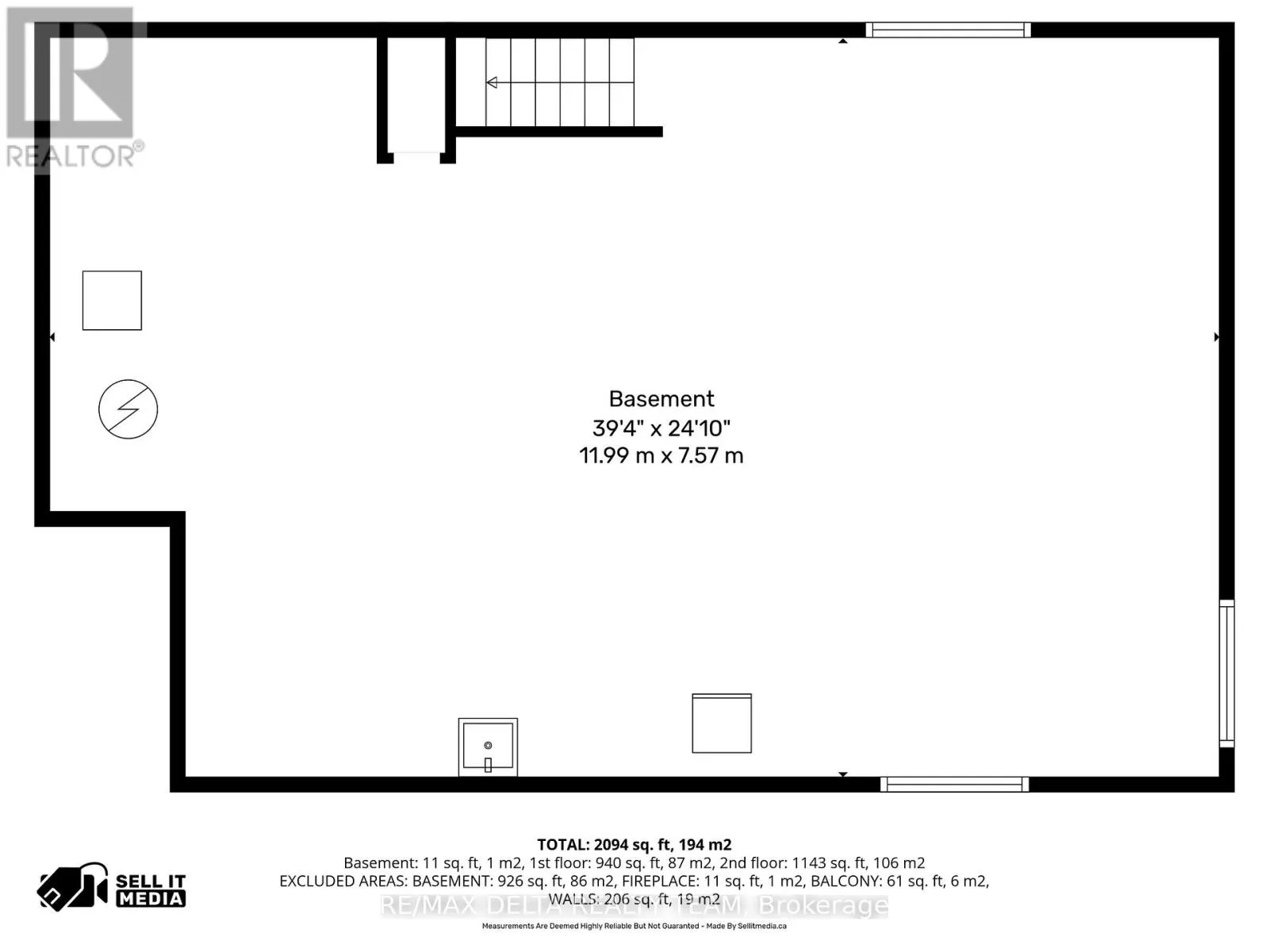
Recreational, Games room
Basement
11.99 m x 7.57 m
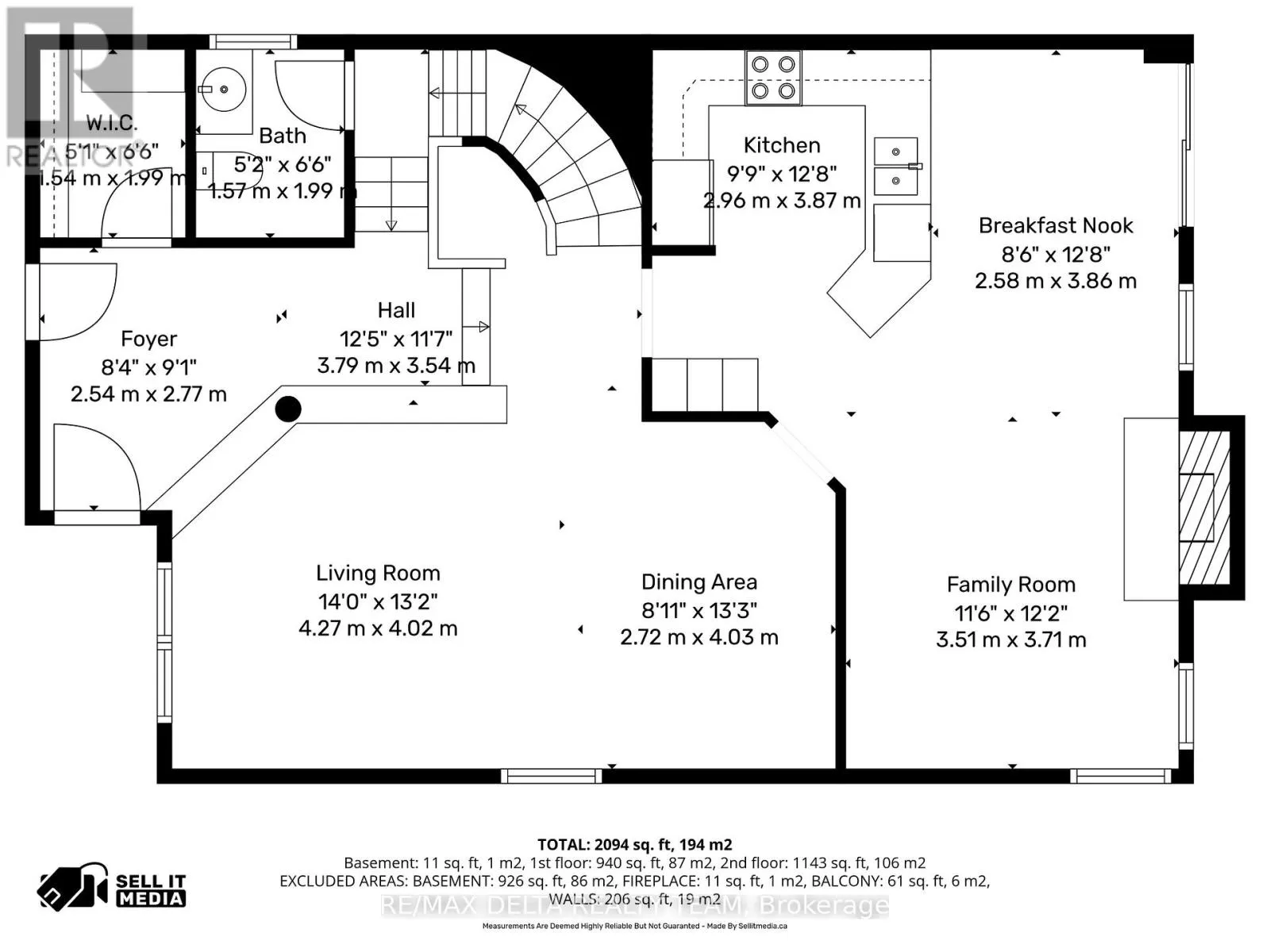
Eating area
Main level
2.58 m x 3.86 m
Foyer
Main level
2.54 m x 2.77 m
Living room
Main level
4.27 m x 4.02 m
Dining room
Main level
2.72 m x 4.03 m
Family room
Main level
3.51 m x 3.71 m
Kitchen
Main level
2.96 m x 3.87 m

Location

Learn more about this property
Listing provided by:
RE/MAX DELTA REALTY TEAM
MLS® number:
X12936614
Agent:
Christine Hall
*Indicates required field
Name is required
Email is required
Please enter a valid phone number (e.g., 416-111-1111).