243 Lamarche Avenue, Ottawa, Ontario K1W 0M5

Listed for:
$2,150
2 beds
2 baths
Listed 9 days ago
Row / Townhouse for rent: 243 Lamarche Avenue, Ottawa, Ontario K1W 0M5

View all 12 photos

About

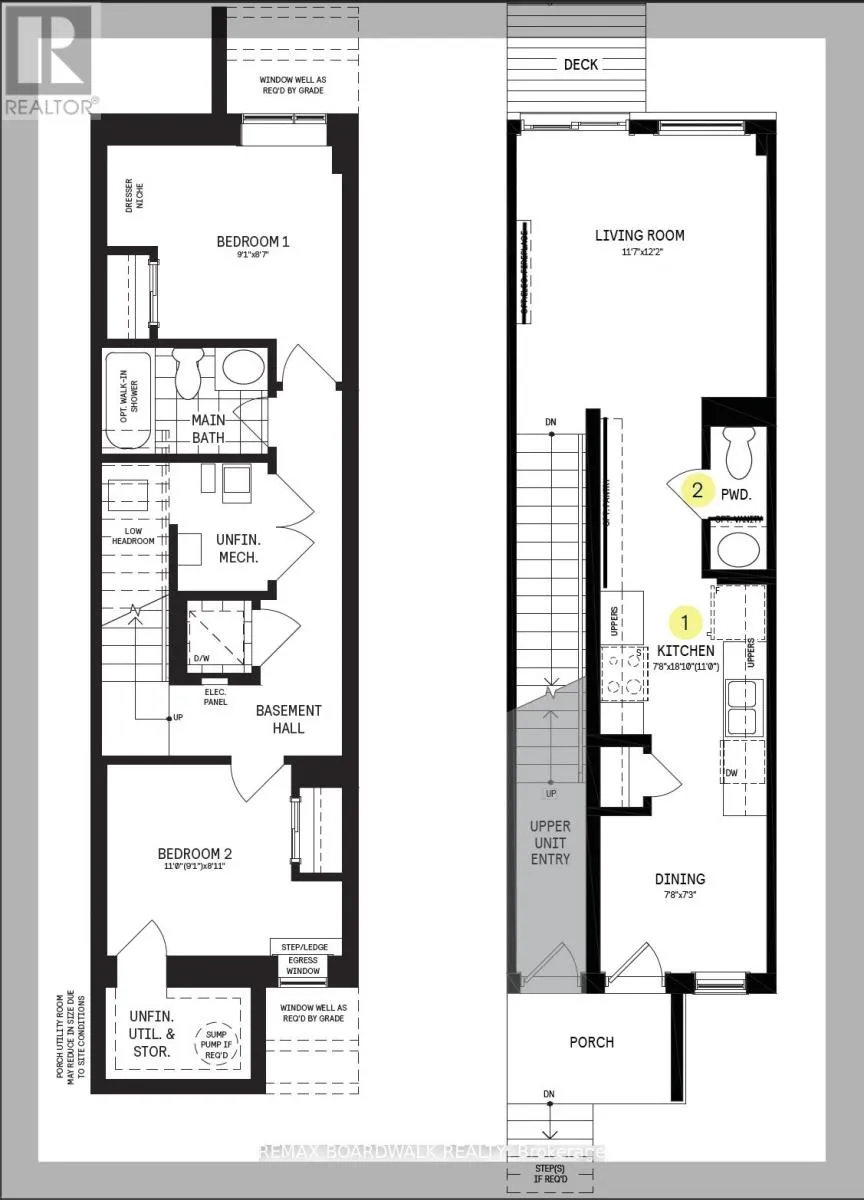
Cross Streets: Innes Road & Lamarche Avenue. ** Directions: Head East on Innes Road, turn right onto Lamarche Avenue, destination will be on your left!. Brand New, Never Lived In! Bright 2-bedroom, 1.5-bathroom lower stacked condo by Caivan with 900 sq ft of living space. Two bedrooms and a full bathroom with a tub/shower combo complete the lower level with laundry, while an open-concept kitchen, living, dining, and powder room shine upstairs. Front and rear yard access which is convenient for groceries. Enjoy all that Orléans Village has to offer, from walking paths and a recreation complex to easy access to transit, Highway 417, shops, and restaurants. Available May 15th! (id:27476)

Property Highlights

MLS® Number
X12965852
Type
Single Family
Community Name
2012 - Chapel Hill South - Orleans Village
Ownership Type
Condominium/Strata
Parking Space Total
1

Building

Building Type
Row / Townhouse
Square Footage
900 - 999 sqft
Bathrooms Total
2
Bedrooms Total
2
Amenities
Visitor Parking Park, Public Transit, Schools
Exterior Finish
Stone, Vinyl siding
Fireplace Present
No
Basement Type
None
Basement Features
Building Heating Type
Forced air
Heating Fuel
Natural gas
Building Cooling Type
Central air conditioning

Location

Learn more about this property
Listing provided by:
REMAX BOARDWALK REALTY
MLS® number:
X12965852
Agent:
Katie Grandinetti
*Indicates required field
Name is required
Email is required
Please enter a valid phone number (e.g., 416-111-1111).