57 Sullivan Avenue, Ottawa, Ontario K2G 1V1

Listed for:
$549,000
3 beds
1 baths
Listed 2 days ago
House for rent: 57 Sullivan Avenue, Ottawa, Ontario K2G 1V1

View all 38 photos

About

Cross Streets: Norice / Sullivan. ** Directions: Woodroffe south to east on Norice to south on Sullivan. Charming 3-bedroom, 1-bathroom single-family home on a generous 64 x 99 ft lot in the desirable Meadowlands/Crestview neighbourhood. Perfect opportunity for first-time buyers, contractors, or developers looking to enter the market or add value. This home features new windows and a bright, functional layout with plenty of potential to customize. The high and dry basement offers excellent storage or future development possibilities. Spacious lot provides room to expand, renovate, or rebuild. Roof 2014, furnace 2024, windows 2025. Conveniently located near schools, parks, shopping, and transit and green space. A solid investment in a growing area-don't miss the opportunity to be the second owner of this home. Offers 5 pm on Tuesday April 21 ***OPEN HOUSES THURSDAY APRIL 16 10:00-12:00 and SUNDAY APRIL 19 2:00-4:00*** (id:27476)

Property Highlights

MLS® Number
X13003646
Type
Single Family
Community Name
7302 - Meadowlands/Crestview
Ownership Type
Freehold
Land Size
64.9 x 99.9 FT
Parking Space Total
4

Building

Building Type
House
Storeys
1.00
Square Footage
700 - 1100 sqft
Bathrooms Total
1
Bedrooms Above Ground
3
Bedrooms Total
3
Exterior Finish
Stone, Aluminum siding
Fireplace Present
Yes
Basement Type
Full
Basement Features
Building Heating Type
Heating Fuel
Building Cooling Type
None

Utilities

Water
Municipal water
Utility Sewer
Sanitary sewer

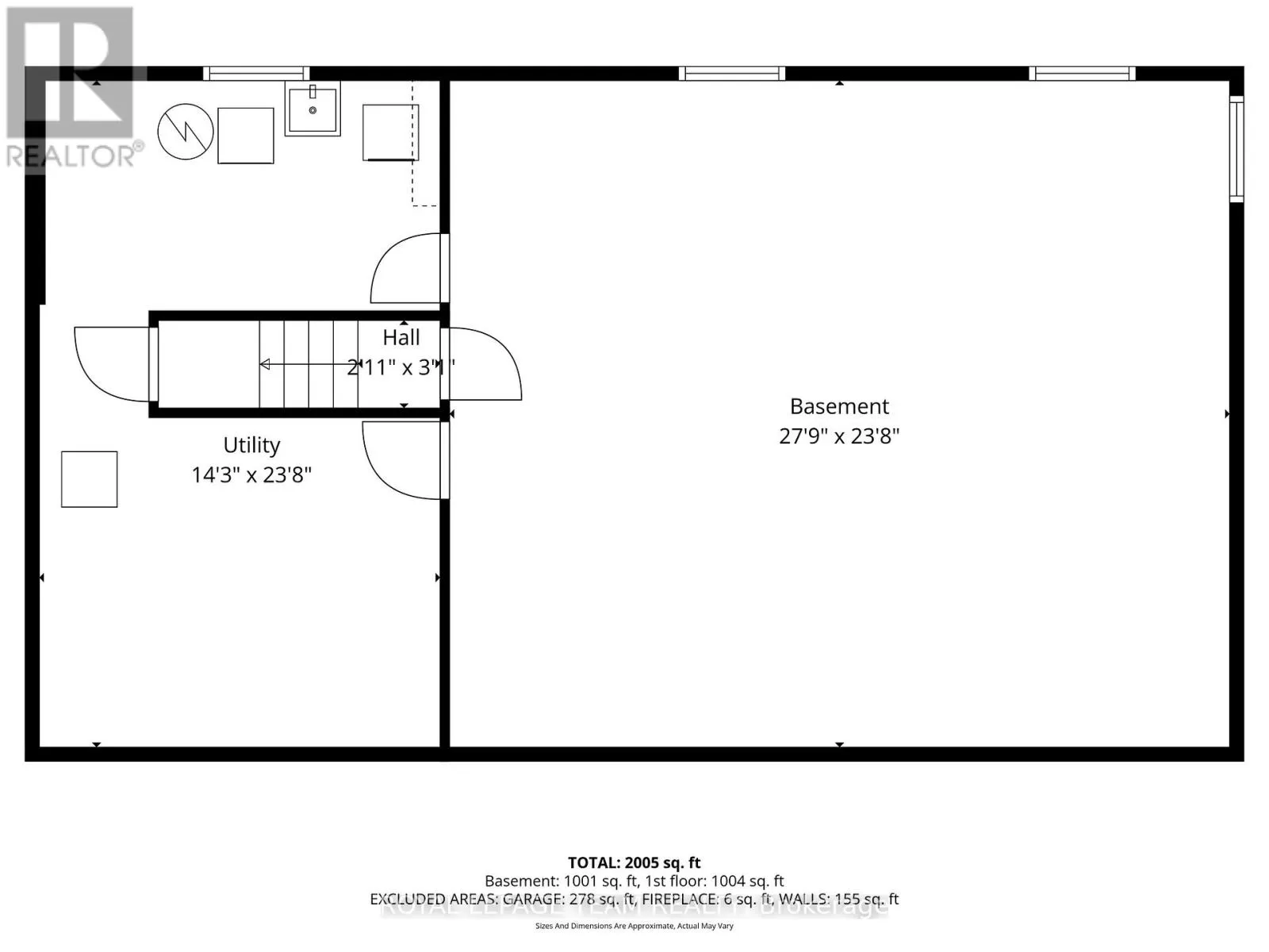
Room Layout

Utility room
Lower level
23.8 m x 14.3 m
Recreational, Games room
Lower level
27.9 m x 23.8 m
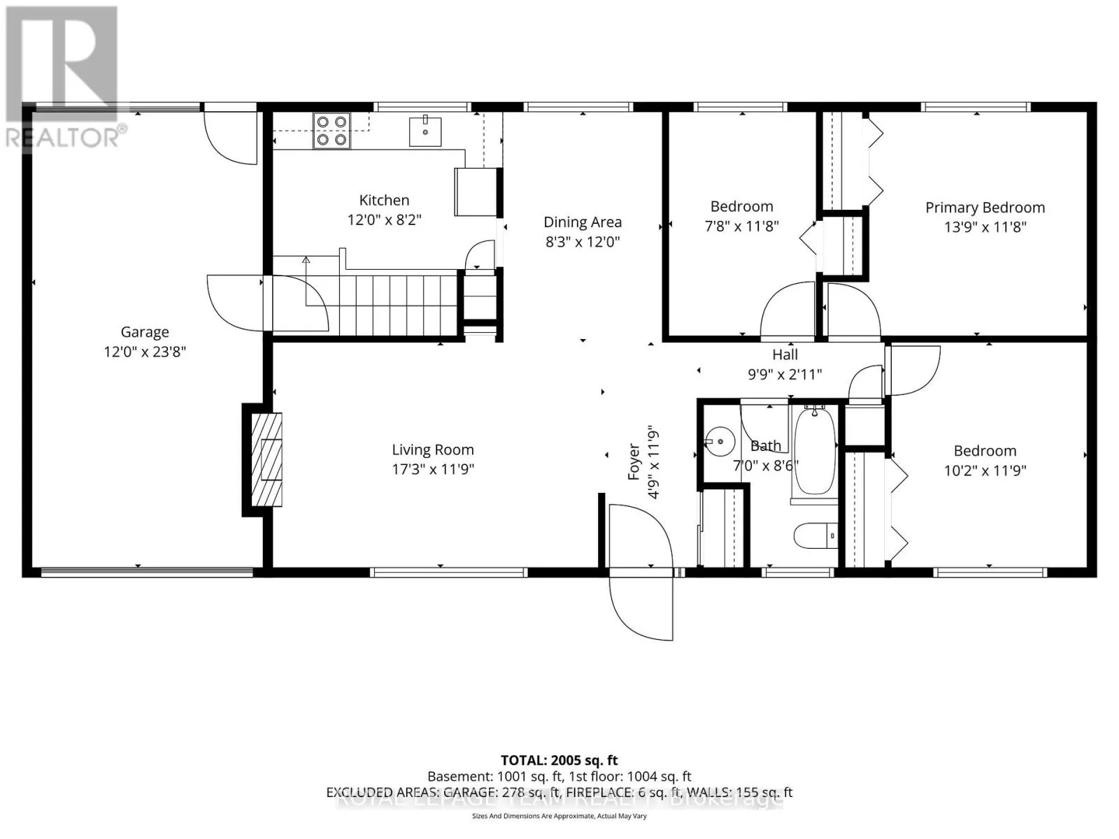
Living room
Main level
17.3 m x 11.9 m
Dining room
Main level
12 m x 8.3 m
Kitchen
Main level
12 m x 8.2 m
Primary Bedroom
Main level
13.9 m x 11.8 m
Bedroom 2
Main level
11.9 m x 10.2 m
Bedroom 3
Main level
11.8 m x 7.8 m
Bathroom
Main level
8.6 m x 7 m

Location

Learn more about this property
Listing provided by:
ROYAL LEPAGE TEAM REALTY
MLS® number:
X13003646
Agent:
Margo Lindsay
*Indicates required field
Name is required
Email is required
Please enter a valid phone number (e.g., 416-111-1111).