48 Bolton Street, Ottawa, Ontario K1N 5A9

Listed for:
$1,280,000
8 beds
4 baths
Listed 8 days ago
Fourplex for rent: 48 Bolton Street, Ottawa, Ontario K1N 5A9

View all 31 photos

About

Cross Streets: Bolton Street / Gilberte-Paquette Avenue. ** Directions: Dalhousie St & Bolton St. PREMIUM INVESTMENT OPPORTUNITY IN THE EMBASSY DISTRICT! Located on a peaceful dead-end street in the heart of Lower Town, this turnkey FOURPLEX is a rare "blue-chip" asset in a highly resilient rental market. Just steps from the Ottawa River, Byward Market, Global Affairs, and the NRC, it attracts a premium, professional tenant profile. The building features four spacious 2-BEDROOM suites, offering excellent long-term tenant retention. Each unit includes renovated bathrooms, full kitchens, and highly desirable IN-SUITE LAUNDRY (5 appliances per unit). Select units boast architectural charm with classic fireplaces and skylights. FINANCIALLY OPTIMIZED: The property features SEPARATE HYDRO METERS, significantly reducing landlord overhead. Enjoy a near-zero historical vacancy rate, steady income, and substantial room for rental growth in this supply-constrained neighborhood. Includes 3 parking spaces. A true buy-and-hold gem offering both stability and long-term capital appreciation! (id:27476)

Property Highlights

MLS® Number
X13022756
Type
Multi-family
Community Name
4001 - Lower Town/Byward Market
Land Size
33 x 99 FT
Parking Space Total
3

Building

Building Type
Fourplex
Storeys
2.50
Square Footage
3500 - 5000 sqft
Bathrooms Total
4
Bedrooms Above Ground
8
Bedrooms Total
8
Exterior Finish
Brick, Hardboard
Fireplace Present
Yes
Basement Type
None
Basement Features
Building Heating Type
Baseboard heaters
Heating Fuel
Electric
Building Cooling Type
Wall unit

Utilities

Water
Municipal water
Utility Sewer
Sanitary sewer

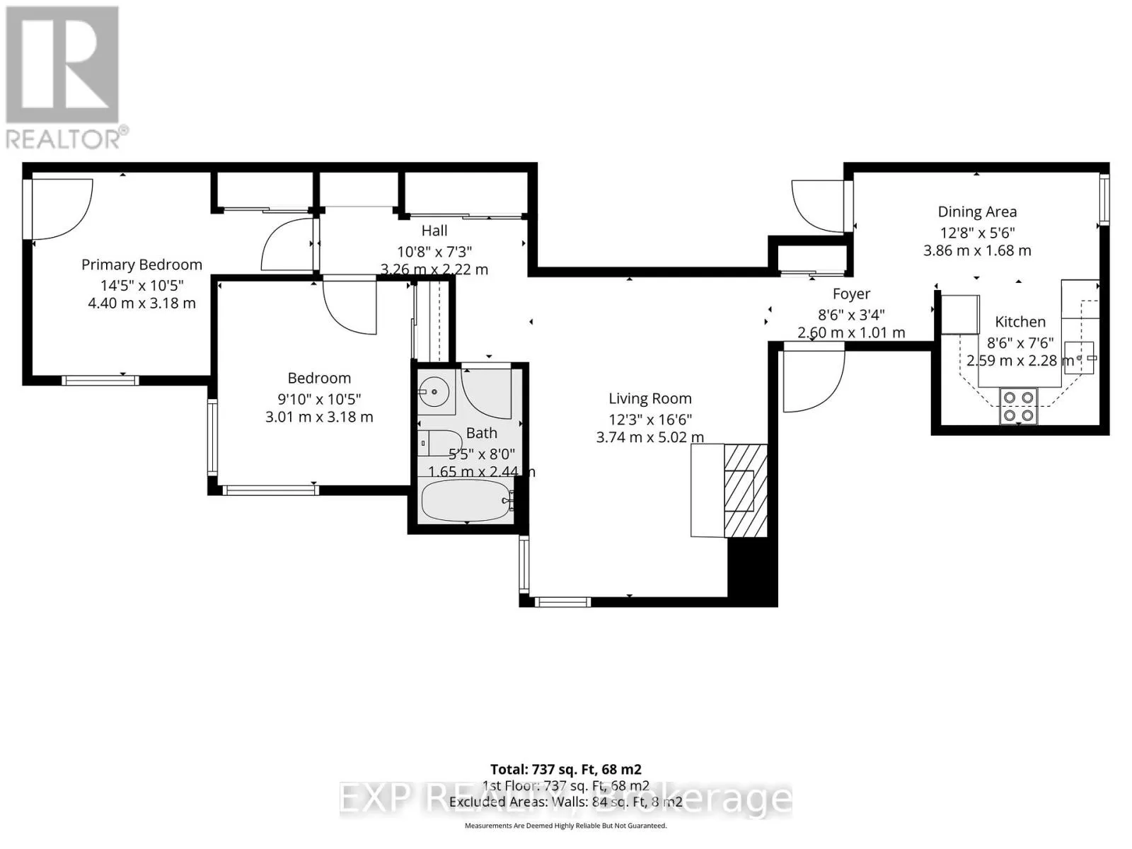
Room Layout

Bedroom
Second level
4.57 m x 6.4 m
Den
Second level
4.87 m x 4.26 m
Kitchen
Main level
3.96 m x 3.55 m

Location

Learn more about this property
Listing provided by:
EXP REALTY
MLS® number:
X13022756
Agent:
Sandrine Laurens
*Indicates required field
Name is required
Email is required
Please enter a valid phone number (e.g., 416-111-1111).