648 2nd Avenue E, Owen Sound, Ontario N4K 2G8

Listed for:
$3,000
0 beds
0 baths
Listed 79 days ago
Offices for rent: 648 2nd Avenue E, Owen Sound, Ontario N4K 2G8

View all 16 photos

About

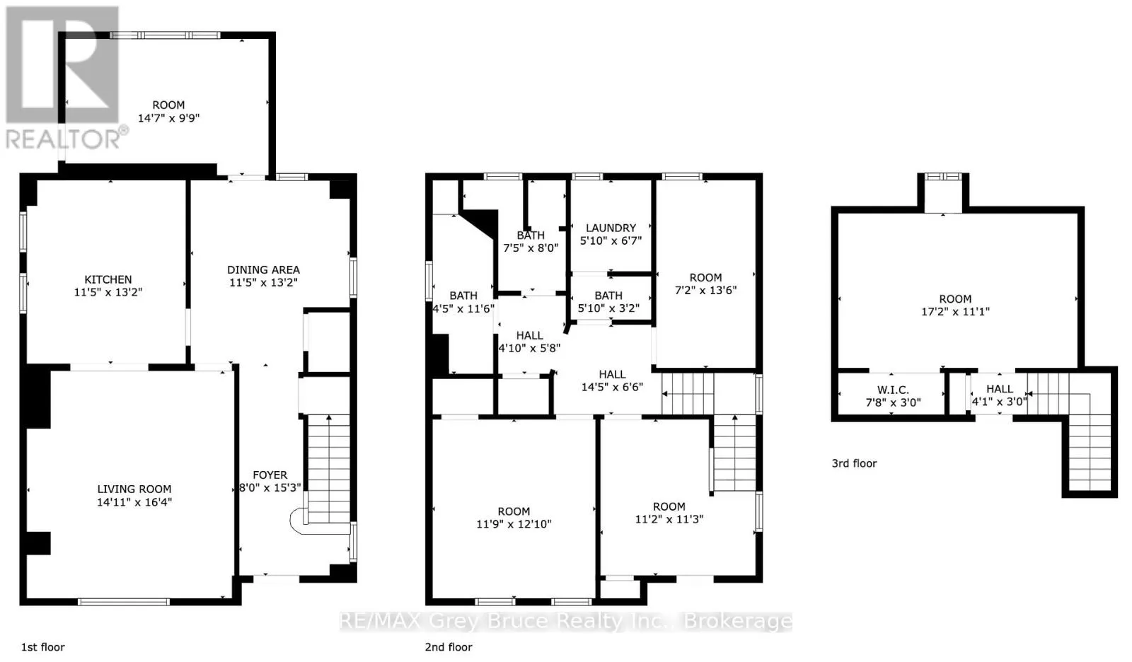
Cross Streets: 2nd Ave East and 6th Street East. ** Directions: Right beside Bruce Grey Child and Family Services building (old YMCA). Unique opportunity to lease professional office space in a detached 3-storey century home offering exceptional visibility and charm. This versatile property is ideal for a variety of professional sectors or community partners seeking a welcoming, accessible environment. Features include abundant natural light, 9-ft ceilings on the lower level, a full kitchen, multiple bathrooms, and an open-concept layout on the main floor. Convenient front entrance with employee access to the rear, plus six landlord-maintained parking spaces and additional street parking. Excellent exposure to vehicle and pedestrian traffic. Landlord is open to considering leasehold improvements to suit tenant needs. (id:27476)

Property Highlights

MLS® Number
X12772368
Type
Office
Community Name
Owen Sound
Land Size
Bldg=52.82 x 60 FT

Building

Building Type
Offices
Square Footage
2100 sqft
Fireplace Present
No
Basement Type
Basement Features
Building Heating Type
Forced air
Heating Fuel
Natural gas
Building Cooling Type
Fully air conditioned

Utilities

Water
Municipal water

Location

Learn more about this property
Listing provided by:
RE/MAX Grey Bruce Realty Inc.
MLS® number:
X12772368
Agent:
Brandi Ewart
*Indicates required field
Name is required
Email is required
Please enter a valid phone number (e.g., 416-111-1111).

Street Spotlight - For lease