123 Mattingley Street, Paris, Ontario N3L 0G4

Listed for:
$2,700
3 beds
3 baths
Listed 54 days ago
Row / Townhouse for rent: 123 Mattingley Street, Paris, Ontario N3L 0G4

View all 14 photos

About

REST ACRES RD TO ARLINGTON PARKWAY TO NEWSTEAD RD TO MATTINGLEY ST Welcome to 123 Mattingley Street, this brand new modern 3-bedroom, 3-bathroom townhome, thoughtfully designed for today’s lifestyle. Flooded with natural light from oversized windows, the main floor features light coloured laminate flooring that adds warmth and a clean, contemporary feel throughout. The stylish white kitchen is a true showstopper, complete with sleek black hardware, sparkling white quartz countertops, and a seamless flow into the open-concept living and dining areas. A patio door leads directly to the backyard, making indoor-outdoor living effortless. The main floor layout is perfectly designed for entertaining and keeping everyone connected—whether you're hosting guests or enjoying time with family. Ideally located in a family-friendly neighbourhood, everything you need is just moments away. Enjoy walking distance to schools, plus easy access to shops, restaurants, Braves Swim School, golf simulation, scenic trails, downtown, and Highway 403 for convenient commuting. This is modern living at its best—stylish, functional, and perfectly situated. (id:27476)

Property Highlights

MLS® Number
40814792
Type
Single Family
Ownership Type
Freehold
Land Size
under 1/2 acre
Parking Space Total
2

Building

Building Type
Row / Townhouse
Storeys
2.00
Square Footage
1518 sqft
Bathrooms Total
3
Bedrooms Above Ground
3
Bedrooms Total
3
Amenities
Park, Playground, Schools, Shopping
Exterior Finish
Aluminum siding, Brick
Fireplace Present
No
Basement Type
Full (Unfinished)
Basement Features
Building Heating Type
Forced air
Heating Fuel
Building Cooling Type
Central air conditioning

Utilities

Water
Municipal water
Utility Sewer
Municipal sewage system

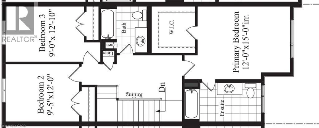
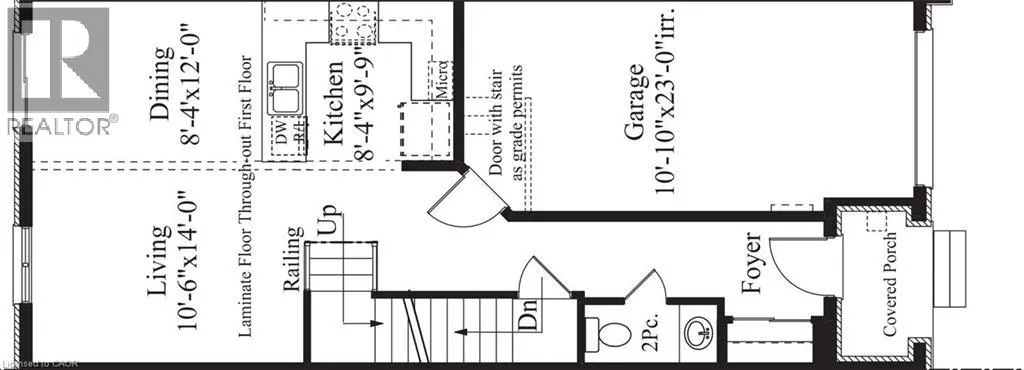
Room Layout

3pc Bathroom
Second level
Measurements not available
Full bathroom
Second level
Measurements not available
Bedroom
Second level
9'0'' x 12'10''
Bedroom
Second level
9'5'' x 12'0''
Primary Bedroom
Second level
12'0'' x 15'0''
2pc Bathroom
Main level
Measurements not available
Living room
Main level
10'6'' x 14'0''
Dining room
Main level
8'4'' x 12'0''
Kitchen
Main level
8'4'' x 9'9''

Location

Learn more about this property
Listing provided by:
RE/MAX Escarpment Realty Inc.
MLS® number:
40814792
Agent:
Trisha Kosewski
*Indicates required field
Name is required
Email is required
Please enter a valid phone number (e.g., 416-111-1111).