292 Trafalgar Road, Pembroke, Ontario K8A 5A8

Listed for:
$389,000
0 beds
1 baths
Listed 74 days ago
292 Trafalgar Road, Pembroke, Ontario K8A 5A8

View all 13 photos

About

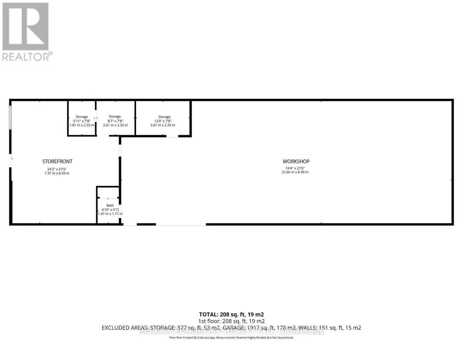
Cross Streets: Pembroke street to Trafalgar Rd on right just past church parking lot. ** Directions: take Trafalgar from Pembroke st or Boundary rd E. Well-Maintained Commercial Building with flexible use.This well-maintained commercial building, solid building, offers exceptional functionality and versatility. The property features a rubber torch-on roof in good condition, rooftop air units, natural gas heating, and a newer 200-amp electrical service.The front unit provides approximately 1,000 sq. ft. of bright retail or office space, ideal for customer-facing operations. The rear unit spans approximately 2,000 sq. ft. and is designed for operational efficiency, boasting 12-foot ceilings, sloped concrete floors, and 5-inch floor drains, making it well-suited for industrial, service, or light manufacturing uses.A large insulated garage door allows for convenient loading and unloading of trucks, enhancing functionality for a wide range of business applications. With its solid construction, modern mechanical features, and adaptable layout, this building lends itself to numerous commercial opportunities. (id:27476)

Property Highlights

MLS® Number
X12745932
Type
Retail
Community Name
530 - Pembroke
Land Size
Bldg=69.96 x 132 Acre
Parking Space Total
4

Building

Square Footage
3000 sqft
Bathrooms Total
1
Fireplace Present
No
Basement Type
Basement Features
Building Heating Type
Forced air
Heating Fuel
Natural gas
Building Cooling Type
Fully air conditioned

Utilities

Water
Municipal water

Location

Learn more about this property
Listing provided by:
RE/MAX PEMBROKE REALTY LTD.
MLS® number:
X12745932
Agent:
France Rivard
*Indicates required field
Name is required
Email is required
Please enter a valid phone number (e.g., 416-111-1111).