54 Eddy Crescent, Pembroke, Ontario K8A 0M1

Listed for:
$569,900
3 beds
1 baths
Listed 20 days ago
House for rent: 54 Eddy Crescent, Pembroke, Ontario K8A 0M1

View all 4 photos

About

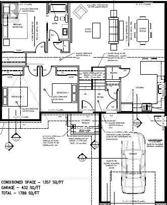
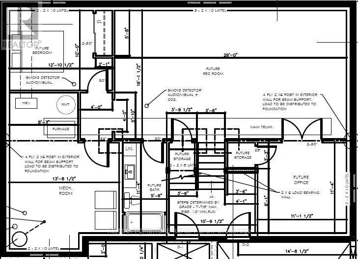
Cross Streets: Boundary rd west/eddy. ** Directions: Boudary St West to Eddy Cr. Welcome to " The Tripp" at 52 Eddy Crescent in Pembroke's desirable west end, a beautifully built brand new bungalow located in a brand new subdivision, offering the perfect blend of modern living and outdoor lifestyle. This thoughtfully designed home offers approximately 1,357 sq. ft. of bright open-concept main floor living space featuring a modern kitchen with a large center island, large pantry and a spacious dining area with patio door access. The inviting living room is filled with natural light, creating a warm and welcoming atmosphere. The main level includes a large Primary Bedroom c/w a large closet , two more generous sized bedrooms and a full bathroom, along with the convenience of an attached oversized garage. The full basement has already been framed, on the exterior walls rough wired ,rough plumbing for a future bathroom and is laid out for a large rec room, laundry room , additional bathroom additional bedroom and office which could be modified to be a 5th bedroom which can be completed prior to closing at the Buyer's option for an additional cost and layouts can be changed by the Buyer., offering excellent potential to expand living space and add value. Built with quality construction including an engineered truss roof system, 8-foot poured concrete foundation, HRV system, radon rough-in, R-60 attic insulation, , this home offers efficiency and peace of mind. Paved Driveway, sod in front yard, seed in backyard Located close to schools, parks, shopping, and amenities, this property is ideal for families, downsizers, or buyers seeking a new home with future development potential in Pembroke's newest subdivision. Additional costs for extras is available.** This Home is not yet built and can be placed on any available lot rather than the listed one**. Purchase price includes HST with rebates signed back to the Builder. Full Tarion Warranty (id:27476)

Property Highlights

MLS® Number
X12874470
Type
Single Family
Community Name
530 - Pembroke
Ownership Type
Freehold
Land Size
23.8 x 33.5 M
Parking Space Total
4

Building

Building Type
House
Storeys
1.00
Square Footage
1100 - 1500 sqft
Bathrooms Total
1
Bedrooms Above Ground
3
Bedrooms Total
3
Exterior Finish
Vinyl siding, Brick Facing
Fireplace Present
No
Basement Type
Full
Basement Features
Building Heating Type
Forced air
Heating Fuel
Natural gas
Building Cooling Type
None, Air exchanger

Utilities

Water
Municipal water
Utility Sewer
Sanitary sewer

Room Layout

Primary Bedroom
Main level
3.66 m x 3.96 m
Bedroom 2
Main level
3.07 m x 3.54 m
Bedroom 3
Main level
3.05 m x 3.81 m
Kitchen
Main level
3.35 m x 4.17 m
Dining room
Main level
4.72 m x 3.61 m
Living room
Main level
4.11 m x 5.08 m
Pantry
Main level
1.63 m x 1.07 m

Location

Learn more about this property
Listing provided by:
RE/MAX PEMBROKE REALTY LTD.
MLS® number:
X12874470
Agent:
Nik Lubimiv
*Indicates required field
Name is required
Email is required
Please enter a valid phone number (e.g., 416-111-1111).

Street Spotlight - For sale