39b Poyntz Street, Penetanguishene, Ontario L9M 1N5

Listed for:
$1,850,000
0 beds
6 baths
Listed 34 days ago
Multi-Family for rent: 39b Poyntz Street, Penetanguishene, Ontario L9M 1N5

View all 24 photos

Learn more about this property
Listing provided by:
ED LOWE LIMITED
MLS® number:
S10929689
Agent:
Catherine Anne Lowe
*Indicates required field
Name is required
Email is required
Please enter a valid phone number (e.g., 416-111-1111).

About

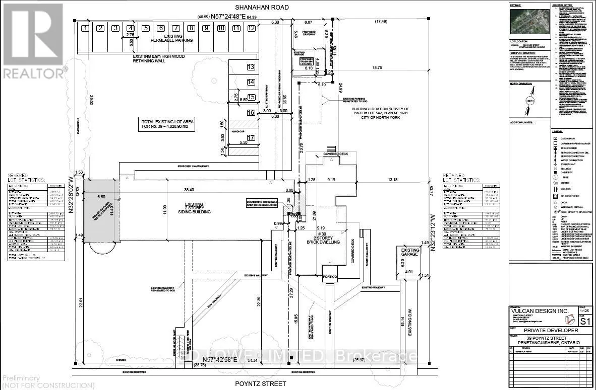
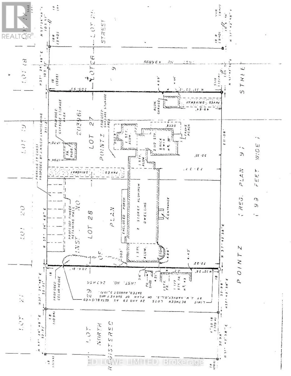
HWY 93 & POYNTZ ST. 8000 s.f. building - Seller making application to rezone to permit 16 apartments in the existing building. Existing house will be severed and detached from the building and not included in purchase price. Great opportunity to renovate and add onto the existing structure for income producing multi-residential building in great location just off Hwy 93/downtown Penetanguishene, with views of Georgian Bay. Or buy to run as existing 23 room retirement home, without the currently attached house, garage and shop (all to be severed off). (id:27476)

Property Highlights

MLS® Number
S10929689
Type
Multi-family
Community Name
Penetanguishene
Land Size
150 x 208 FT ; To be severed

Building

Building Type
Multi-Family
Square Footage
8000 sqft
Bathrooms Total
6
Fireplace Present
No
Basement Type
Basement Features
Building Heating Type
Radiator
Heating Fuel
Building Cooling Type
None

Utilities

Water
Municipal water

Location