296 Church Street, Penetanguishene, Ontario L9M 1G5

Listed for:
$729,999
5 beds
2 baths
Listed 13 days ago
Duplex for rent: 296 Church Street, Penetanguishene, Ontario L9M 1G5

View all 27 photos

About

Cross Streets: Church St & Broad St. ** Directions: Main St to Robert St to Church St. Both units will be vacant on closing! This stunning purpose-built duplex in Penetanguishene offers modern living just minutes from town. Built in 2019 and entirely above grade, the property features two bright, beautifully finished units - each with its own private entrance, full kitchen with newer appliances, private laundry room, and dedicated heat pump. The main-level unit walks out directly to a fenced backyard, while the upper unit opens onto a balcony overlooking the yard. Both units include spacious bedrooms, modern bathrooms, quality finishes throughout, and the comfort of in-floor heating. The upper unit's laundry room is large enough to serve as a home office or even a third bedroom. The home sits at the quiet end of town, providing a peaceful, country-like setting while still being a short drive to downtown Penetanguishene and only ten minutes from Midland. With a paved driveway completed in 2022 and a move-in-ready feel from top to bottom, this duplex is an exceptional opportunity for investors, multi-generational living, or friends looking to buy together! (id:27476)

Property Highlights

MLS® Number
S12915636
Type
Multi-family
Community Name
Penetanguishene
Land Size
67.6 x 200 FT
Parking Space Total
4

Building

Building Type
Duplex
Storeys
1.00
Square Footage
2000 - 2500 sqft
Bathrooms Total
2
Bedrooms Above Ground
3
Bedrooms Total
5
Amenities
Marina, Park
Exterior Finish
Vinyl siding
Fireplace Present
No
Basement Type
Full (Finished)
Basement Features
Walk out
Building Heating Type
Heat Pump
Heating Fuel
Electric
Building Cooling Type
Wall unit

Utilities

Water
Municipal water
Utility Sewer
Sanitary sewer

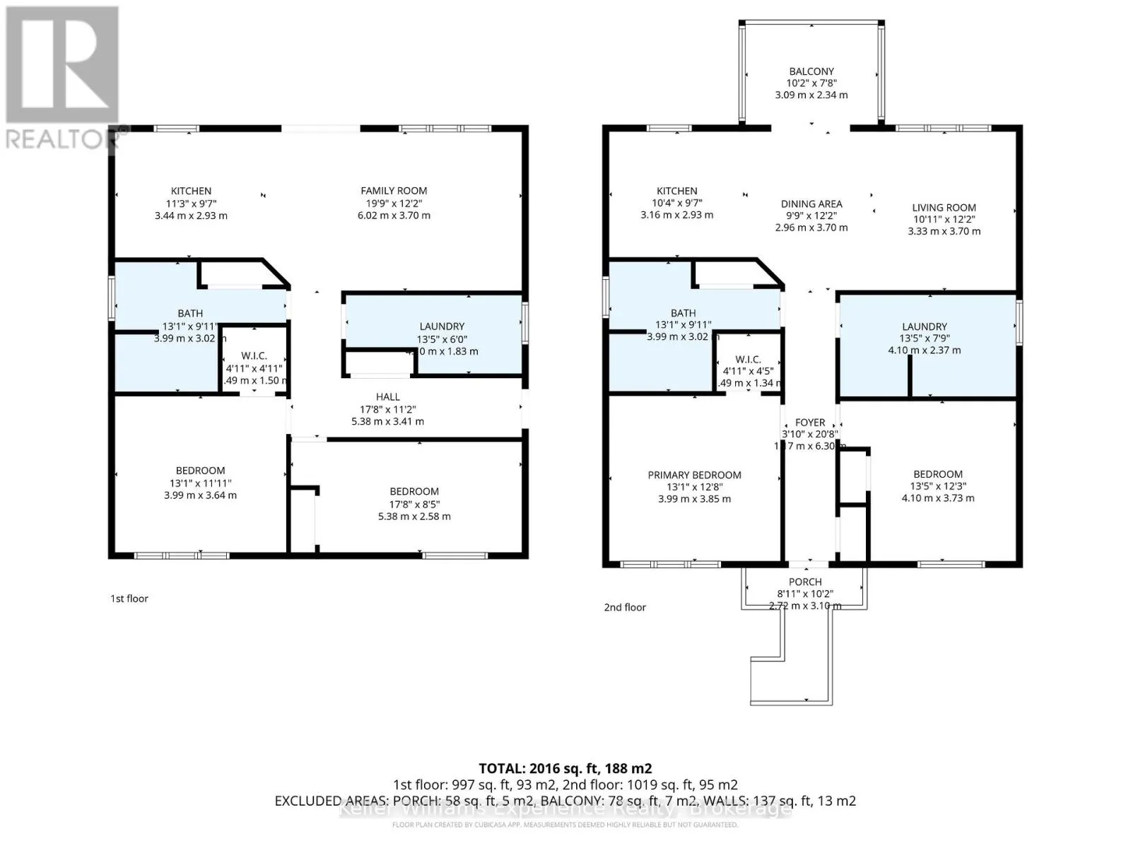
Room Layout

Kitchen
Lower level
3.44 m x 2.93 m
Living room
Lower level
6.02 m x 3.7 m
Bedroom
Lower level
3.99 m x 3.64 m
Bedroom
Lower level
5.38 m x 2.58 m
Kitchen
Upper Level
3.16 m x 2.93 m
Dining room
Upper Level
3.7 m x 2.96 m
Living room
Upper Level
3.7 m x 3.33 m
Bedroom
Upper Level
3.99 m x 3.85 m
Bedroom
Upper Level
4.1 m x 3.73 m
Bedroom
Upper Level
4.1 m x 2.37 m

Location

Learn more about this property
Listing provided by:
Keller Williams Experience Realty
MLS® number:
S12915636
Agent:
Eric Beutler
*Indicates required field
Name is required
Email is required
Please enter a valid phone number (e.g., 416-111-1111).