43 Coulter Street, Perth East, Ontario N0K 1M0

Listed for:
$849,900
3 beds
2 baths
Listed 155 days ago
House for rent: 43 Coulter Street, Perth East, Ontario N0K 1M0

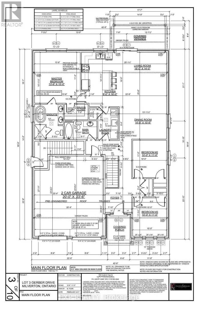
View all 32 photos

About

Cross Streets: Mill st. ** Directions: Coulter and Mill St. HST REBATE AVAILABLE, SAVE 10'S OF THOUSANDS. REACH OUT FOR MORE DETAILS!!! Welcome to this thoughtfully crafted to-be-built 1,500 sq. ft. bungalow set on a desirable 50' x 120' lot in the heart of Milverton. Designed with flexibility in mind, buyers can choose between a 3-bedroom layout-perfect for families-or a 2-bedroom option that provides larger, more luxurious living spaces. From the moment you step inside, you'll appreciate the elevated standard features that come included: 9-foot main-floor ceilings, quartz countertops throughout, and a bright, open-concept living area that blends comfort with contemporary style. The main floor offers two full bathrooms, including a private primary ensuite and a well-appointed 4-piece bath for guests or family. While the home is already impressively appointed, buyers have the opportunity to take it even further with optional upgrades such as enhanced millwork, upgraded flooring selections, premium lighting packages, Glass railings and wine displays, and more-all allowing you to tailor the finishes to your taste and lifestyle. For those seeking even more living space, a basement finishing option is available for an additional cost, providing the ideal place for a rec room, extra bedrooms, or a home office. This is your chance to build a brand-new bungalow that reflects your style from day one-beautifully designed, thoughtfully planned, and ready to customize to perfection. (id:27476)

Property Highlights

MLS® Number
X12632058
Type
Single Family
Community Name
Milverton
Ownership Type
Freehold
Land Size
50 x 120 FT
Parking Space Total
4

Building

Building Type
House
Storeys
1.00
Square Footage
1500 - 2000 sqft
Bathrooms Total
2
Bedrooms Above Ground
3
Bedrooms Total
3
Amenities
Fireplace(s)
Exterior Finish
Brick, Stone
Fireplace Present
Yes
Basement Type
Full (Unfinished)
Basement Features
Building Heating Type
Forced air
Heating Fuel
Natural gas
Building Cooling Type
Central air conditioning, Ventilation system

Utilities

Water
Municipal water
Utility Sewer
Sanitary sewer

Room Layout

Bedroom
Main level
1 m x 1 m
Bedroom
Main level
1 m x 1 m
Bedroom
Main level
1 m x 1 m
Bathroom
Main level
1 m x 1 m
Bathroom
Main level
1 m x 1 m
Kitchen
Main level
1 m x 1 m
Living room
Main level
1 m x 1 m

Location

Learn more about this property
Listing provided by:
EXP REALTY
MLS® number:
X12632058
Agent:
Dillon Doucette
*Indicates required field
Name is required
Email is required
Please enter a valid phone number (e.g., 416-111-1111).