50 Robinson Street, Perth, Ontario K7H 2E8

Listed for:
$544,900
5 beds
3 baths
Listed 2 days ago
House for rent: 50 Robinson Street, Perth, Ontario K7H 2E8

View all 35 photos

About

Cross Streets: South St. & Gore St. East. ** Directions: Hwy 7, turn on Wilson St. W, Left on North St., Right on Gore St. E, Right on Robinson St. to #50. Welcome to 50 Robinson Street! This charming, raised bungalow nestled in the heart of Perth is perfect for families, investors, or anyone looking to enjoy small-town living with everyday convenience. The main level offers a bright and functional layout featuring three comfortable bedrooms, an ensuite plus a guest full bathroom, and a spacious living room ideal for relaxing or entertaining. The traditional eat-in kitchen flows seamlessly to the dining area, creating a warm and inviting space for family meals and gatherings. Downstairs, the fully finished lower level expands your living space with two additional bedrooms, office/rec room, a second full bathroom, and a dedicated laundry room-perfect for extended family, guests, or a potential in-law setup. You'll also find ample storage space to keep everything organized. Step outside to enjoy the large, sunny backyard-an ideal setting for summer barbecues, gardening, or simply unwinding in your own private outdoor space. Located in a desirable, walkable neighbourhood, this home is just minutes from local schools, parks, churches, and the charming shops and restaurants of downtown Perth. A fantastic opportunity to own a versatile and well-located home-don't miss your chance to make it yours! (id:27476)

Property Highlights

MLS® Number
X12995556
Type
Single Family
Community Name
907 - Perth
Ownership Type
Freehold
Land Size
55 x 140 FT

Building

Building Type
House
Storeys
1.00
Square Footage
1100 - 1500 sqft
Bathrooms Total
3
Bedrooms Above Ground
3
Bedrooms Total
5
Amenities
Golf Nearby, Hospital, Park, Schools, Place of Worship
Exterior Finish
Shingles, Steel
Fireplace Present
Yes
Basement Type
N/A (Finished)
Basement Features
Building Heating Type
Forced air, Not known
Heating Fuel
Natural gas, Wood
Building Cooling Type
Central air conditioning

Utilities

Water
Municipal water
Utility Sewer
Sanitary sewer

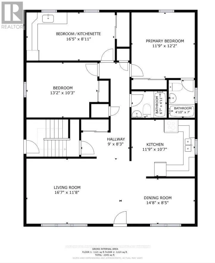
Room Layout

Bathroom
Lower level
7.9 m x 7.8 m
Laundry room
Lower level
14.8 m x 10.8 m
Den
Lower level
18.11 m x 9.8 m
Workshop
Lower level
18.11 m x 8.1 m
Bedroom 4
Lower level
14.4 m x 8.7 m
Bedroom 5
Lower level
10.5 m x 18.9 m
Living room
Main level
16.7 m x 11.8 m
Dining room
Main level
14.8 m x 8.5 m
Kitchen
Main level
11.9 m x 10.7 m
Primary Bedroom
Main level
11.9 m x 12.2 m
Bathroom
Main level
4.1 m x 7 m
Bedroom 2
Main level
13.2 m x 10.3 m
Bedroom 3
Main level
16.5 m x 8.11 m
Bathroom
Main level
6.7 m x 4.11 m

Location

Learn more about this property
Listing provided by:
COLDWELL BANKER FIRST OTTAWA REALTY
MLS® number:
X12995556
Agent:
Stephanie Mols
*Indicates required field
Name is required
Email is required
Please enter a valid phone number (e.g., 416-111-1111).