373 Queen Street, Peterborough, Ontario K9H 3J7

Listed for:
$17
0 beds
0 baths
Listed 51 days ago
373 Queen Street, Peterborough, Ontario K9H 3J7

View all 12 photos

About

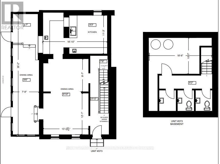
Queen St/ Simcoe St This prime and highly functional corner retail/office space offers between 1,589 SF - 2,932 SF plus a large exclusive outdoor patio/terrace with approx. 1,000 SF of additional space. Located at the centre of downtown Peterborough and very close to the desirable East City District in this high-visibility location. The property is zoned for various retail and office uses including restaurants and medical uses. The property has ample parking available and positioned directly across from Peterborough Square Mall and Galaxy Cinemas, the property benefits from steady pedestrian and vehicle traffic. Just steps from Millennium Park and the scenic waterfront marina, it provides the perfect blend of convenience and natural charm to attract both locals and visitors. Surrounded by restaurants, shops, and major amenities, this vibrant area offers an ideal opportunity for any retail or service-based business looking to establish itself and thrive in a growing commercial district. (id:27476)

Property Highlights

MLS® Number
X12586174
Type
Retail
Community Name
Town Ward 3

Building

Square Footage
1589 sqft
Fireplace Present
No
Basement Type
Basement Features
Building Heating Type
Forced air
Heating Fuel
Natural gas
Building Cooling Type
Fully air conditioned

Utilities

Water
Municipal water

Location

Learn more about this property
Listing provided by:
REMAX YOUR COMMUNITY REALTY
MLS® number:
X12586174
Agent:
Ryan Henry
*Indicates required field
Name is required
Email is required
Please enter a valid phone number (e.g., 416-111-1111).

Community Spotlight: Homes For lease in Your Neighborhood