339-341 Reid Street, Peterborough, Ontario K9H 4G3

Listed for:
$650,000
0 beds
4 baths
Listed 70 days ago
Duplex for rent: 339-341 Reid Street, Peterborough, Ontario K9H 4G3

View all 38 photos

About

Cross Streets: Simcoe St, Reid St & Charlotte St. ** Directions: South of Simcoe St, North of Charlotte St onReid St. Excellent opportunity to own a spacious duplex-style property in a desirable central Peterborough location. Offering over 2,700 sq ft, this well-maintained home is currently configured as a professional/medical office but provides strong potential for conversion to mixed use. The flexible layout allows for creative reconfiguration to suit a variety of residential and commercial needs, making it ideal for investors, renovators, or owner-occupiers seeking income potential. A rare feature for the area, the property includes parking for up to8 vehicles. Conveniently located close to downtown amenities, transit, shops, and services, this property offers excellent long-term value in a sought-after neighbourhood. (id:27476)

Property Highlights

MLS® Number
X12723580
Type
Multi-family
Community Name
Town Ward 3
Land Size
50 x 115 FT|under 1/2 acre
Parking Space Total
8

Building

Building Type
Duplex
Storeys
2.00
Square Footage
2500 - 3000 sqft
Bathrooms Total
4
Amenities
Hospital, Marina, Park, Place of Worship, Public Transit
Exterior Finish
Brick, Concrete
Fireplace Present
No
Basement Type
Full, N/A (Partially finished)
Basement Features
Building Heating Type
Forced air
Heating Fuel
Natural gas
Building Cooling Type
Central air conditioning

Utilities

Water
Municipal water
Utility Sewer
Sanitary sewer

Room Layout

Other
Second level
4.12 m x 5.18 m
Office
Second level
3.72 m x 2.52 m
Office
Second level
3.72 m x 2.56 m
Office
Second level
2.43 m x 3.3 m
Office
Second level
0.83 m x 3.3 m
Office
Second level
2.67 m x 2.64 m
Office
Second level
2.25 m x 3.3 m
Bathroom
Second level
2.43 m x 2.19 m
Bathroom
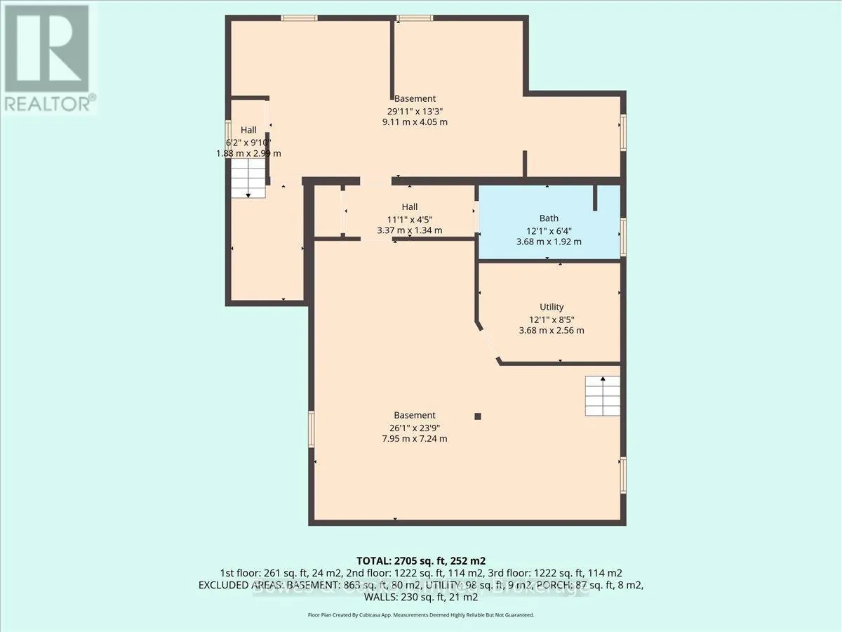
Basement
3.68 m x 1.92 m
Utility room
Basement
3.68 m x 2.56 m
Other
Basement
9.11 m x 4.05 m
Other
Basement
7.95 m x 7.24 m
Office
Main level
2.67 m x 4.23 m
Office
Main level
3.29 m x 4.16 m
Office
Main level
3.15 m x 4.16 m
Bathroom
Main level
2.43 m x 2.2 m
Bathroom
Main level
1.43 m x 1.46 m
Office
Main level
2.69 m x 4.23 m

Location

Learn more about this property
Listing provided by:
Bowes & Cocks Limited
MLS® number:
X12723580
Agent:
Blake Steels
*Indicates required field
Name is required
Email is required
Please enter a valid phone number (e.g., 416-111-1111).

Community Spotlight: Homes For sale in Your Neighborhood