Lower - 114 Simcoe Street, Peterborough, Ontario K9H 2H4

Listed for:
$569
0 beds
0 baths
Listed 50 days ago
Offices for rent: Lower - 114 Simcoe Street, Peterborough, Ontario K9H 2H4

View all 4 photos

About

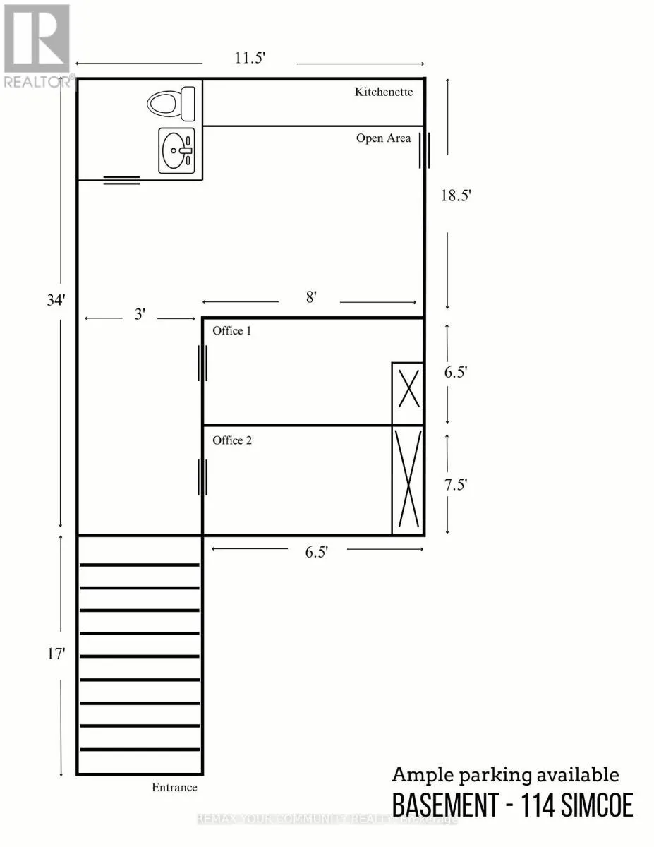
Simcoe St / Water St Prime retail space located in the heart of downtown Peterborough. Almost 400 Sqft available. Parking available. Directly across from Peterborough Square mall, Galaxy cinema, and Millennium waterfront Park. Do not miss out on this fantastic opportunity to be located in a central location, with high vibrancy and conveniently very walkable! (id:27476)

Property Highlights

MLS® Number
X12803834
Type
Office
Community Name
Town Ward 3
Land Size
79.53 x 67.82 FT

Building

Building Type
Offices
Square Footage
391 sqft
Fireplace Present
No
Basement Type
Basement Features
Building Heating Type
Forced air
Heating Fuel
Natural gas
Building Cooling Type
Fully air conditioned

Utilities

Water
Municipal water

Location

Learn more about this property
Listing provided by:
REMAX YOUR COMMUNITY REALTY
MLS® number:
X12803834
Agent:
Ryan Henry
*Indicates required field
Name is required
Email is required
Please enter a valid phone number (e.g., 416-111-1111).