62 York Drive, Peterborough, Ontario K9K 0H8

Listed for:
$739,900
4 beds
3 baths
Listed 2 days ago
House for rent: 62 York Drive, Peterborough, Ontario K9K 0H8

View all 28 photos

About

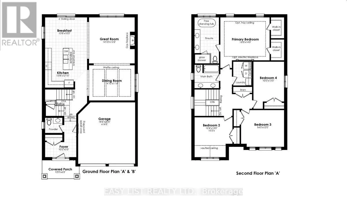
York Drive and Clayton Avenue *** For more information, please click Brochure button. *** Stunning 4-bedroom, 2.5-bathroom single detached home in Peterborough's sought-after West End community. Offering 2,530 sq. ft. of living space, this residence features a classic brick and vinyl exterior, 9' main-floor ceilings, extra-tall windows, a covered front porch, and a 2 car garage. The brand new home design features 4 large bedrooms 2.5 bathrooms including a primary ensuite with free standing soaker tub, double sink vanity and separate glass shower. The home also includes hardwood flooring on the main floor, ceramic tile throughout wet areas and quality carpet on the second floor. The open-concept kitchen/great room is anchored by quartz kitchen countertops, perfect for everyday living and entertaining. The purchaser still has the option of choosing all of the interior and exterior finishings for this new home. The structure is to be built; the photos are of similar construction. Rendering photos. (id:27476)

Property Highlights

MLS® Number
X12956196
Type
Single Family
Community Name
Monaghan Ward 2
Ownership Type
Freehold
Land Size
40 x 108 FT|under 1/2 acre
Parking Space Total
4

Building

Building Type
House
Storeys
2.00
Square Footage
2500 - 3000 sqft
Bathrooms Total
3
Bedrooms Above Ground
4
Bedrooms Total
4
Exterior Finish
Brick, Vinyl siding
Fireplace Present
No
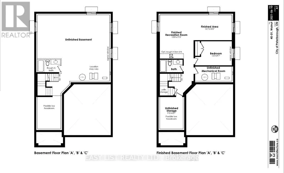
Basement Type
N/A (Unfinished)
Basement Features
Building Heating Type
Forced air
Heating Fuel
Natural gas
Building Cooling Type
None, Air exchanger

Utilities

Water
Municipal water
Utility Sewer
Sanitary sewer

Room Layout

Primary Bedroom
Second level
4.8 m x 4.2 m
Bathroom
Second level
4.5 m x 1.8 m
Laundry room
Second level
2.1 m x 1.5 m
Bathroom
Second level
1.8 m x 1.8 m
Bedroom 2
Second level
3.6 m x 3 m
Bedroom 3
Second level
4.2 m x 3.6 m
Bedroom 4
Second level
3.9 m x 3 m
Dining room
Main level
4.2 m x 3.3 m
Great room
Main level
4.2 m x 4.5 m
Kitchen
Main level
6.7 m x 3 m
Foyer
Main level
3 m x 1.5 m
Bathroom
Main level
1.2 m x 1.2 m

Location

Learn more about this property
Listing provided by:
EASY LIST REALTY LTD.
MLS® number:
X12956196
Agent:
Sophie Alegra Giterman
*Indicates required field
Name is required
Email is required
Please enter a valid phone number (e.g., 416-111-1111).