401 Fielden Avenue, Port Colborne, Ontario L3K 4T9

Listed for:
$549,900
4 beds
2 baths
Listed 49 days ago
House for rent: 401 Fielden Avenue, Port Colborne, Ontario L3K 4T9

View all 47 photos

About

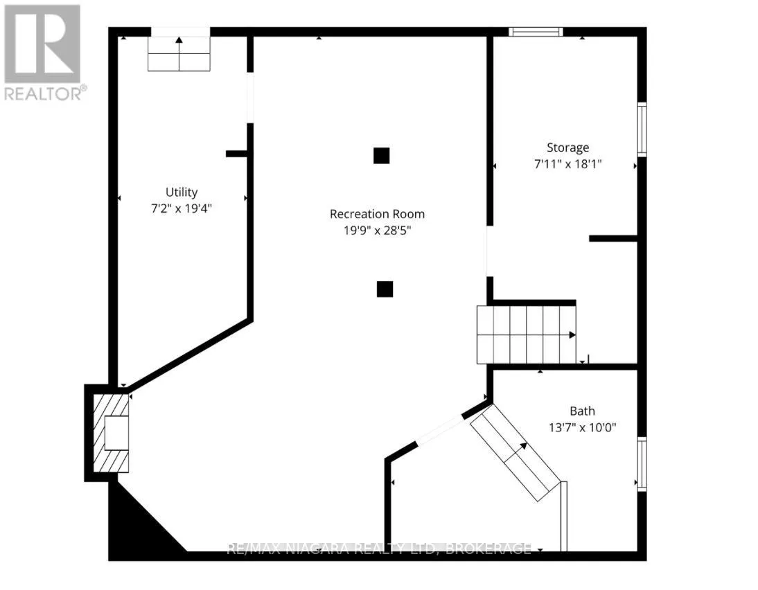
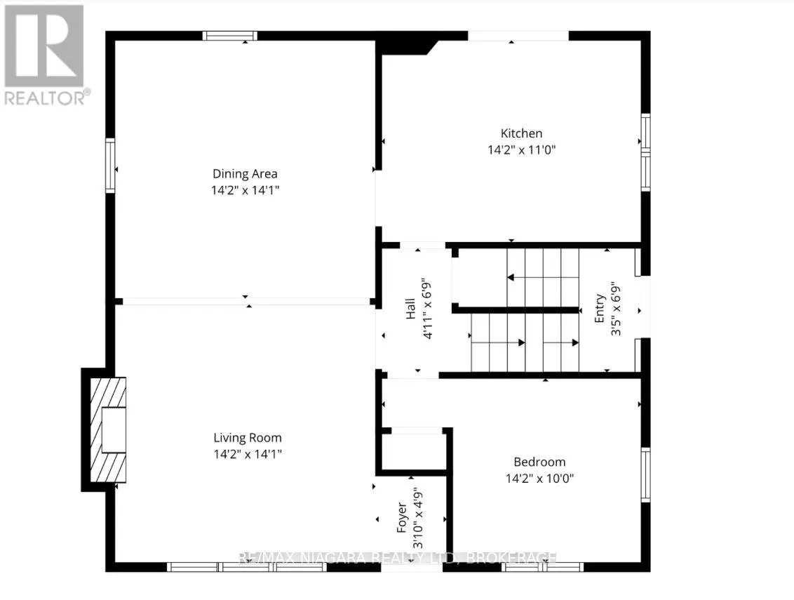
Cross Streets: Killaly St W & Fielden. ** Directions: Turn onto Fielden Ave from Killaly St W. Charming 1&1/2 storey home in one of Port Colborne's most convenient and desirable locations, situated on an impressive 49 x 223-foot lot backing onto a park and baseball diamond, offering no rear neighbours. This well-laid-out home provides approximately 1,650 sq. ft. of above-grade living space, plus a walkout lower level with excellent in-law or secondary suite potential. Outstanding curb appeal featuring updated vinyl siding, a durable metal roof, and a modern front door sets the tone before you even step inside. The bright, open-concept living and dining area is perfect for both cozy family evenings and entertaining, highlighted by a striking electric fireplace framed with built-in bookshelves and exposed brick. The sun-filled kitchen features large patio sliding doors that bring in natural light and create a seamless connection to the backyard. The main floor also includes a convenient bedroom that could easily function as a guest room or home office. Upstairs, you'll find two spacious bedrooms, including a generous primary suite with an oversized walk-in closet, along with a well-appointed 4-piece bathroom. The lower level is ideally configured for an in-law suite or potential secondary unit, featuring a separate side entrance and a walkout to the yard. The basement currently includes a large recreation room with a brick gas fireplace, a laundry area, a 1-piece bathroom, an additional room that could serve as a fourth bedroom, and a utility room. Outside, the property boasts a detached single-car garage and plenty of space for outdoor living. Enjoy entertaining on the deck or relaxing under the gazebo, with ample room for play, gardening, or future upgrades. Located directly across from schools and adjacent to the local police station for added peace of mind, and within walking distance to Canal Days, local restaurants, and Lake Erie. A fantastic opportunity to move in, enjoy, and personalize this beautiful home to make it your own. (id:27476)

Property Highlights

MLS® Number
X12780958
Type
Single Family
Community Name
878 - Sugarloaf
Ownership Type
Freehold
Land Size
49 x 223.8 FT|under 1/2 acre
Parking Space Total
4

Building

Building Type
House
Storeys
1.50
Square Footage
1500 - 2000 sqft
Bathrooms Total
2
Bedrooms Above Ground
3
Bedrooms Total
4
Amenities
Fireplace(s) Park, Schools, Public Transit, Marina, Place of Worship
Exterior Finish
Vinyl siding
Fireplace Present
Yes
Basement Type
Full, N/A, N/A (Finished)
Basement Features
Walk out
Building Heating Type
Forced air
Heating Fuel
Natural gas
Building Cooling Type
Central air conditioning

Utilities

Water
Municipal water
Utility Sewer
Sanitary sewer

Room Layout

Primary Bedroom
Second level
5.21 m x 3.99 m
Bedroom 3
Second level
5.21 m x 4.38 m
Bathroom
Second level
3.35 m x 2.16 m
Utility room
Basement
2.19 m x 5.91 m
Recreational, Games room
Basement
6.06 m x 8.68 m
Bathroom
Basement
2.16 m x 3.04 m
Other
Basement
2.16 m x 5.51 m
Living room
Main level
4.32 m x 4.29 m
Dining room
Main level
4.32 m x 4.29 m
Kitchen
Main level
4.32 m x 3.35 m
Bedroom
Main level
4.32 m x 3.04 m

Location

Learn more about this property
Listing provided by:
RE/MAX NIAGARA REALTY LTD, BROKERAGE
MLS® number:
X12780958
Agent:
Michael Davis
*Indicates required field
Name is required
Email is required
Please enter a valid phone number (e.g., 416-111-1111).

Street Spotlight - For sale