214 - 220 Erie Street, Port Colborne, Ontario L3K 0A6

Listed for:
$1,600
2 beds
1 baths
Listed 5 days ago
214 - 220 Erie Street, Port Colborne, Ontario L3K 0A6

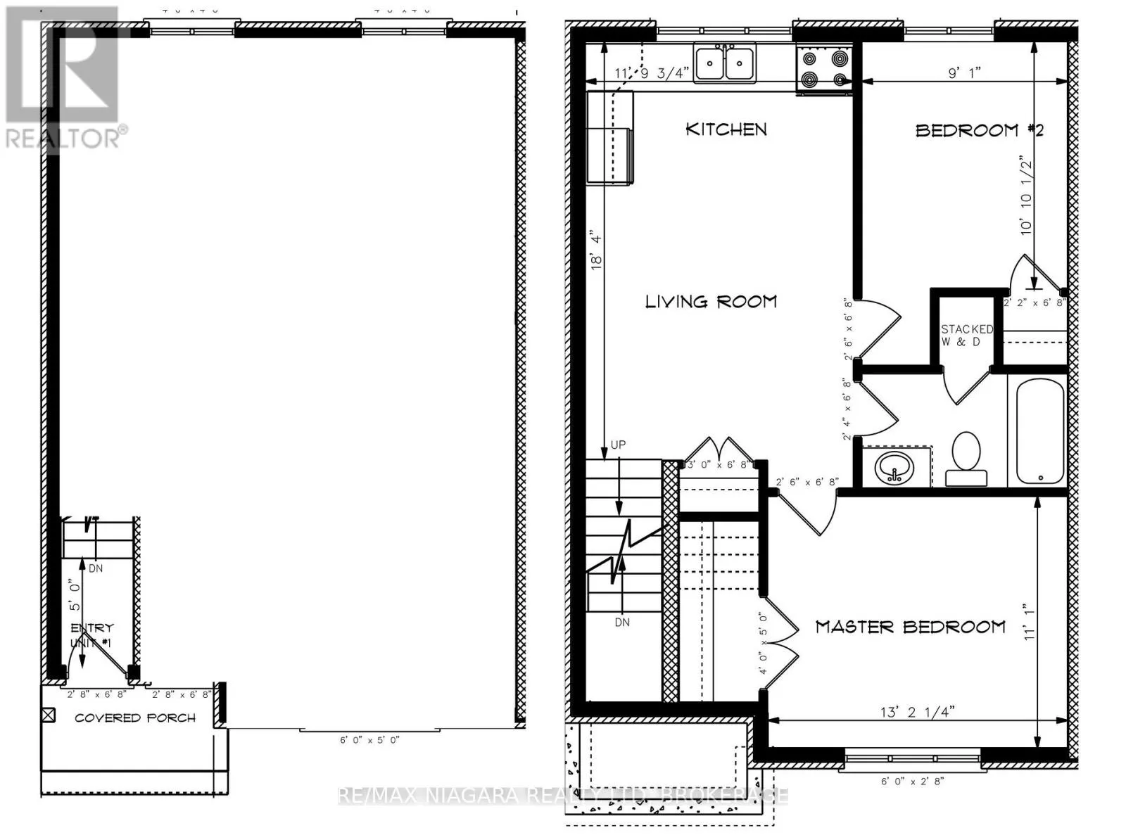
View all 8 photos

About

Cross Streets: Erie st / George st. ** Directions: Erie St/George St. Discover this beautifully renovated 2-bedroom basement suite, designed with both style and comfort in mind. Unlike typical lower-level units, this home features ample natural lighting that creates a bright, airy atmosphere throughout the open-concept living space.Highlights of This Home:Fully Renovated: Enjoy a fresh, modern aesthetic with high-quality finishes and contemporary flooring.Spacious Layout: Two well-proportioned bedrooms offering plenty of closet space.Professional Management: Situated in a meticulously maintained building, ensuring a clean and quiet environment for all residents.Convenience Included: Comes with private parking and is located in a highly sought-after, friendly neighborhood.Whether you are a professional looking for a quiet retreat or a small family seeking a move-in-ready home, this unit offers the perfect blend of quality and value. (id:27476)

Property Highlights

MLS® Number
X12927934
Type
Vacant Land
Community Name
877 - Main Street
Land Size
176 x 108.83 FT

Building

Bathrooms Total
1
Bedrooms Above Ground
2
Bedrooms Total
2
Fireplace Present
No
Basement Type
Basement Features
Building Heating Type
Not known
Heating Fuel
Electric
Building Cooling Type

Location

Learn more about this property
Listing provided by:
RE/MAX NIAGARA REALTY LTD, BROKERAGE
MLS® number:
X12927934
Agent:
Andrews Moses Jebaraj
*Indicates required field
Name is required
Email is required
Please enter a valid phone number (e.g., 416-111-1111).