316 Picton Main Street, Prince Edward County, Ontario K0K 2T0

Listed for:
$22
0 beds
3 baths
Listed 263 days ago
316 Picton Main Street, Prince Edward County, Ontario K0K 2T0

View all 19 photos

Learn more about this property
Listing provided by:
CENTURY 21 LANTHORN REAL ESTATE LTD.
MLS® number:
X11992430
Agent:
Elyse Gallagher
*Indicates required field
Name is required
Email is required
Please enter a valid phone number (e.g., 416-111-1111).

About

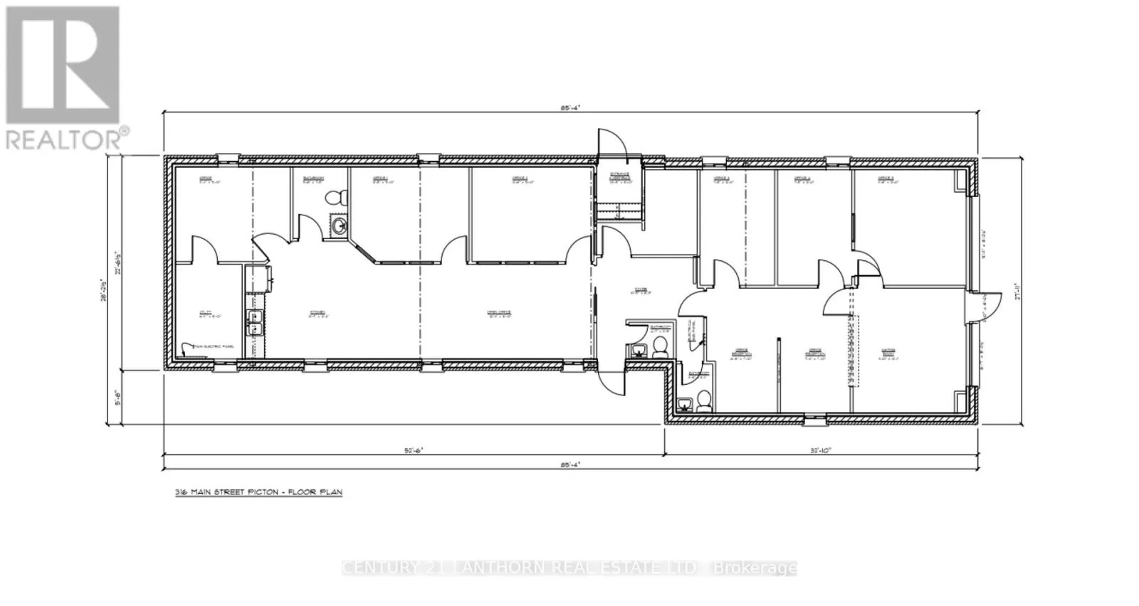
Cross Streets: Main/Bridge. ** Directions: Head Northeast down Main from Talbot St. Prime Picton location for your business! Located on the corner of Picton Main Street and Bridge Street with frontage on both. You won't find exposure anywhere else in Picton quite like this. Offering 2100 square feet and zoned Core Commercial. As of right now the space is designed for offices offering 3 washrooms, 6 offices and parking for 5 vehicles. Core Commercial zoning allows this building to be used as a restaurant or retail space. Potential for two separate commercial tenants to use the space. (id:27476)

Property Highlights

MLS® Number
X11992430
Type
Retail
Community Name
Picton Ward
Land Size
32.38 x 110.39 FT
Parking Space Total
5

Building

Square Footage
2100 sqft
Bathrooms Total
3
Amenities
Recreation
Fireplace Present
No
Basement Type
Basement Features
Building Heating Type
Baseboard heaters
Heating Fuel
Building Cooling Type
Fully air conditioned

Utilities

Water
Municipal water

Location