55 Parliament Street, Prince Edward County, Ontario K8N 4Z7

Listed for:
$385,000
0 beds
0 baths
Listed 159 days ago
55 Parliament Street, Prince Edward County, Ontario K8N 4Z7

View all 5 photos

Learn more about this property
Listing provided by:
Royal LePage Our Neighbourhood Realty
MLS® number:
X12213822
Agent:
Tara Hussein
*Indicates required field
Name is required
Email is required
Please enter a valid phone number (e.g., 416-111-1111).

About

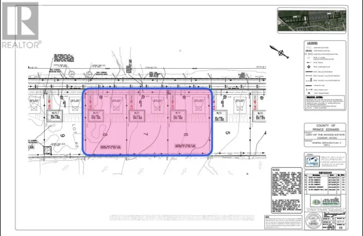
Parliament & County Rd 3 Welcome to Lady of the Woods Estates! This pristine 0.983 acre lot (Lot 5) in Prince Edward County offers a rare opportunity to build your dream estate home with walkout basement near the water. Enjoy the perfect blend of urban convenience and nature in this stunning island community, just minutes from downtown.Lady of the Woods Estates is ideally located, just a 2-minute walk from the picturesque Bay of Quinte and a 5-minute drive from the heart of town. With easy access to Highway 401, it's only a 2-hour drive to Toronto and 2.5 hours to Ottawa. Discover the unparalleled charm and convenience of living in Prince Edward County today! (id:27476)

Property Highlights

MLS® Number
X12213822
Type
Vacant Land
Community Name
Ameliasburg Ward
Land Size
170.6 x 253 FT|1/2 - 1.99 acres

Building

Fireplace Present
No
Basement Type
Basement Features
Building Heating Type
Heating Fuel
Building Cooling Type

Utilities

Water
Municipal water
Utility Sewer
Sanitary sewer

Location