1866-1874 County Rd 12 Road, Prince Edward County, Ontario K0K 2T0

Listed for:
$4,295,000
0 beds
0 baths
Listed 133 days ago
1866-1874 County Rd 12 Road, Prince Edward County, Ontario K0K 2T0

View all 50 photos

About

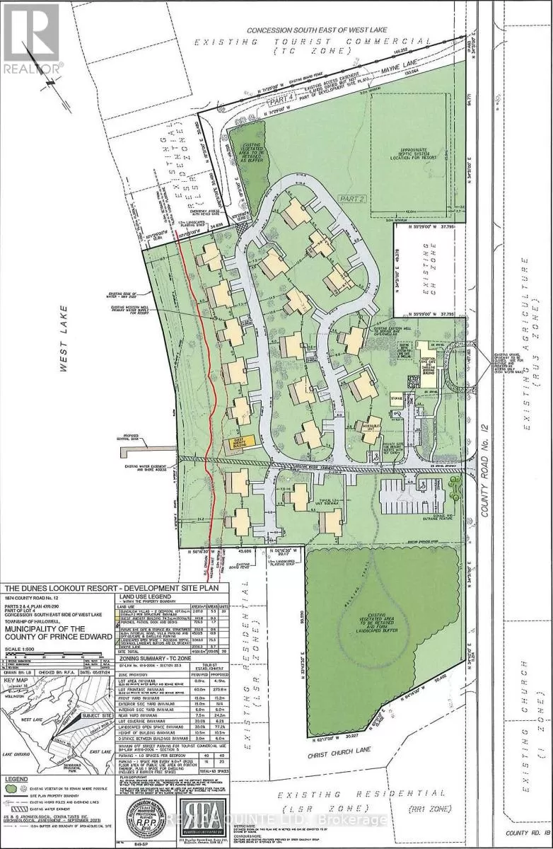
Cross Streets: Highway 62 & County Rd 12. ** Directions: 62 South, right on County Rd 12. Prime cottage compound site for a multi generational family. Set on 10.5 acres with 550 feet of prime waterfront on West Lake and 905 feet of frontage on County Road 12, this property has been rezoned to allow for the creation of up to 20 cottages which could be one large cottage and several additional ones. The rezoned to resort approved vision also includes a bike retail shop and a restaurant cafe, perfectly positioned to capitalize on the steady flow of visitors to nearby Sandbanks Provincial Park. The view of the sandbanks and the ability to utilize the waterfront for swimming, boating and fishing has no equal in Eastern Ontario. Your family deserves this opportunity. Century Brick Duplex included at front of property. Seller also is offering separate parcel at 1856 Cty Rd 12 for $475,000. (id:27476)

Property Highlights

MLS® Number
X12236280
Type
Vacant Land
Community Name
Hallowell Ward
Land Size
905.02 x 649.41 FT|10 - 24.99 acres

Building

Fireplace Present
No
Basement Type
Basement Features
Building Heating Type
Heating Fuel
Building Cooling Type

Utilities

Utility Sewer
Septic System

Location

Learn more about this property
Listing provided by:
RE/MAX QUINTE LTD.
MLS® number:
X12236280
Agent:
Sean Mckinney
*Indicates required field
Name is required
Email is required
Please enter a valid phone number (e.g., 416-111-1111).