11807 Loyalist Parkway, Prince Edward County, Ontario K0K 2T0

Listed for:
$659,900
3 beds
2 baths
Listed 103 days ago
House for rent: 11807 Loyalist Parkway, Prince Edward County, Ontario K0K 2T0

View all 50 photos

Learn more about this property
Listing provided by:
CENTURY 21 LANTHORN REAL ESTATE LTD.
MLS® number:
X12246174
Agent:
Paul Gentile
*Indicates required field
Name is required
Email is required
Please enter a valid phone number (e.g., 416-111-1111).

About

From the Glenora Ferry travel towards picton and the house is on the left. From Picton travel east towards the ferry PICTON, A MUST SEE Immediate Possession Available : Charming Country Home with Income Potential & Extra Living Space! Get the feel of country living but close to downtown Picton, Lake on the Mountain and the Glenora ferry. It is central to all Prince Edward County has to offer such as stunning beaches, renowned wineries, and the exciting new Base31 entertainment venue. This charming, recently renovated and well-maintained 2+1 bedroom, 2-full bath home offers flexibility for families, investors, or those looking for extra financial support. Whether you're considering a secondary suite for rental income, welcoming kids returning from college or university, or simply looking for help with the mortgage, this home provides excellent possibilities.This home features a propane stove downstairs and propane fireplace upstairs. Included are new kitchen appliances with Wi-Fi connectivity and warranty. Recent renovations and additions include Reverse Osmosis (RO) system, 600 gallon under ground cistern with trickle system for well water, granite countertops, upstairs flooring, updated bathrooms with double sinks, all windows replaced, steel roof and new 200amp panel box. An attached heated and insulated garage offers additional living space, perfect for a TV room, art studio, or creative retreat. The basement is fully finished and has a separate entrance. There is a large upper front deck, large rock garden for quiet private nights below and large 3-tier back deck for entertaining. The house is situated on a large private country lot and has the original restored log cabin that has an interlocking brick floor and two large sheds for all kinds of storage.Enjoy all that Prince Edward County has to offer without the high costs! Don't miss this fantastic opportunity to own a versatile home in a prime location. New Trane Heat Pump/AC 12000 BTU ductless split installed. 10yr warranty. (id:27476)

Property Highlights

MLS® Number
X12246174
Type
Single Family
Community Name
Hallowell Ward
Ownership Type
Freehold
Land Size
83.4 x 333.6 FT|1/2 - 1.99 acres
Parking Space Total
4

Building

Building Type
House
Storeys
1.00
Square Footage
1500 - 2000 sqft
Bathrooms Total
2
Bedrooms Above Ground
2
Bedrooms Total
3
Amenities
Fireplace(s)
Exterior Finish
Vinyl siding
Fireplace Present
Yes
Basement Type
N/A, N/A (Finished)
Basement Features
Walk out
Building Heating Type
Other
Heating Fuel
Propane
Building Cooling Type

Utilities

Water
Drilled Well
Utility Sewer
Septic System

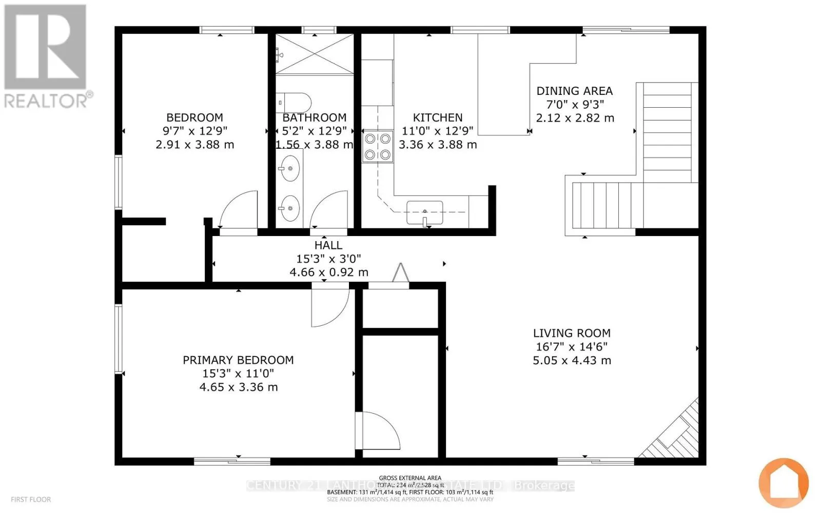
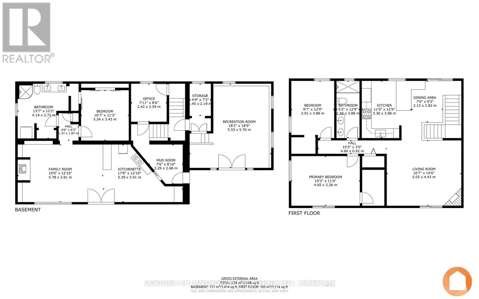
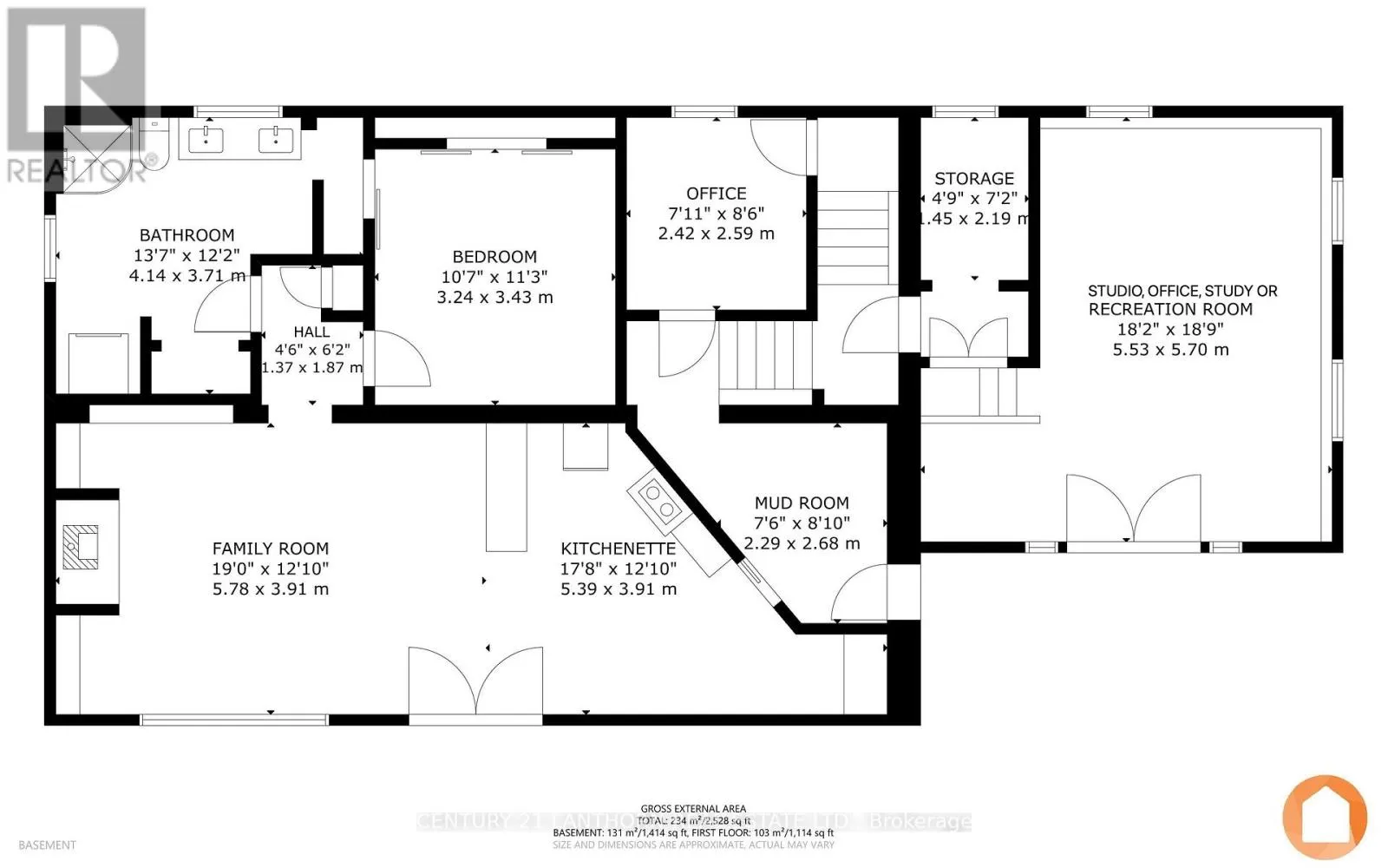
Room Layout

Bathroom
Lower level
4.14 m x 3.71 m
Family room
Lower level
5.79 m x 3.91 m
Kitchen
Lower level
5.38 m x 3.91 m
Study
Lower level
5.72 m x 5.54 m
Other
Lower level
2.18 m x 1.45 m
Office
Lower level
2.59 m x 2.41 m
Bedroom
Lower level
3.43 m x 3.23 m
Living room
Main level
5.05 m x 4.42 m
Kitchen
Main level
3.35 m x 3.89 m
Bathroom
Main level
3.89 m x 1.57 m
Primary Bedroom
Main level
4.65 m x 3.35 m
Bedroom
Main level
3.89 m x 2.92 m

Location

Street Spotlight - For sale