1647 County 10 Road, Prince Edward County, Ontario K0K 1P0

Listed for:
$824,900
3 beds
3 baths
Listed 41 days ago
House for rent: 1647 County 10 Road, Prince Edward County, Ontario K0K 1P0

View all 37 photos

Learn more about this property
Listing provided by:
CENTURY 21 LANTHORN REAL ESTATE LTD.
MLS® number:
X12454776
Agent:
Tammy Noyes
*Indicates required field
Name is required
Email is required
Please enter a valid phone number (e.g., 416-111-1111).

About

Cross Streets: County Road 18/County road 10. ** Directions: Picton to Cherry Valley VIA County Road 10. INCOME POTENTIAL IN PRINCE EDWARD COUNTY!! WHOLE HOME GRANDFATHERED STA (airBnB) license! This exquisitely renovated home was built in 1870 and retains the charm of the era - with wood floors & immaculately maintained tin ceilings & trim work, but the WOW factor is the kitchen. With over 200 square feet of cathedral vaulted kitchen/dining area, wood beams and tongue-and-groove ceiling, you have the perfect grand entertaining space. Everything you need for entertaining guests - the perfect STA for small wedding or family gathering & LOCATION - just minutes to Sandbanks Outlet Beach. Amazing entertaining area also features a cozy propane fireplace and walk out to the magnificently appointed patio space. This wonderful home features large living spaces, including family room with French doors, which could be a potential fourth bedroom, family washroom with heated floors, main floor laundry, large living room with propane fireplace, renovated enclosed porch, which doubles as an office & guest room with Murphy Bed (included) & generous entrance foyer with double closet. The upstairs is cozy and convenient, with 2-piece washroom, 2 queen-sized bedrooms plus a luxurious Primary bedroom, with room for King bed, built-in closets and ensuite with heated floors and towel warmer. Outdoors, the nearly-acre lot is brimming with established perennials & a variety of trees. The patio is tucked in, providing privacy, a place to entertain and BBQ, and a panoramic view of the wonderful lawn and gardens, above-ground pool, play structure & post-and-beam barn (which could be renovated into a more traditional garage). This home has amazing income potential, but has been a primary residence, allowing a buyer to choose for the future use without tax implications. (id:27476)

Property Highlights

MLS® Number
X12454776
Type
Single Family
Community Name
Athol Ward
Ownership Type
Freehold
Land Size
170.4 x 218.5 FT ; Irregular Square|1/2 - 1.99 acres
Parking Space Total
6

Building

Building Type
House
Storeys
2.00
Square Footage
2000 - 2500 sqft
Bathrooms Total
3
Bedrooms Above Ground
3
Bedrooms Total
3
Amenities
Fireplace(s) Beach, Hospital
Exterior Finish
Vinyl siding
Fireplace Present
Yes
Basement Type
Partial (Unfinished)
Basement Features
Building Heating Type
Forced air
Heating Fuel
Propane
Building Cooling Type
Central air conditioning

Utilities

Water
Drilled Well
Utility Sewer
Septic System

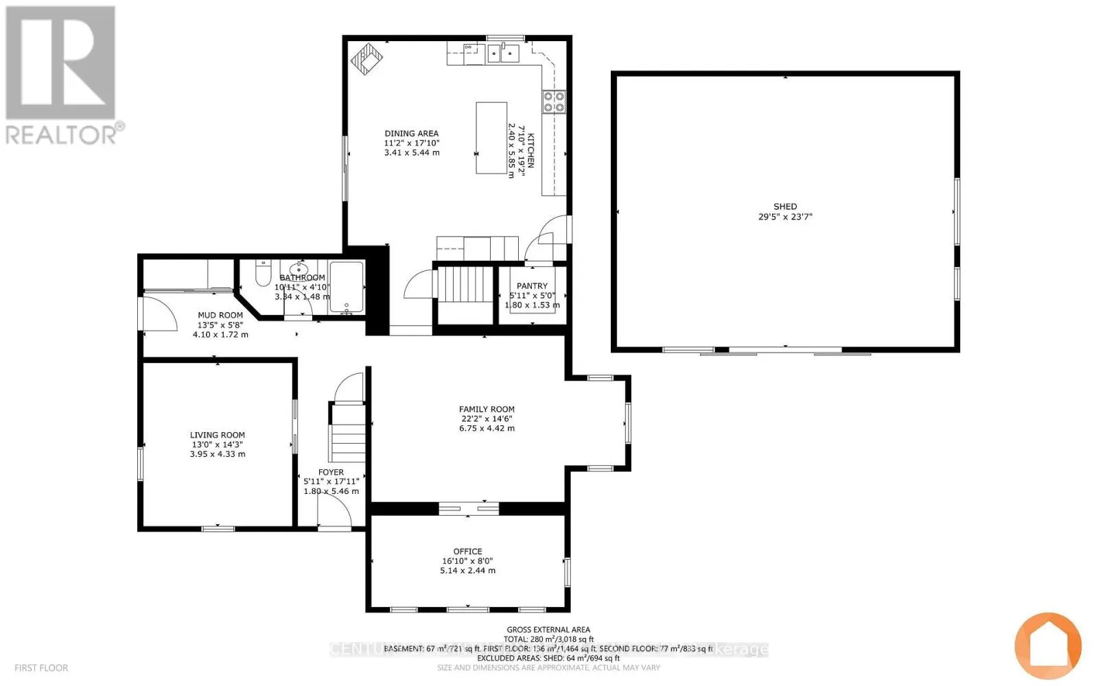
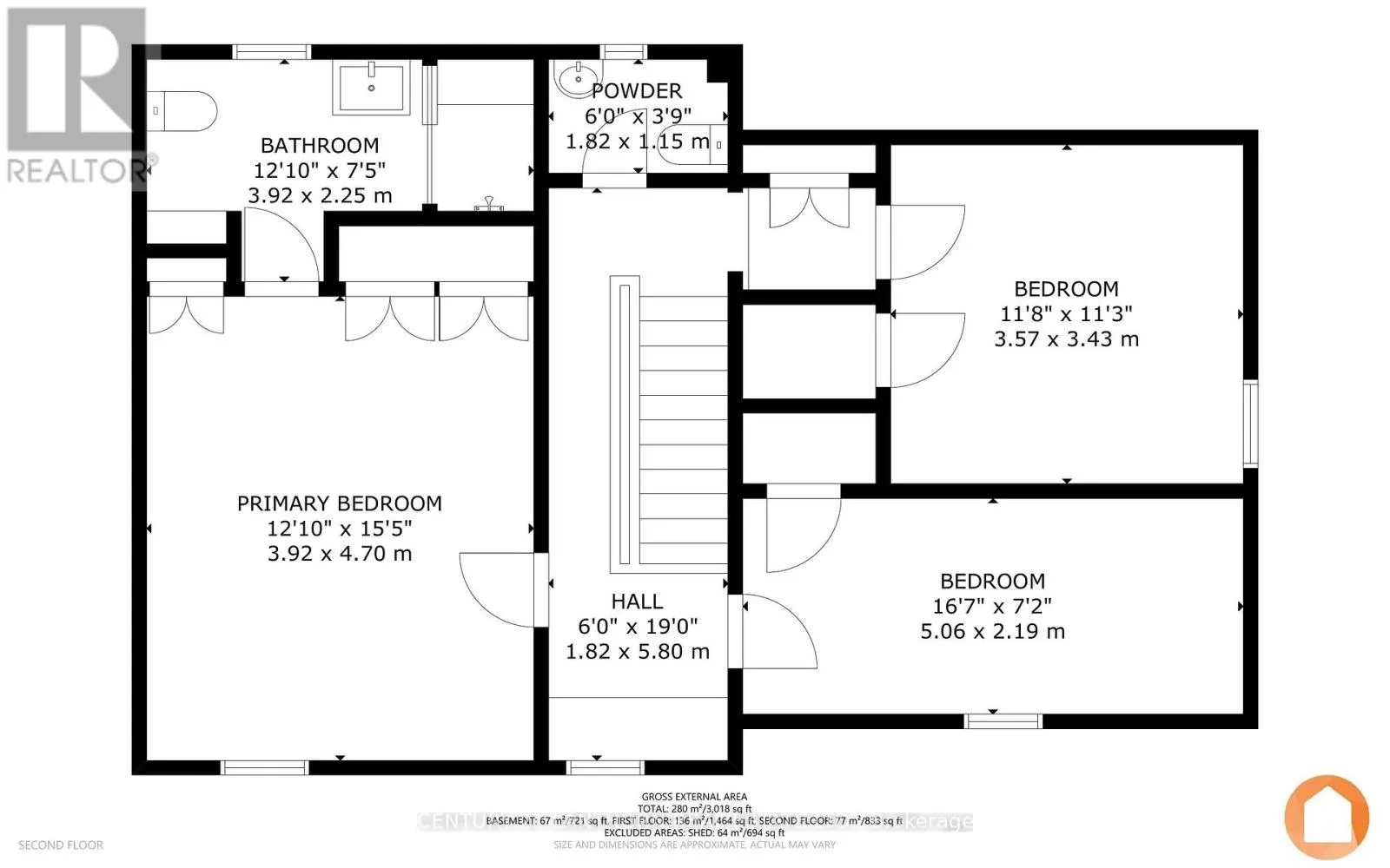
Room Layout

Bathroom
Second level
1.81 m x 1.14 m
Primary Bedroom
Second level
4.7 m x 3.91 m
Bathroom
Second level
3.91 m x 2.24 m
Bedroom
Second level
3.56 m x 3.42 m
Bedroom 2
Second level
5.05 m x 2.19 m
Other
Basement
6.8 m x 5.69 m
Bathroom
Main level
3.34 m x 1.48 m
Foyer
Main level
1.8 m x 5.45 m
Family room
Main level
6.75 m x 4041 m
Office
Main level
5.13 m x 2.44 m
Living room
Main level
3.95 m x 3.99 m
Kitchen
Main level
5.84 m x 1.99 m
Dining room
Main level
5.44 m x 2.99 m
Pantry
Main level
1.8 m x 1.53 m
Mud room
Main level
4.09 m x 1.71 m

Location

Street Spotlight - For sale