46 Consecon Street, Prince Edward County, Ontario K0K 3L0

Listed for:
$699,900
5 beds
4 baths
Listed 13 days ago
Duplex for rent: 46 Consecon Street, Prince Edward County, Ontario K0K 3L0

View all 40 photos

Learn more about this property
Listing provided by:
CHESTNUT PARK REAL ESTATE LIMITED
MLS® number:
X12518718
Agent:
Kate Vader
*Indicates required field
Name is required
Email is required
Please enter a valid phone number (e.g., 416-111-1111).

About

Cross Streets: Wellington Main St & Consecon St. ** Directions: Wellington Main Street to Consecon Street. Set along one of Wellingtons most desirable streets, this circa 1840s duplex is a distinctive proposition in the neighbourhood that offers a rare blend of versatility, design, and location in Prince Edward County. Anchored by a deep lot that stretches toward a canopy of green with west facing horizon, the opportunity comprises two self-contained residences, each with their own private driveway and entrances, contemporary finishes, and bright, open interiors tailored for modern-country living. Extensively renovated in 2020, the home features new plumbing, updated electrical panels, flooring throughout, appliances, and new hot water tanks. Additional upgrades include a new roof and, furnace and air conditioning, ensuring comfort. The north side of the abode features a stylish two-bedroom, two-bathroom unit, currently operating as a licensed STA, ideal for generating income through short-term. The other, a well-appointed three-bedroom, two-bathroom suite on the south side, lends itself beautifully to full-time living, extended family, or long term rental investment potential. Both units offer well equipped kitchens, clean-lined bathrooms, and seamless flow to expansive covered wrap around porches made for slow mornings and relaxed evenings. Outside, the oversized yard invites gathering and solitude alike, with ample space for recreation or quiet retreat beneath mature trees. Lots of room to expand with some vision and make it an epic backyard oasis. From this prized location, stroll by foot or bike to Wellingtons celebrated eateries, markets, and galleries, while the Millennium Trail and beach remain only minutes away, offering an effortless connection to everything the Countys Lifestyle is loved for. Whether you're envisioning multi-generational living, co-ownership, or a smart income-producing escape, this property represents a rare opportunity to be creative, live beautifully and intentionally, in a place where every path leads to something extraordinary. (id:27476)

Property Highlights

MLS® Number
X12518718
Type
Multi-family
Community Name
Wellington Ward
Land Size
63.6 x 262 FT
Parking Space Total
4

Building

Building Type
Duplex
Storeys
2.00
Square Footage
2000 - 2500 sqft
Bathrooms Total
4
Bedrooms Above Ground
5
Bedrooms Total
5
Amenities
Separate Heating Controls, Separate Electricity Meters Beach, Hospital, Schools, Marina
Exterior Finish
Aluminum siding
Fireplace Present
No
Basement Type
Crawl space (Unfinished)
Basement Features
Building Heating Type
Forced air
Heating Fuel
Natural gas
Building Cooling Type
Central air conditioning

Utilities

Water
Municipal water
Utility Sewer
Sanitary sewer

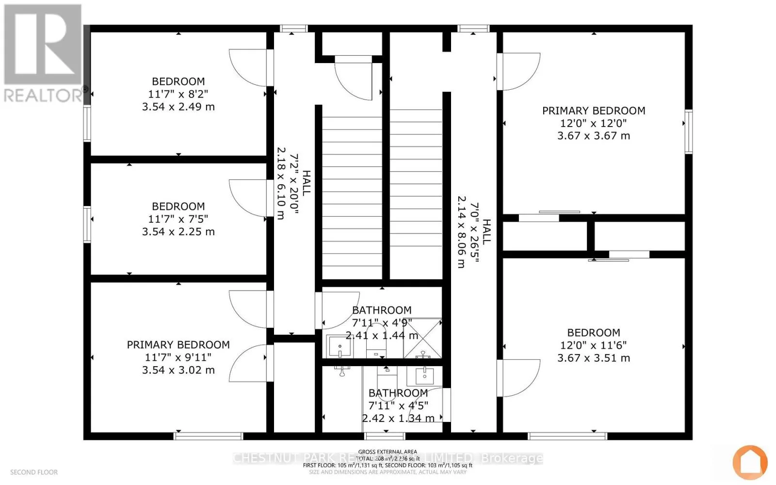
Room Layout

Primary Bedroom
Second level
3.67 m x 3.67 m
Bedroom
Second level
3.67 m x 3.51 m
Bathroom
Second level
2.42 m x 1.34 m
Primary Bedroom
Second level
3.54 m x 3.02 m
Bedroom
Second level
3.54 m x 2.25 m
Bedroom
Second level
3.54 m x 2.49 m
Bathroom
Second level
2.41 m x 1.44 m
Foyer
Main level
1.04 m x 3.07 m
Kitchen
Main level
4.73 m x 4.07 m
Bathroom
Main level
1.83 m x 2.94 m
Living room
Main level
4.81 m x 3.68 m
Kitchen
Main level
3.68 m x 4.34 m
Bathroom
Main level
2.17 m x 3.09 m
Foyer
Main level
1.08 m x 3.07 m
Living room
Main level
4.73 m x 3.93 m

Location