13360 Loyalist Parkway, Prince Edward County, Ontario K0K 2T0

Listed for:
$775,000
0 beds
4 baths
Listed 132 days ago
Offices for rent: 13360 Loyalist Parkway, Prince Edward County, Ontario K0K 2T0

View all 41 photos

About

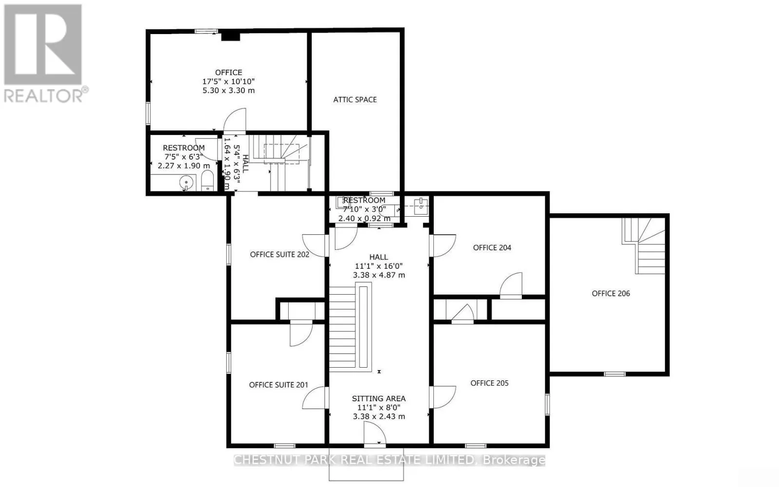
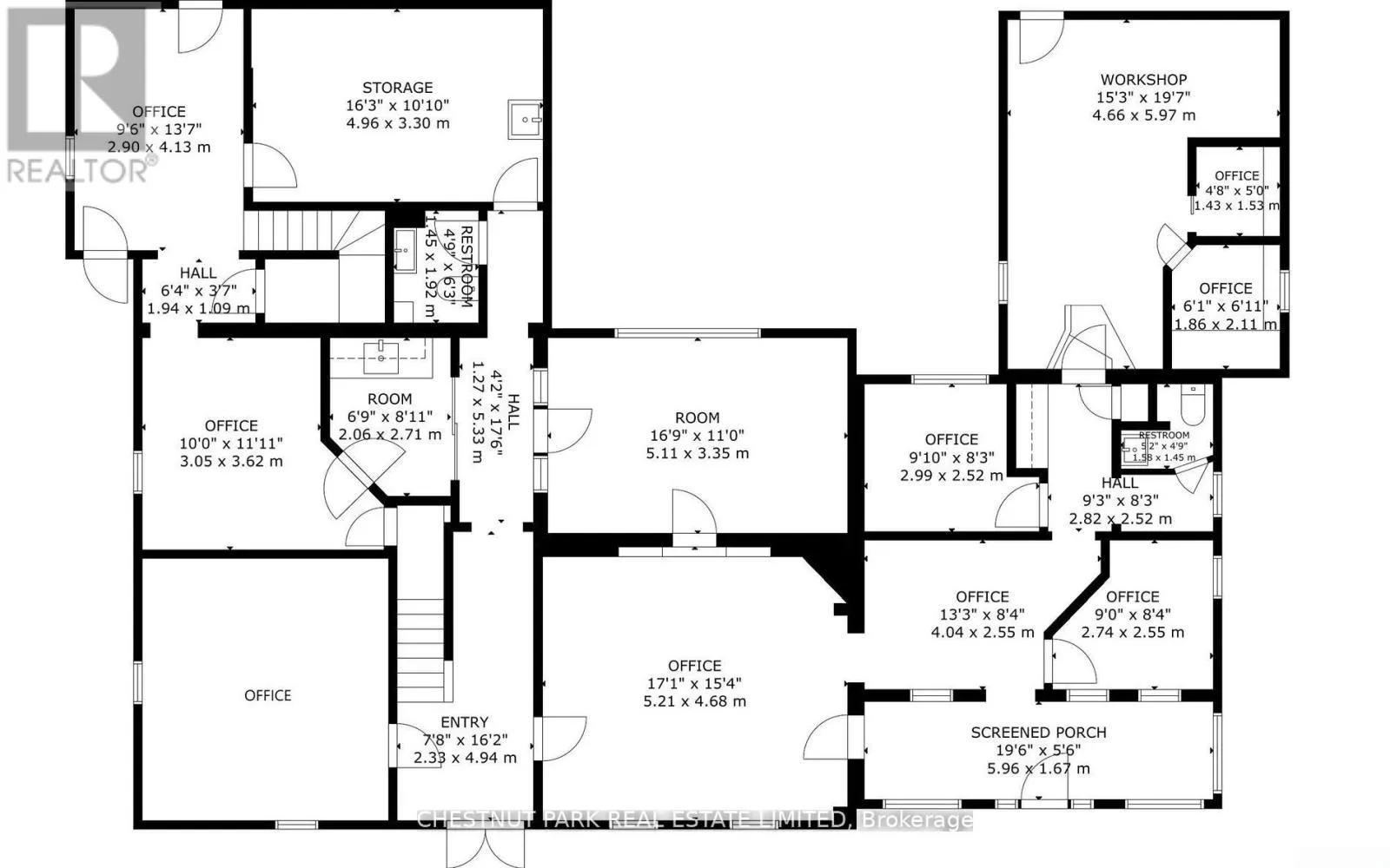
Cross Streets: Loyalist Pky west of Picton. ** Directions: Picton Main St West to Loyalist Pkwy. PRINCE EDWARD COUNTY - PRIME COMMERCIAL - RARE OFFERING ON THE OUTSKIRTS OF PICTON! This unique property combines character, functionality, and incredible potential, making it ideal for those seeking to tap into the future. With its classic architecture and original details, this quintessential property exudes timelessness creating a welcoming and professional atmosphere for any business venture. Its convenient location in an up-and-coming commercial corridor provides easy access, high visibility and outstanding curb appeal. With close to one acre of land, there is ample space for parking or expansion. Whether you're an entrepreneur looking to establish your dream business, an investor seeking income potential, or someone wanting a combination of both, this property has you covered. Current configuration of building includes 17 rooms, 4-2 pc washrooms, 3 sets of stairs, and 5 entrances. With 4000 sq ft of interior space and a layout conducive to customization, the possibilities are endless. This iconic building is currently operating as a thriving business centre with nine tenants, but there is tons of untapped potential here. Don't miss your chance to own a property that offers such flexibility & potential! Book an appointment today to come and explore the possibilities! (id:27476)

Property Highlights

MLS® Number
X12662730
Type
Office
Community Name
Hallowell Ward
Land Size
175 x 206 FT
Parking Space Total
20

Building

Building Type
Offices
Square Footage
4000 sqft
Bathrooms Total
4
Fireplace Present
No
Basement Type
Basement Features
Building Heating Type
Forced air
Heating Fuel
Natural gas
Building Cooling Type
Fully air conditioned

Utilities

Water
Municipal water

Location

Learn more about this property
Listing provided by:
CHESTNUT PARK REAL ESTATE LIMITED
MLS® number:
X12662730
Agent:
Pat Benson Moore
*Indicates required field
Name is required
Email is required
Please enter a valid phone number (e.g., 416-111-1111).