1647 County 10 Road, Prince Edward County, Ontario K0K 1P0

Listed for:
$798,926
3 beds
3 baths
Listed 73 days ago
House for rent: 1647 County 10 Road, Prince Edward County, Ontario K0K 1P0

View all 41 photos

About

Cross Streets: County Road 18/County road 10. ** Directions: FROM PICTON: County Road 10 (Lake Street) to Cherry Valley, 1647 - sign on!. All the Farmhouse "Feels" in Cherry Valley, Prince Edward County! A most exceptional kitchen, designed with the baker, cook, and entertainer in mind. Kitchen features incredible storage (including walk-in pantry of your DREAMS), baker's height island, plentiful counter space and entrances from the patio and second driveway. This incredible dining area also features a propane fireplace for cozy meals, wood floors and beams that add atmosphere galore. SO much living space on this main level - the family tv room features original tin ceilings and pocket doors, as does the office space that doubles as a fourth bedroom with (included) QUEEN Murphy bed. The living room at the centre of the home features a second propane fireplace and plenty of space for entertaining guests. Before you exit to the 3 bedroom/2 bath upper level, you will notice a FULL bath on the main level, with heated floors, tub/shower combo and a welcoming entryway that has hidden laundry. The generous bedrooms (both currently housing QUEEN beds) and window nook are filled with light and this level boasts the charm of original wooden doors, banister woodwork, and a 2-piece powder room for convenience. The primary suite is improved by extra-deep cabinetry storage closets and a most luxurious ensuite with heated floors, walk in tiled shower, heated towel warmer and a view of the nearly acre rear yard. Enjoy cozy winters with efficient heat pump heating, and restful summers on the patio, in the pool, and enjoying this park-like expansive yard. The barn holds potential - currently used as storage a garage space, it could be more! This home features a whole-home STA (Airbnb) license, but is NOT subject to HST. We live where you vacation, you could live here too! (id:27476)

Property Highlights

MLS® Number
X12847556
Type
Single Family
Community Name
Athol Ward
Ownership Type
Freehold
Land Size
170.4 x 218.5 FT ; Irregular Square|1/2 - 1.99 acres
Parking Space Total
6

Building

Building Type
House
Storeys
2.00
Square Footage
2000 - 2500 sqft
Bathrooms Total
3
Bedrooms Above Ground
3
Bedrooms Total
3
Amenities
Fireplace(s) Beach, Hospital
Exterior Finish
Vinyl siding
Fireplace Present
Yes
Basement Type
Partial (Unfinished)
Basement Features
Building Heating Type
Forced air, Heat Pump, Not known
Heating Fuel
Electric, Propane
Building Cooling Type
Central air conditioning

Utilities

Water
Drilled Well
Utility Sewer
Septic System

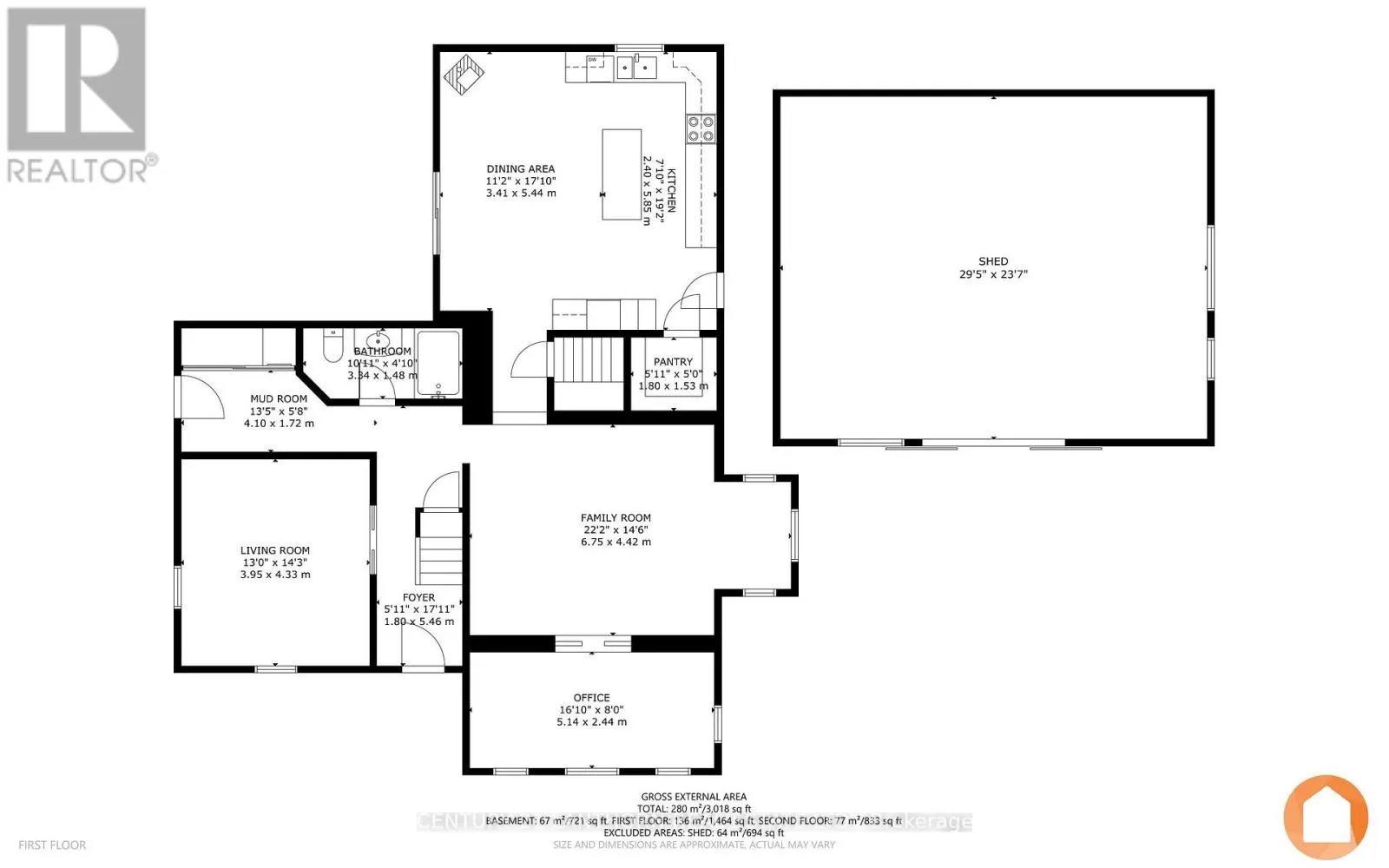
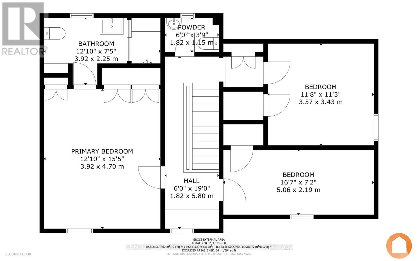
Room Layout

Bathroom
Second level
1.81 m x 1.14 m
Primary Bedroom
Second level
4.7 m x 3.91 m
Bathroom
Second level
3.91 m x 2.24 m
Bedroom
Second level
3.56 m x 3.42 m
Bedroom 2
Second level
5.05 m x 2.19 m
Other
Basement
6.8 m x 5.69 m
Bathroom
Main level
3.34 m x 1.48 m
Family room
Main level
6.75 m x 4041 m
Foyer
Main level
1.8 m x 5.45 m
Office
Main level
5.13 m x 2.44 m
Living room
Main level
3.95 m x 3.99 m
Kitchen
Main level
5.84 m x 1.99 m
Dining room
Main level
5.44 m x 2.99 m
Pantry
Main level
1.8 m x 1.53 m
Mud room
Main level
4.09 m x 1.71 m

Location

Learn more about this property
Listing provided by:
CENTURY 21 LANTHORN REAL ESTATE LTD.
MLS® number:
X12847556
Agent:
Tammy Noyes
*Indicates required field
Name is required
Email is required
Please enter a valid phone number (e.g., 416-111-1111).

Street Spotlight - For sale