686577 Highway 2, Princeton, Ontario N0J 1V0

Listed for:
$1,399,600
3 beds
2 baths
Listed 49 days ago
House for rent: 686577 Highway 2, Princeton, Ontario N0J 1V0

View all 49 photos

About

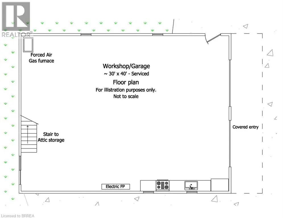
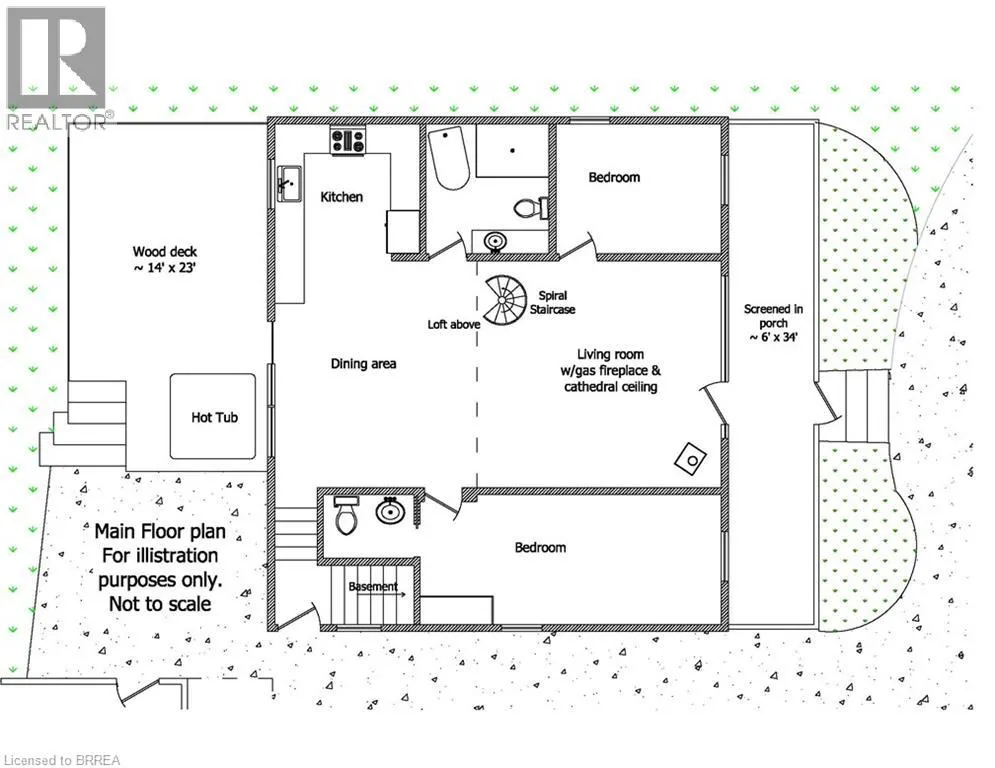
North side of Highway 2 west of Gobles Rd Exceptional multi-generational country property offering a rare combination of space and privacy on a 1.37 acre lot. The estate includes an updated detached 2-bedroom + loft home, a self-contained 1-bedroom accessory dwelling (ADU), and an impressive ~30’ x 40’ workshop/garage. The primary residence is a thoughtfully designed bungaloft blending open-concept living with everyday functionality. The primary bedroom w/ensuite, and second bedroom are conveniently located on the main level, while the loft provides a third bedroom or a flexible living space for growing family needs. Natural light and a practical layout create a warm, welcoming atmosphere throughout. Quality updates include custom built-in cabinetry, modern kitchen with quartz countertops and S.S. appliances, 4 piece bathroom with stand alone tub and separate shower, gas fireplace, updated windows and doors and newer steel roof. The dining area has a patio door leading to a spacious wood deck with a hot tub - perfect for entertaining and unwinding. Enhancing the property’s versatility is a fully detached 1-bedroom accessory bungalow (ADU). Ideal for multi-generational living, guest accommodations, or rental income, this secondary dwelling offers privacy and independence with kitchenette, 3-piece bath, in-floor heating and wood stove. The detached workshop/garage is perfect for hobbyists, tradespeople, or car enthusiasts. Features include a gas furnace, kitchenette with gas stove, refrigerator and range hood, electric fireplace, walk-up attic storage and a patio door accessing the yard. Established perennial gardens, vegetable garden, mature trees all anchored by a private swim pond enjoyed year-round for swimming and skating, complete with dock, sand beach and cabana. This property delivers rural living without compromise. Take the multimedia 360 tour and arrange a time to come take a look! More details available upon request. (id:27476)

Property Highlights

MLS® Number
40799141
Type
Single Family
Ownership Type
Freehold
Land Size
1.374 ac|1/2 - 1.99 acres
Parking Space Total
12

Building

Building Type
House
Storeys
1.00
Square Footage
1445 sqft
Bathrooms Total
2
Bedrooms Above Ground
3
Bedrooms Total
3
Exterior Finish
Vinyl siding, Wood, Steel
Fireplace Present
Yes
Basement Type
Partial (Unfinished)
Basement Features
Building Heating Type
Forced air
Heating Fuel
Natural gas
Building Cooling Type
Central air conditioning

Utilities

Water
Drilled Well
Utility Sewer
Septic System

Room Layout

Bedroom
Second level
13'9'' x 10'4''
Wine Cellar
Basement
8'6'' x 5'0''
Storage
Basement
25'0'' x 5'0''
Utility room
Basement
34'8'' x 10'6''
Full bathroom
Main level
Measurements not available
Porch
Main level
34'4'' x 6'0''
4pc Bathroom
Main level
Measurements not available
Bedroom
Main level
11'8'' x 9'2''
Primary Bedroom
Main level
21'3'' x 9'2''
Living room
Main level
17'3'' x 16'0''
Kitchen
Main level
9'3'' x 8'3''
Dining room
Main level
14'3'' x 16'0''

Location

Learn more about this property
Listing provided by:
EXP Realty
MLS® number:
40799141
Agent:
Alex Faux
*Indicates required field
Name is required
Email is required
Please enter a valid phone number (e.g., 416-111-1111).