41 Cedarbush Crescent, Puslinch, Ontario N0B 2J0

Listed for:
$457,000
2 beds
1 baths
Listed 34 days ago
House for rent: 41 Cedarbush Crescent, Puslinch, Ontario N0B 2J0

View all 37 photos

About

Cross Streets: Wellington County Rd 34 and Bull Frog Dr. ** Directions: Wellington County Rd 34. Welcome to Mini Lakes! This lovely 2-bedroom bungalow is perfect for first-time buyers or those ready to downsize. Enjoy a bright open-concept living space with a spacious kitchen, stainless steel appliances (between 2019 - 2023), and a cozy living room with large windows and luxury vinyl flooring (2022), & main floor laundry (2015) for added convenience. Step onto your private deck for summer BBQs or relax by the scenic water's edge, where nature thrives. As a resident, you'll have access to a heated inground pool, bocce ball area, and community events that foster friendship and fun. With updates like a new furnace and A/C (2022) and a roof replacement (2018), you can move in worry-free. Mini Lakes isnt just a home; its a lifestyle! Come see the charm for yourself! (id:27476)

Property Highlights

MLS® Number
X12686662
Type
Single Family
Community Name
Rural Puslinch East
Ownership Type
Freehold
Land Size
3552.1 x 252.6 FT
Parking Space Total
2

Building

Building Type
House
Storeys
1.00
Square Footage
700 - 1100 sqft
Bathrooms Total
1
Bedrooms Above Ground
2
Bedrooms Total
2
Amenities
Park
Exterior Finish
Vinyl siding
Fireplace Present
No
Basement Type
None
Basement Features
Building Heating Type
Forced air
Heating Fuel
Propane
Building Cooling Type
Central air conditioning

Utilities

Utility Sewer
Septic System

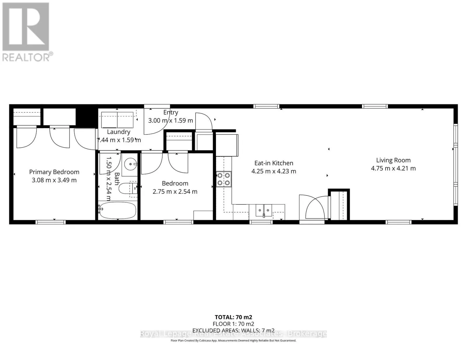
Room Layout

Primary Bedroom
Main level
4.57 m x 3.29 m
Bedroom 2
Main level
2.84 m x 3.45 m
Living room
Main level
4.87 m x 4.57 m
Kitchen
Main level
4.45 m x 4.57 m

Location

Learn more about this property
Listing provided by:
Royal Lepage Real Estate Associates
MLS® number:
X12686662
Agent:
Tristan Zachary Kong
*Indicates required field
Name is required
Email is required
Please enter a valid phone number (e.g., 416-111-1111).

Community Spotlight: Homes For sale in Your Neighborhood