18 Edward Street, Quinte West, Ontario K8V 2C2

Listed for:
$239,900
0 beds
0 baths
Listed 118 days ago
18 Edward Street, Quinte West, Ontario K8V 2C2

View all 9 photos

Learn more about this property
Listing provided by:
CENTURY 21 LANTHORN REAL ESTATE LTD.
MLS® number:
X12244386
Agent:
Travis Royle
*Indicates required field
Name is required
Email is required
Please enter a valid phone number (e.g., 416-111-1111).

About

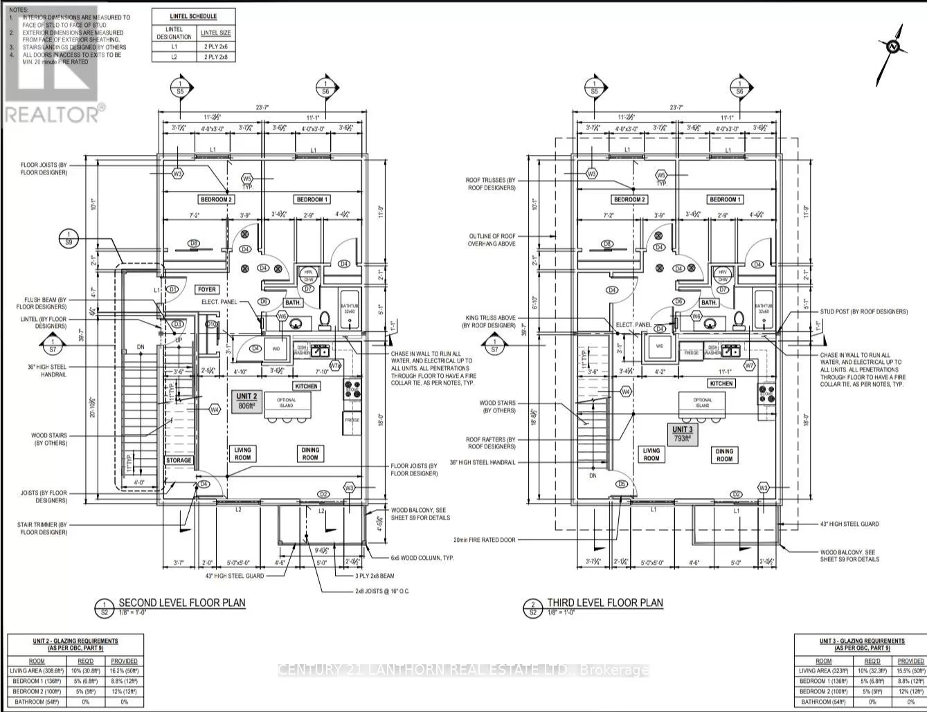
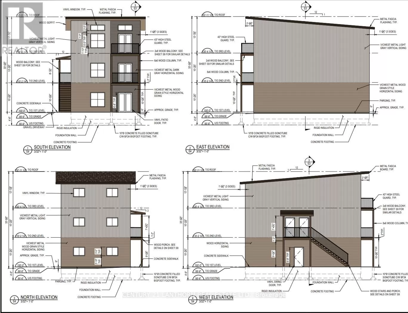
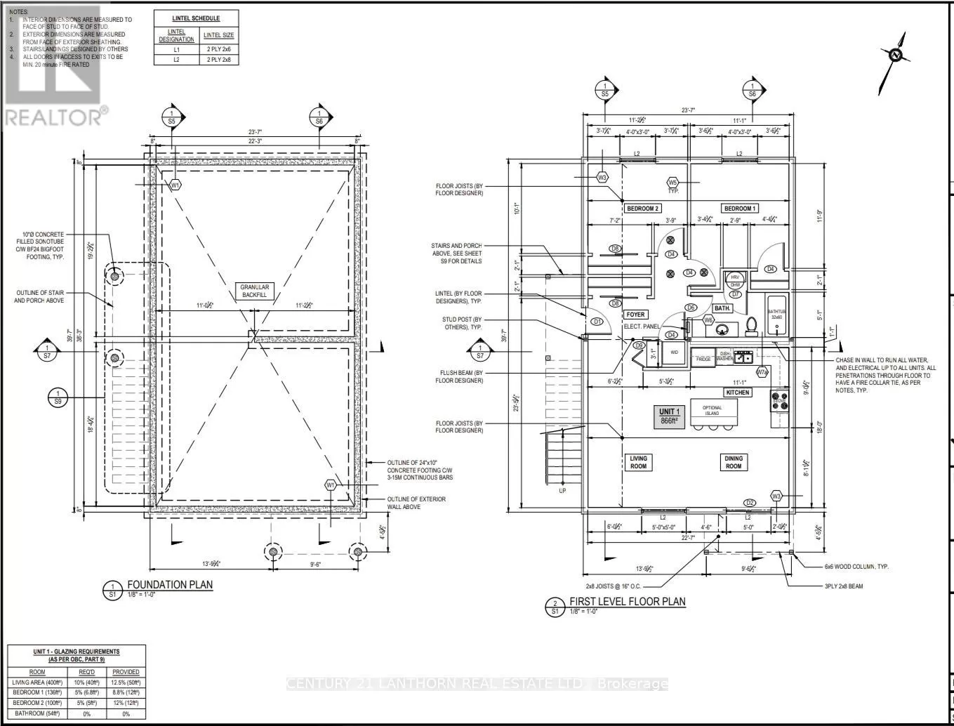
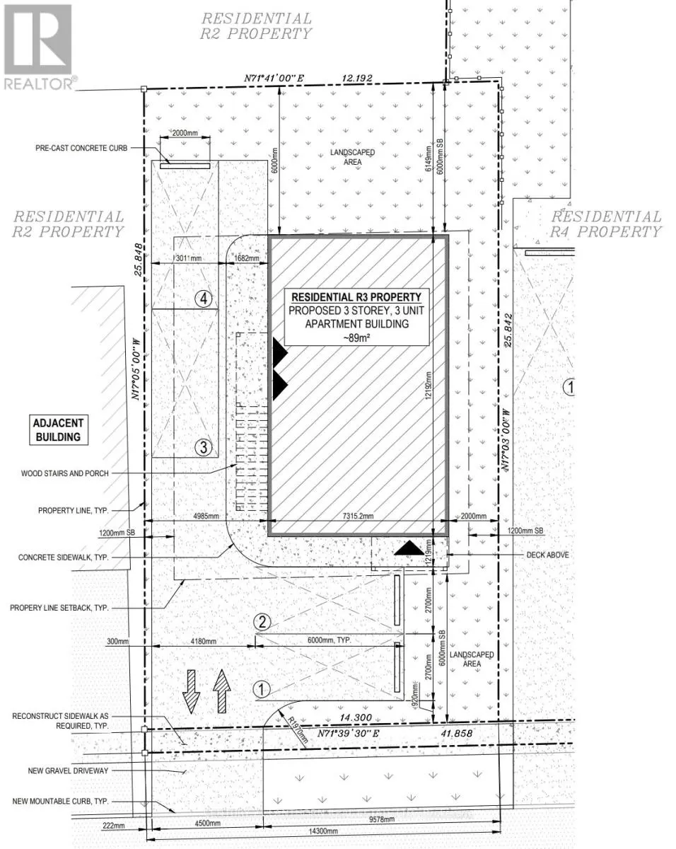
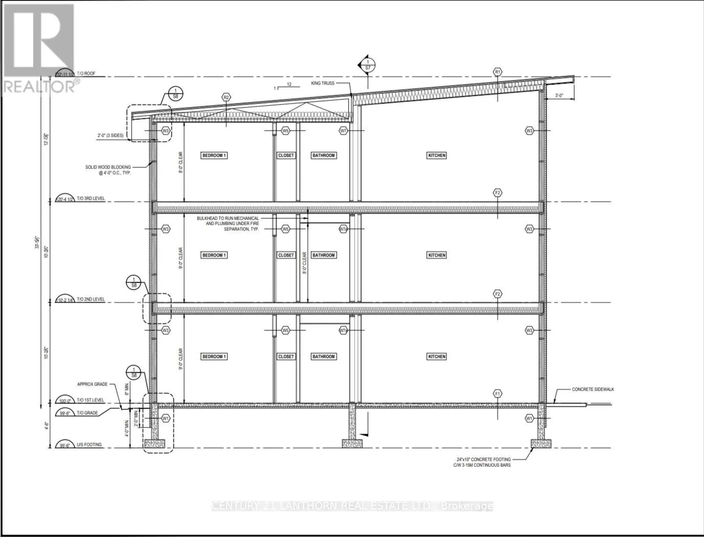
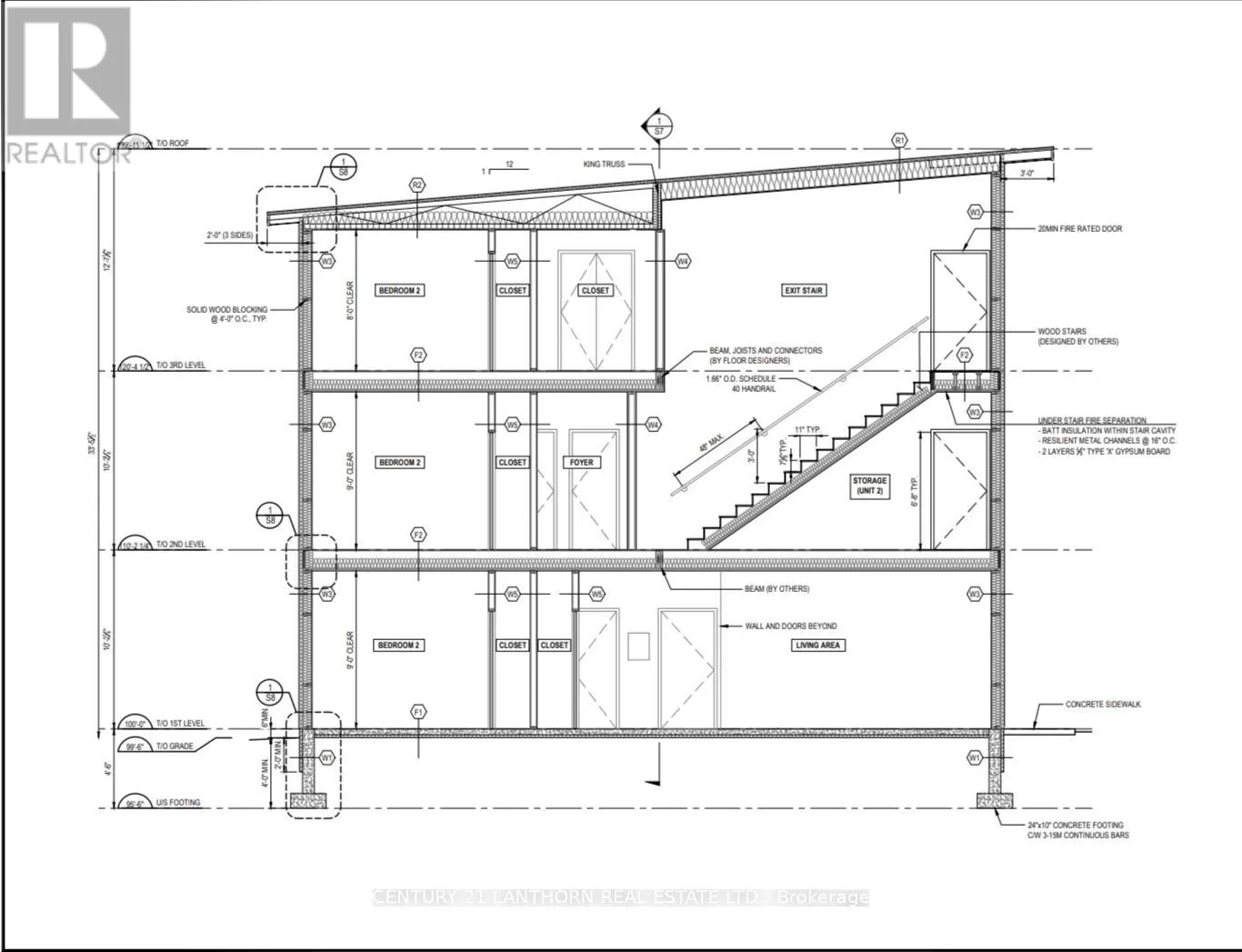
Cross Streets: west st and Edward st. ** Directions: Sidney st to edward street. DEVELOPERS & INVESTORS An exceptional opportunity awaits with this shovel-ready building lot, fully prepped for immediate development. The approved plans allow for the construction of a modern triplex, with each unit thoughtfully designed to feature open-concept living areas, two spacious bedrooms, and soaring 9-foot ceilings through out appealing to todays renters and end-users alike. All preliminary work has been completed, including a full energy audit and finalized HVAC design, ensuring a smooth and efficient build process. An after-completion appraisal has already been conducted, valuing the finished triplex at $1,290,000, offering significant upside and long-term value. Whether you're a seasoned developer or a strategic investor, this is a rare turnkey opportunity to build equity from the ground up. **Full development package available, enquire about seller building to suit** Taxes not yet assessed.*** (id:27476)

Property Highlights

MLS® Number
X12244386
Type
Vacant Land
Community Name
Trenton Ward
Land Size
45.23 x 79.84 FT

Building

Fireplace Present
No
Basement Type
Basement Features
Building Heating Type
Heating Fuel
Building Cooling Type

Location

Community Spotlight: Homes For sale in Your Neighborhood