32 Deerview Drive, Quinte West, Ontario K8V 5P4

Listed for:
$896,500
2 beds
2 baths
Listed 7 days ago
House for rent: 32 Deerview Drive, Quinte West, Ontario K8V 5P4

View all 3 photos

About

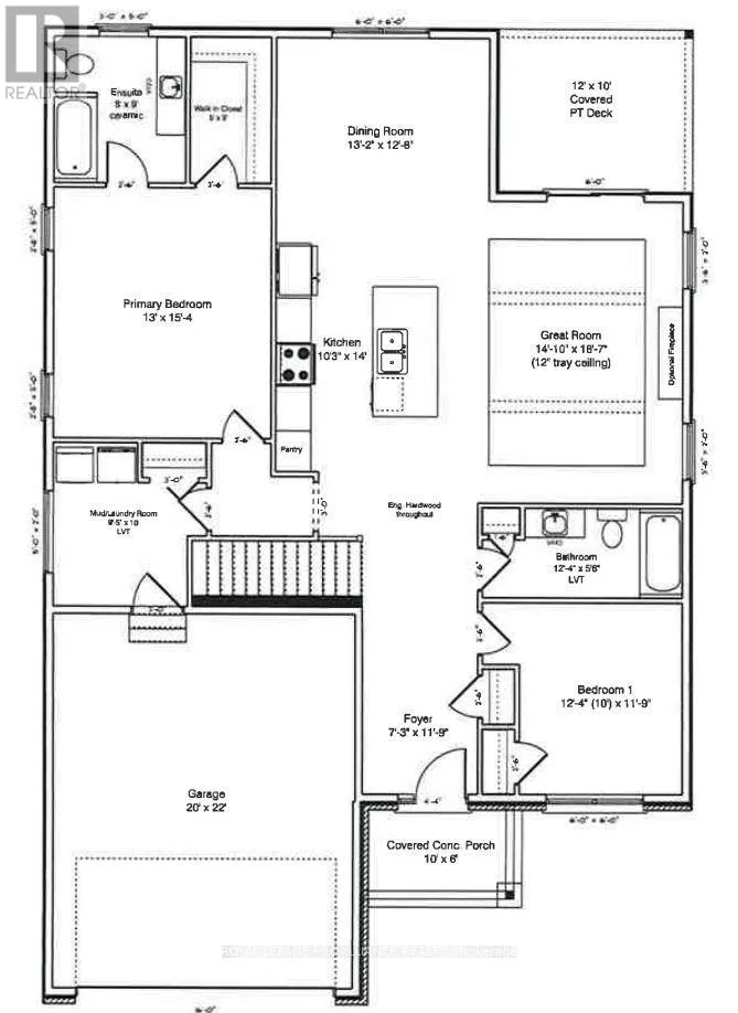
Telephone Rd to Deerview Dr Discover the perfect combination of comfort and style with this custom home by Van Huizen Homes, located in the desirable Woodland Heights community. The spacious primary bedroom includes a 4 piece ensuite and a large walk-in closet. A second bedroom and bathroom on the main level adds added convenience. The open-concept living area is ideal for both relaxing and entertaining, featuring a living room with a tray ceiling and charming beam details that bring warmth and character to the space. The kitchen is equipped with a generous size island with quartz countertops, ensuring plenty of storage and prep space for all your essentials. The mud and laundry room is thoughtfully located with direct access to the attached two-car garage, making day-to-day living a breeze. Enjoy outdoor living with a covered rear deck measuring 10' x 12', perfect for dining or simply unwinding. For those looking to expand their living space, the basement can be finished at an additional cost, adding two more bedrooms, a third bathroom, and a recreation room - creating a perfect retreat for family or guests. Visit the model home at 37 Deerview Drive to explore how Van Huizen Homes can help bring your dream home to life! This new construction home does qualify for the new HST Rebate, with an after rebate value of $814,601.77!! (id:27476)

Property Highlights

MLS® Number
X12977564
Type
Single Family
Community Name
Murray Ward
Ownership Type
Freehold
Land Size
52 x 131.6 FT
Parking Space Total
6

Building

Building Type
House
Storeys
1.00
Square Footage
1500 - 2000 sqft
Bathrooms Total
2
Bedrooms Above Ground
2
Bedrooms Total
2
Amenities
Golf Nearby, Hospital, Ski area, Schools, Beach, Marina
Exterior Finish
Vinyl siding, Stone
Fireplace Present
No
Basement Type
N/A (Unfinished)
Basement Features
Building Heating Type
Forced air
Heating Fuel
Natural gas
Building Cooling Type
Central air conditioning

Utilities

Water
Municipal water
Utility Sewer
Sanitary sewer

Room Layout

Foyer
Main level
2.23 m x 3.63 m
Living room
Main level
4.3 m x 5.7 m
Dining room
Main level
4.02 m x 3.9 m
Kitchen
Main level
3.14 m x 4.27 m
Mud room
Main level
2.71 m x 3.05 m
Primary Bedroom
Main level
3.96 m x 4.69 m
Bathroom
Main level
2.44 m x 2.74 m
Bedroom 2
Main level
3.78 m x 3.63 m
Bathroom
Main level
3.78 m x 1.71 m

Location

Learn more about this property
Listing provided by:
ROYAL LEPAGE PROALLIANCE REALTY
MLS® number:
X12977564
Agent:
Tara Lyons
*Indicates required field
Name is required
Email is required
Please enter a valid phone number (e.g., 416-111-1111).

Street Spotlight - For sale