80 Millman Lane, Richmond Hill, Ontario L4E 3R9

Listed for:
$3,300
4 beds
4 baths
Listed 29 days ago
Row / Townhouse for rent: 80 Millman Lane, Richmond Hill, Ontario L4E 3R9

View all 26 photos

About

Lesile St AND 19th Ave 4 Bed, 3.5 Bath Townhouse in the New Ivylea Community by Marlin Spring. Double Garage. 10' Ceilings on Main, 9' on Upper. Open-Concept Kitchen with Modern Appliances. Prime Leslie St & 19th Ave Location. Minutes to Hwy 404, GO Train, Schools, Parks, Costco & Plazas (id:27476)

Property Highlights

MLS® Number
N12707498
Type
Single Family
Community Name
Rural Richmond Hill
Ownership Type
Freehold
Parking Space Total
3

Building

Building Type
Row / Townhouse
Storeys
3.00
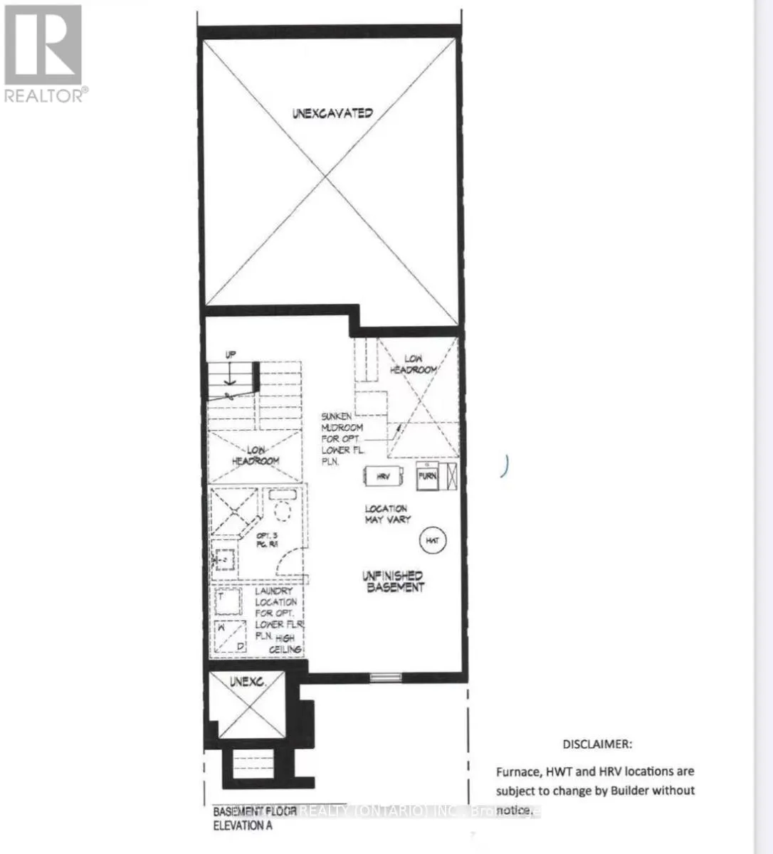
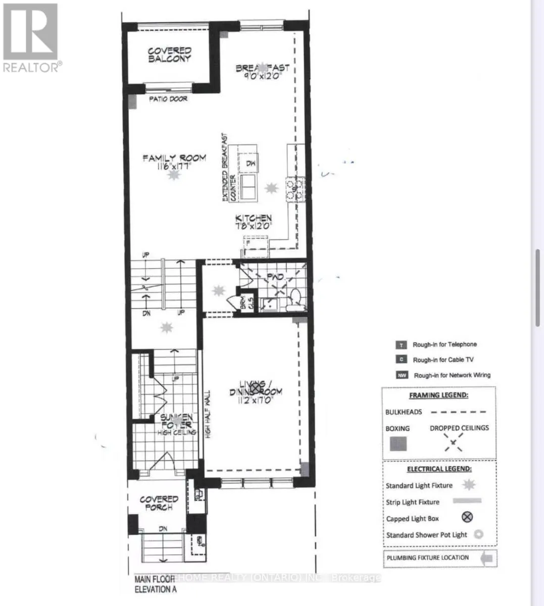
Square Footage
2000 - 2500 sqft
Bathrooms Total
4
Bedrooms Above Ground
4
Bedrooms Total
4
Exterior Finish
Brick
Fireplace Present
No
Basement Type
Full
Basement Features
Building Heating Type
Forced air
Heating Fuel
Natural gas
Building Cooling Type
Central air conditioning

Utilities

Water
Municipal water
Utility Sewer
Sanitary sewer

Location

Learn more about this property
Listing provided by:
MEHOME REALTY (ONTARIO) INC.
MLS® number:
N12707498
Agent:
Irene Zhang
*Indicates required field
Name is required
Email is required
Please enter a valid phone number (e.g., 416-111-1111).

Street Spotlight - For rent