515b - 9600 Yonge Street, Richmond Hill, Ontario L4C 0X3

Listed for:
$2,700
2 beds
1 baths
Listed 21 days ago
Apartment for rent: 515b - 9600 Yonge Street, Richmond Hill, Ontario L4C 0X3

View all 29 photos

About

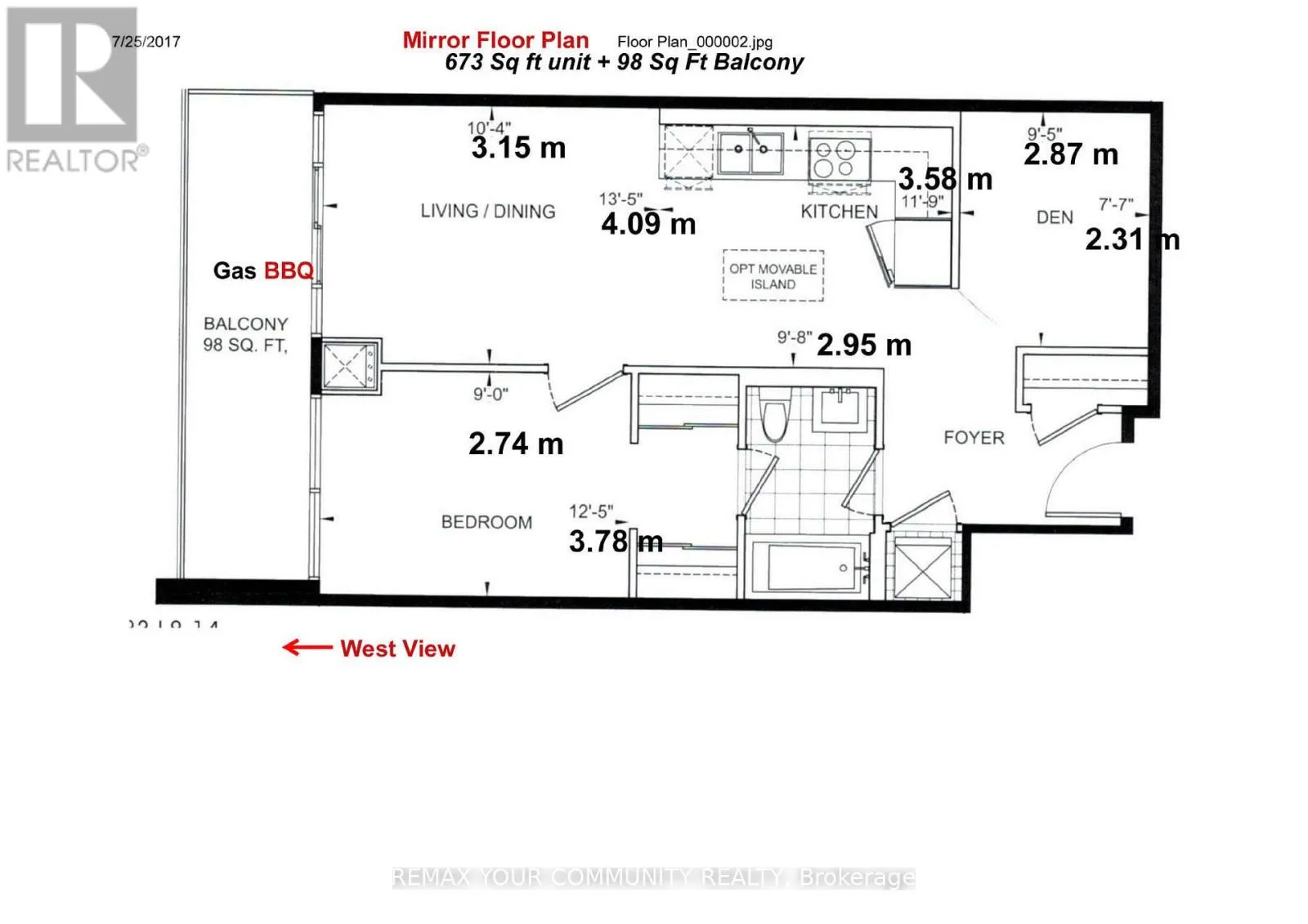
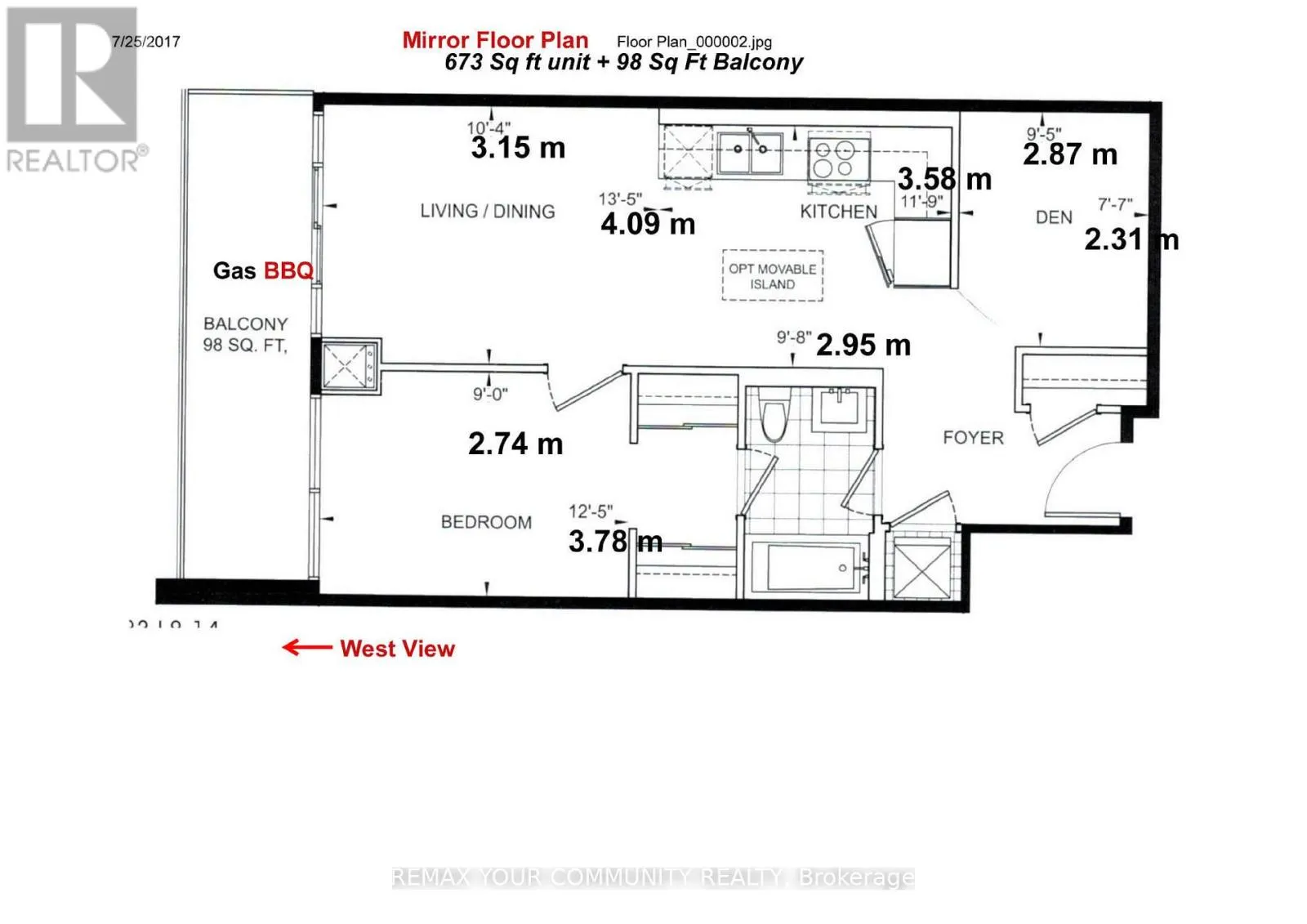
Cross Streets: Yonge & 16th. ** Directions: north of Weldrick Rd, west of Yonge. *** Fully FURNISHED ***1+Den (Den functions as 2nd BR) | Recently Painted | Modern Kitchen | Granite Counters | S/S Appliances | 9' Ceilings | Floor-to-Ceiling Windows. The Luxury: Grand Palace Condos | Private Balcony + Gas BBQ Hookup | Practical, Sun-filled Layout. The Location: Steps to Yonge/Hwy 7 | St. Theresa of Lisieux CHS District | Walk to Hillcrest Mall, Library, & Transit. Note: No Pets/No Smoking (Health Reasons). (id:27476)

Property Highlights

MLS® Number
N12869476
Type
Single Family
Community Name
North Richvale
Ownership Type
Condominium/Strata
Parking Space Total
1

Building

Building Type
Apartment
Square Footage
600 - 699 sqft
Bathrooms Total
1
Bedrooms Above Ground
1
Bedrooms Total
2
Amenities
Security/Concierge, Exercise Centre, Sauna, Storage - Locker Public Transit
Exterior Finish
Concrete
Fireplace Present
No
Basement Type
None
Basement Features
Building Heating Type
Forced air
Heating Fuel
Natural gas
Building Cooling Type
Central air conditioning

Location

Learn more about this property
Listing provided by:
REMAX YOUR COMMUNITY REALTY
MLS® number:
N12869476
Agent:
Sam Babayandarjazi
*Indicates required field
Name is required
Email is required
Please enter a valid phone number (e.g., 416-111-1111).

Street Spotlight - For rent