402 Mp4 Road, Rideau Lakes, Ontario K0G 1V0

Listed for:
$449,000
3 beds
1 baths
Listed 36 days ago
House for rent: 402 Mp4 Road, Rideau Lakes, Ontario K0G 1V0

View all 50 photos

Learn more about this property
Listing provided by:
RE/MAX AFFILIATES REALTY LTD.
MLS® number:
X12457677
Agent:
Joel Marshall
*Indicates required field
Name is required
Email is required
Please enter a valid phone number (e.g., 416-111-1111).

About

Cross Streets: West of Briton Houghton Bay at Old Kingston Road. ** Directions: Hwy 15 to Briton Houghton Bay, to MP4 Road. Nestled in the heart of Rideau Lakes, this charming cottage retreat sits on just over 7 acres of beautifully manicured land surrounded by towering maples and pines. Steps from pristine boat launches, conservation areas, and endless nature, the property offers the best of outdoor living. Trails have been thoughtfully cleared, lawns are well maintained, and an established apple orchard adds to the country charm. The property would be ideal for a future sugarbush or hobby farm. The cottage exudes Canadiana warmth with its metal roof, cozy loft bedrooms, functional kitchen, and an expansive screened-in sunroom thats perfect for watching deer at dusk or gathering with friends and family. With immense frontage and development potential, this turnkey property (sold furnished) would make an excellent rental or private retreat. Easy access off Briton Houghton Bay Road make getting here a breeze. Set up for three seasons (electric baseboard heating throughout) and only a few tweaks away from being a true four-season getaway, this property is beautiful, versatile and enchanting. Schedule a showing today and enjoy the colours of autumn amidst Big Rideau. (id:27476)

Property Highlights

MLS® Number
X12457677
Type
Single Family
Community Name
819 - Rideau Lakes (South Burgess) Twp
Ownership Type
Freehold
Land Size
1000.4 x 501.4 Acre|5 - 9.99 acres
Parking Space Total
10

Building

Building Type
House
Storeys
1.50
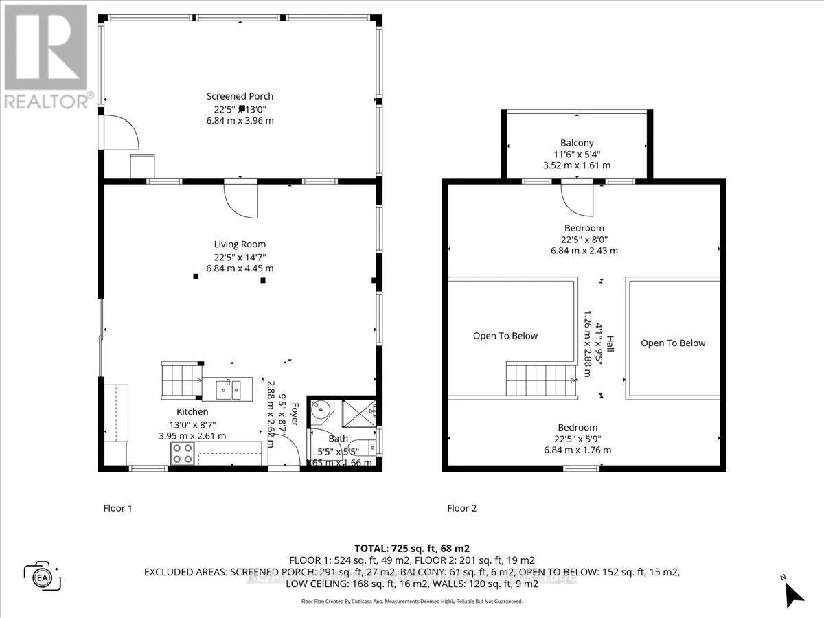
Square Footage
700 - 1100 sqft
Bathrooms Total
1
Bedrooms Above Ground
3
Bedrooms Total
3
Exterior Finish
Wood
Fireplace Present
No
Basement Type
None
Basement Features
Building Heating Type
Baseboard heaters
Heating Fuel
Electric
Building Cooling Type
None

Utilities

Water
Drilled Well
Utility Sewer
Septic System

Location