8 Davis Lane, Rideau Lakes, Ontario K7A 4S5

Listed for:
$777,000
5 beds
4 baths
Listed 22 days ago
House for rent: 8 Davis Lane, Rideau Lakes, Ontario K7A 4S5

View all 46 photos

About

Cross Streets: Golf Club Road & Davis Lane. ** Directions: From Highway 29 turn onto Golf Club Road. Take the second Left onto Davis Lane. End at #8. Large lifestyle home for busy families or multi-generational living! This is the kind of home growing families dream about. This 5 bed, 3.5 bath home is big & sits in a desirable family-friendly subdivision. It's designed for everyday family life. A large open kitchen with island seating, double oven, & two refrigerators easily keeps up with busy mornings, big grocery hauls, & holiday gatherings. The kitchen overlooks the sunken family room, creating a warm central space where everyone naturally gathers. Off the kitchen, the front living room makes for a perfect kids' playroom, while the rear room functions beautifully as a home office or formal dining room depending on your family's needs. Two entrances make daily life simple & organized. The front foyer greets guests, while the family mudroom with heated floors is perfect for backpacks, hockey gear, & muddy boots. The fully finished lower level adds flexibility with two more bedrooms, a full bathroom, & a laundry room designed for real life. Featuring dual washers & dryers, a large folding counter, hanging racks, & double storage closet, this space makes keeping up with a busy household easier than ever. Outside is where this home truly shines. The backyard is designed for making memories, featuring a pool with wrap-around deck for summer fun and a screened gazebo with bar, natural gas BBQ, and hot tub for effortless entertaining. Just off the pool deck, a stone patio with dual pergolas & LED lighting offers an ideal spot away from the sun. The large stone firepit is ready for family bonfires. Mature gardens and a large maple tree provide shade creating a yard built equally for play & relaxation. Recent updates include shingles, eaves, furnace, central air, Generac generator, well pump, appliances, permanent holiday lighting, basement flooring, and a new hot tub. If you've been searching for a home with space to grow, room for extended family & a backyard designed for real family living, this one delivers. (id:27476)

Property Highlights

MLS® Number
X12876020
Type
Single Family
Community Name
820 - Rideau Lakes (South Elmsley) Twp
Ownership Type
Freehold
Land Size
151.9 x 300.1 FT
Parking Space Total
8

Building

Building Type
House
Storeys
1.00
Square Footage
2000 - 2500 sqft
Bathrooms Total
4
Bedrooms Above Ground
3
Bedrooms Total
5
Amenities
Fireplace(s)
Exterior Finish
Brick, Vinyl siding
Fireplace Present
Yes
Basement Type
Full (Finished)
Basement Features
Building Heating Type
Forced air
Heating Fuel
Natural gas
Building Cooling Type
Central air conditioning

Utilities

Water
Drilled Well
Power
Generator
Utility Sewer
Septic System

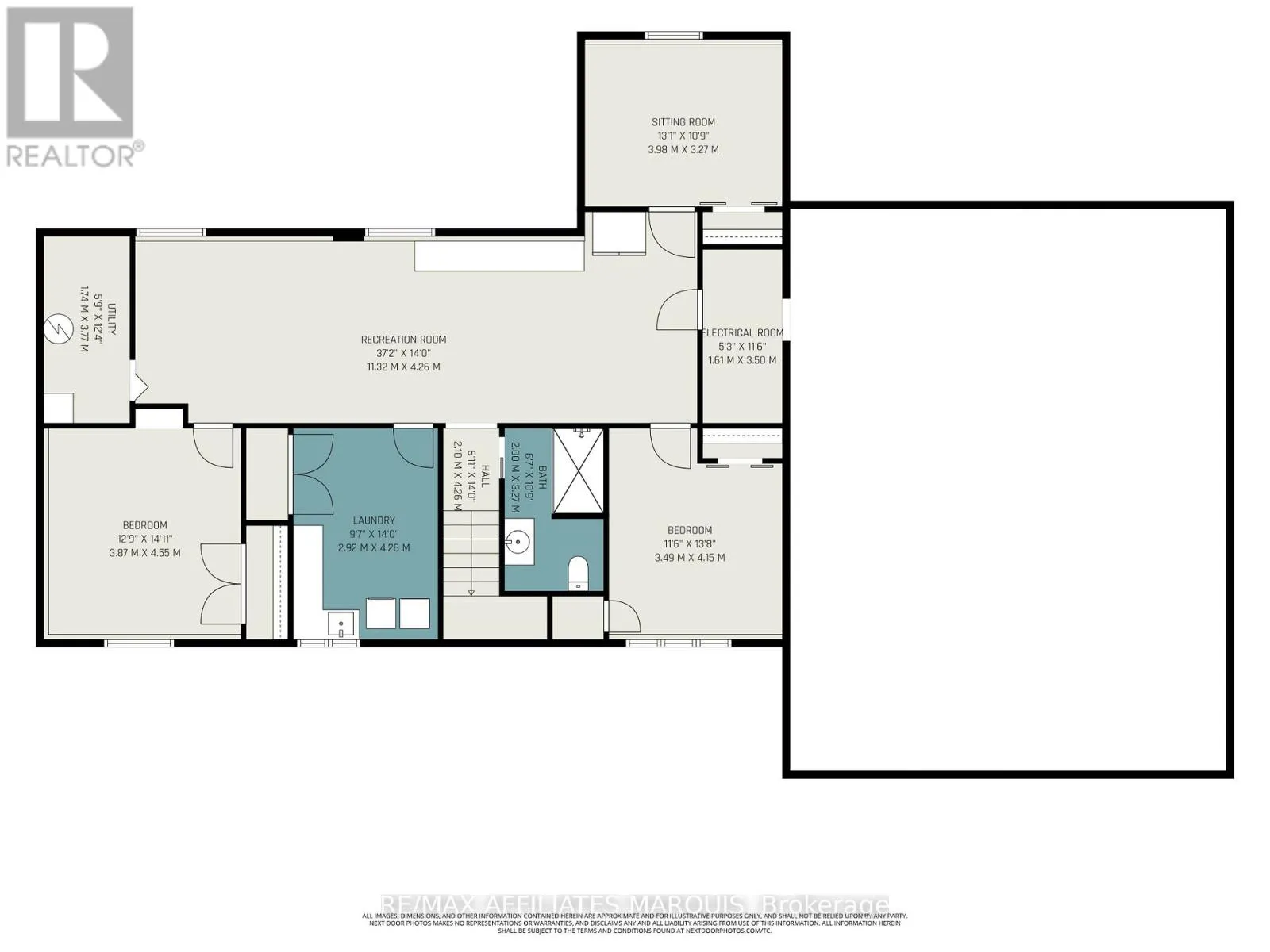
Room Layout

Bedroom 4
Lower level
4.55 m x 3.87 m
Bedroom 5
Lower level
4.15 m x 3.49 m
Laundry room
Lower level
4.26 m x 2.92 m
Sitting room
Lower level
3.98 m x 3.27 m
Recreational, Games room
Lower level
11.32 m x 4.26 m
Bathroom
Lower level
3.27 m x 2 m
Utility room
Lower level
3.77 m x 1.74 m
Utility room
Lower level
3.5 m x 1.61 m
Bedroom 3
Main level
3.87 m x 3.31 m
Kitchen
Main level
7.29 m x 4.32 m
Office
Main level
4.16 m x 3.66 m
Living room
Main level
5.5 m x 4.25 m
Bathroom
Main level
2.47 m x 1.78 m
Bathroom
Main level
2.47 m x 2.44 m
Primary Bedroom
Main level
4.91 m x 4.32 m
Bedroom 2
Main level
3.97 m x 3.31 m
Family room
In between
8.78 m x 4.55 m
Foyer
In between
3.52 m x 2.36 m
Mud room
In between
6.89 m x 2.21 m

Location

Learn more about this property
Listing provided by:
RE/MAX AFFILIATES MARQUIS
MLS® number:
X12876020
Agent:
Amanda Myers
*Indicates required field
Name is required
Email is required
Please enter a valid phone number (e.g., 416-111-1111).