1758 Highway 15, Rideau Lakes, Ontario K0G 1E0

Listed for:
$859,000
3 beds
1 baths
Listed 60 days ago
House for rent: 1758 Highway 15, Rideau Lakes, Ontario K0G 1E0

View all 40 photos

About

Cross Streets: Highway 15. ** Directions: North on Hwy 15, just before Elgin on the left. A Rare Find. Look no further! This 3000 +/- Handcrafted log and timber-frame home is situated on 5+/- acres just south of Elgin. Craftsmanship at its finest. Enter into the large open concept 20 x 30 great room with cathedral ceilings, exposed timbers, loft and plenty of windows for natural light. Upstairs the bedrooms are spacious, (see floor plans) with the Primary bedroom having a 3 piece ensuite, cathedral ceiling's and a 6' x 12' covered deck. There is a main floor office area or potential bedroom. Outside you will love sitting on the 10 x 52 covered porch enjoying your surroundings. Radiant in floor heat (main floor/upper bath) and a woodstove, well you can sense the coziness. A 26 x 32 workshop and 30 x 50 coverall (new 2023) allow for plenty of storage and hobby activities. This property has huge potential. Great exposure for that home based business you have always dreamed of. Move into the house and walk to work across the driveway. Zoned Residential/Commercial so a lot of business opportunities Close to all village amenities and area lakes where boating and fishing are favorite pastimes. Call to arrange your private viewing and discuss this great opportunity. Mid way between Toronto and Montreal. (id:27476)

Property Highlights

MLS® Number
X12896872
Type
Single Family
Community Name
817 - Rideau Lakes (South Crosby) Twp
Ownership Type
Freehold
Land Size
242 x 433.7 FT|5 - 9.99 acres
Parking Space Total
8

Building

Building Type
House
Storeys
1.50
Square Footage
2500 - 3000 sqft
Bathrooms Total
1
Bedrooms Above Ground
3
Bedrooms Total
3
Amenities
Golf Nearby
Exterior Finish
Log
Fireplace Present
No
Basement Type
None
Basement Features
Building Heating Type
Heating Fuel
Building Cooling Type
None

Utilities

Utility Sewer
Septic System

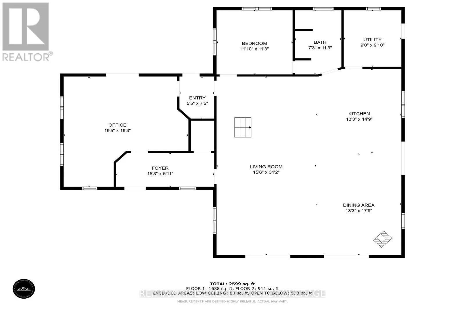
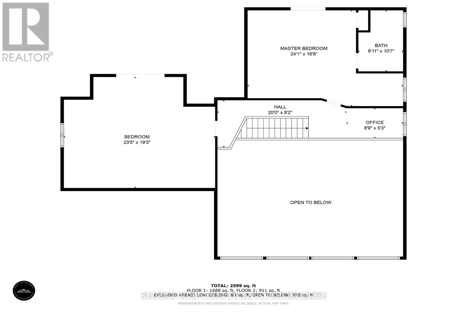
Room Layout

Primary Bedroom
Second level
7.34 m x 5.08 m
Other
Second level
2.11 m x 3.23 m
Bedroom
Second level
7.14 m x 5.87 m
Kitchen
Main level
4.04 m x 4.5 m
Dining room
Main level
4.04 m x 5.41 m
Living room
Main level
4.72 m x 9.5 m
Office
Main level
5.92 m x 5.87 m
Foyer
Main level
4.65 m x 1.8 m
Mud room
Main level
1.65 m x 2.26 m
Bedroom
Main level
3.61 m x 3.43 m
Bathroom
Main level
2.21 m x 3.43 m
Utility room
Main level
2.74 m x 3 m

Location

Learn more about this property
Listing provided by:
RE/MAX RISE EXECUTIVES, BROKERAGE
MLS® number:
X12896872
Agent:
Jeff Hart
*Indicates required field
Name is required
Email is required
Please enter a valid phone number (e.g., 416-111-1111).

Street Spotlight - For sale