71 Horace Drive, Rideau Lakes, Ontario K0G 1V0

Listed for:
$800,000
4 beds
3 baths
Listed 1 day ago
House for rent: 71 Horace Drive, Rideau Lakes, Ontario K0G 1V0

View all 49 photos

About

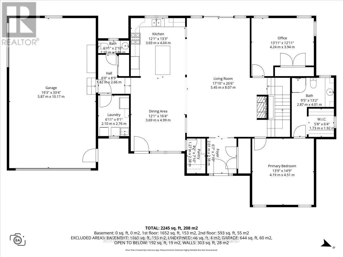
Cross Streets: Rideau Lakes. ** Directions: From Smiths Falls follow Hwy 15 south to Big Rideau Lake Rd. Turn right on Big Rideau Lake Rd. and follow to stop sign. At stop sign turn right onto Sheldon Rd. and follow to Horace Dr. on left. Sheldons Landing Estates on the Big Rideau. Positioned on a private 2.187 acre lot w/water views, this 4 bedroom bungalow loft is defined by its scale, proportion, & connection to the surrounding landscape, w/access to a private sandy beach, dedicated dock space, & boat launch. A covered front veranda w/lake view introduces a composed façade & leads to a tiled foyer w/French pocket doors. The main level is organized under 9 foot ceilings w/hardwood flooring & a balanced, open-concept plan. The centre island kitchen is appointed w/granite surfaces, tile backsplash, recessed sink beneath an overhead window, gas range, & extensive cabinetry, flowing directly into the dining area w/walk-in pantry & exterior access.Principal living spaces are anchored by a gas fireplace w/custom hearth, while the adjoining family room is distinguished by vaulted ceilings & a full wall of west-facing glazing, creating strong visual continuity w/the exterior & access to the rear deck w/pergola. The main floor primary suite is defined by cathedral ceilings, walk-in closet, & a private ensuite. A secondary bedroom or den, powder room, laundry, & direct access to the finished three car garage complete the main level. An open stair rises to a loft-style landing overlooking the lower level, leading to two additional bedrooms & a full bath. The lower level remains unspoiled, offering flexible future development. Site features include a paved driveway, interlock walkway, year-round road access, & high-speed internet. Located minutes to Portland amenities and the Rideau Lakes system. Annual water front lot fee of $250 includes beach access, insurance, & maintenance. 24 hour irrevocable on all offers. (id:27476)

Property Highlights

MLS® Number
X12945216
Type
Single Family
Community Name
818 - Rideau Lakes (Bastard) Twp
Ownership Type
Freehold
Land Size
196.9 x 476.5 FT|2 - 4.99 acres
Parking Space Total
9

Building

Building Type
House
Storeys
1.50
Square Footage
2000 - 2500 sqft
Bathrooms Total
3
Bedrooms Above Ground
4
Bedrooms Total
4
Amenities
Fireplace(s) Beach
Exterior Finish
Vinyl siding
Fireplace Present
Yes
Basement Type
Full (Unfinished)
Basement Features
Building Heating Type
Forced air
Heating Fuel
Propane
Building Cooling Type
Central air conditioning

Utilities

Power
Generator
Utility Sewer
Septic System

Room Layout

Bedroom
Second level
4.24 m x 3.94 m
Bedroom
Second level
3.63 m x 4.37 m
Bedroom
Second level
4.38 m x 5.24 m
Living room
Main level
5.45 m x 8.07 m
Dining room
Main level
3.69 m x 4.99 m
Kitchen
Main level
3.69 m x 4.04 m
Primary Bedroom
Main level
4.19 m x 4.51 m
Bedroom
Main level
4.28 m x 5.24 m

Location

Learn more about this property
Listing provided by:
REMAX BOARDWALK REALTY
MLS® number:
X12945216
Agent:
Greg Hamre
*Indicates required field
Name is required
Email is required
Please enter a valid phone number (e.g., 416-111-1111).