Lot 46 Falcon Lane, Russell, Ontario K4R 1E5

Listed for:
$644,900
3 beds
3 baths
Listed 34 days ago
House for rent: Lot 46 Falcon Lane, Russell, Ontario K4R 1E5

View all 18 photos

About

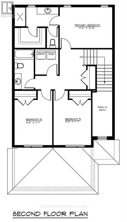
Cross Streets: Directions: Take Trans-Canada Hwy/ON-417 E and N Russell Rd to Central Park Blvd in Russell, Continue on Central Park Blvd. Road not yet done being built. ** Directions: From Ottawa : 417 East bound, take exit 96 (Boundary Rd) towards Marionville, turn right on Boundary Rd, then left on Church St, then drive 1.7km and turn left in Southwest Park. Continue to Falcon St. TO BE BUILT. This Foxglove model, single family home with attached double car garage at ta reasonable price! This home features an open concept main level filled with natural light, exquisite kitchen with walk-in pantry and large center island. The second level is just as beautiful with its 3 generously sized bedrooms, modern family washroom, second floor laundry facility and to complete a massive 3piece master Ensuite with large integrated walk-in closet. The basement is unspoiled and awaits your final touches! Possibility of having the basement completed for an extra $32,500. This home is not built. Construction for August 2026. *Please note that the pictures are from the same Model but from a different home with some added upgrades.* (id:27476)

Property Highlights

MLS® Number
X9517772
Type
Single Family
Community Name
601 - Village of Russell
Ownership Type
Freehold
Land Size
34 x 110 FT ; 0
Parking Space Total
4

Building

Building Type
House
Storeys
2.00
Square Footage
1500 - 2000 sqft
Bathrooms Total
3
Bedrooms Above Ground
3
Bedrooms Total
3
Amenities
Park
Exterior Finish
Wood, Stone
Fireplace Present
No
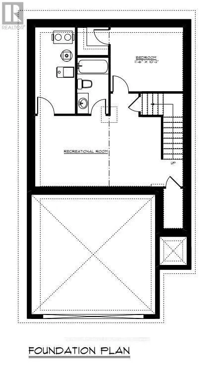
Basement Type
Full (Unfinished)
Basement Features
Building Heating Type
Forced air
Heating Fuel
Natural gas
Building Cooling Type
None, Air exchanger

Utilities

Water
Municipal water
Utility Sewer
Sanitary sewer

Room Layout

Primary Bedroom
Second level
4.11 m x 3.2 m
Bedroom
Second level
2.94 m x 3.53 m
Bedroom
Second level
2.94 m x 3.53 m
Kitchen
Main level
4.34 m x 2.87 m
Dining room
Main level
3.35 m x 2.92 m
Living room
Main level
4.29 m x 3.35 m

Location

Learn more about this property
Listing provided by:
REMAX BOARDWALK REALTY
MLS® number:
X9517772
Agent:
Eric Fournier
*Indicates required field
Name is required
Email is required
Please enter a valid phone number (e.g., 416-111-1111).