56 Nancy Street, Russell, Ontario K0A 1W0

Listed for:
$724,900
2 beds
2 baths
Listed 57 days ago
House for rent: 56 Nancy Street, Russell, Ontario K0A 1W0

View all 30 photos

Learn more about this property
Listing provided by:
EXIT REALTY MATRIX
MLS® number:
X12486532
Agent:
Maggie Tessier
*Indicates required field
Name is required
Email is required
Please enter a valid phone number (e.g., 416-111-1111).

About

Cross Streets: Lyons & St. Thomas. ** Directions: From Notre Dame, Embrun head north on to St Thomas Rd, Turn left onto Lyon then left onto Nancy. Destination is on your left. Step into perfection with this stunning bungalow, where pride of ownership shines in every detail. Set on a premium lot with no rear neighbours, this home pairs elegance, comfort, and everyday functionality in the most captivating way. From the beautiful curb appeal to the meticulously maintained landscaping with irrigation-sprinkler system, its clear this property has been cherished and cared for. Inside, the airy open-concept layout welcomes you with warmth and style. The magazine-worthy kitchen is a true showstopper ,featuring a stylish sit-at island, gas stove, sleek finishes, and all the space you need to cook, entertain, and create lasting memories. The cozy living room and elegant dining space, framed by bright windows and patio doors, flow effortlessly together - perfect for gatherings big or small. On the main level, the primary bedroom retreat impresses with a spacious walk-in closet and spa-like ensuite. A second bedroom and full family bathroom offer comfort for loved ones or guests, while main-floor laundry and direct garage access add to the everyday ease of living. Step outside to your private paradise - a fully fenced oversized yard with wood-look PVC fencing and a striking quarry stone retaining wall. Thoughtfully landscaped and designed for both beauty and function, this backyard is a true extension of the home. Enjoy summer BBQs under the covered deck or on the expansive 16' x 16' interlock patio, unwind in the charming gazebo, and let the built-in sprinkler system keep your lawn effortlessly lush and green. Designed for both lively family gatherings and quiet evenings under the stars, this outdoor retreat truly has it all. This isn't just a home - it's a lifestyle. Don't miss your opportunity to own this Embrun gem! (id:27476)

Property Highlights

MLS® Number
X12486532
Type
Single Family
Community Name
602 - Embrun
Ownership Type
Freehold
Land Size
49.2 x 129.8 FT
Parking Space Total
6

Building

Building Type
House
Storeys
1.00
Square Footage
1100 - 1500 sqft
Bathrooms Total
2
Bedrooms Above Ground
2
Bedrooms Total
2
Amenities
Park, Schools
Exterior Finish
Brick, Vinyl siding
Fireplace Present
No
Basement Type
Full (Unfinished)
Basement Features
Building Heating Type
Forced air
Heating Fuel
Natural gas
Building Cooling Type
Central air conditioning

Utilities

Water
Municipal water
Utility Sewer
Sanitary sewer

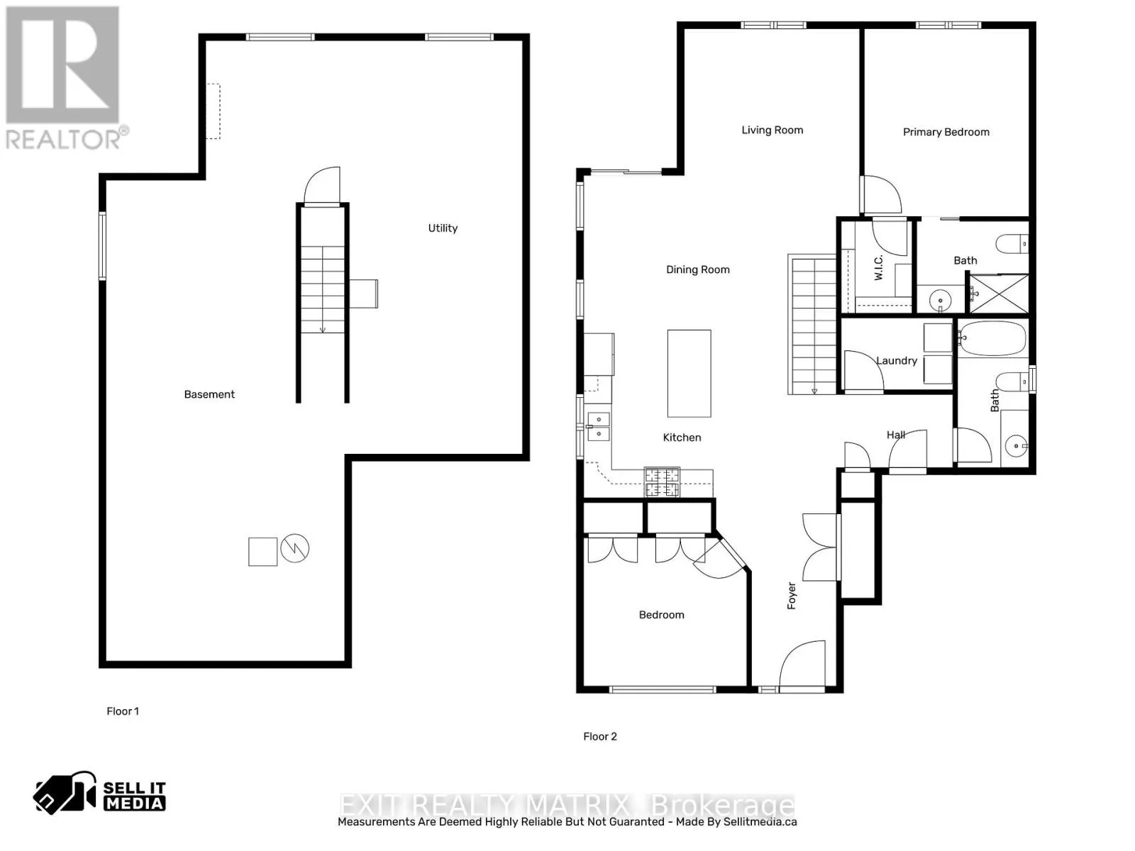
Room Layout

Recreational, Games room
Lower level
13.25 m x 5.09 m
Kitchen
Main level
3.48 m x 3.16 m
Dining room
Main level
5.39 m x 3.27 m
Living room
Main level
4 m x 3.74 m
Primary Bedroom
Main level
4 m x 3.52 m
Bathroom
Main level
2.4 m x 1.96 m
Bedroom
Main level
3.48 m x 3.16 m
Laundry room
Main level
2.39 m x 1.56 m
Bathroom
Main level
3.2 m x 1.52 m

Location