404 - 99 St Moritz Trail, Russell, Ontario K0A 1W0

Listed for:
$427,500
2 beds
1 baths
Listed 8 days ago
Apartment for rent: 404 - 99 St Moritz Trail, Russell, Ontario K0A 1W0

View all 26 photos

Learn more about this property
Listing provided by:
ROYAL LEPAGE PERFORMANCE REALTY
MLS® number:
X12545222
Agent:
Mathieu Fournier
*Indicates required field
Name is required
Email is required
Please enter a valid phone number (e.g., 416-111-1111).

About

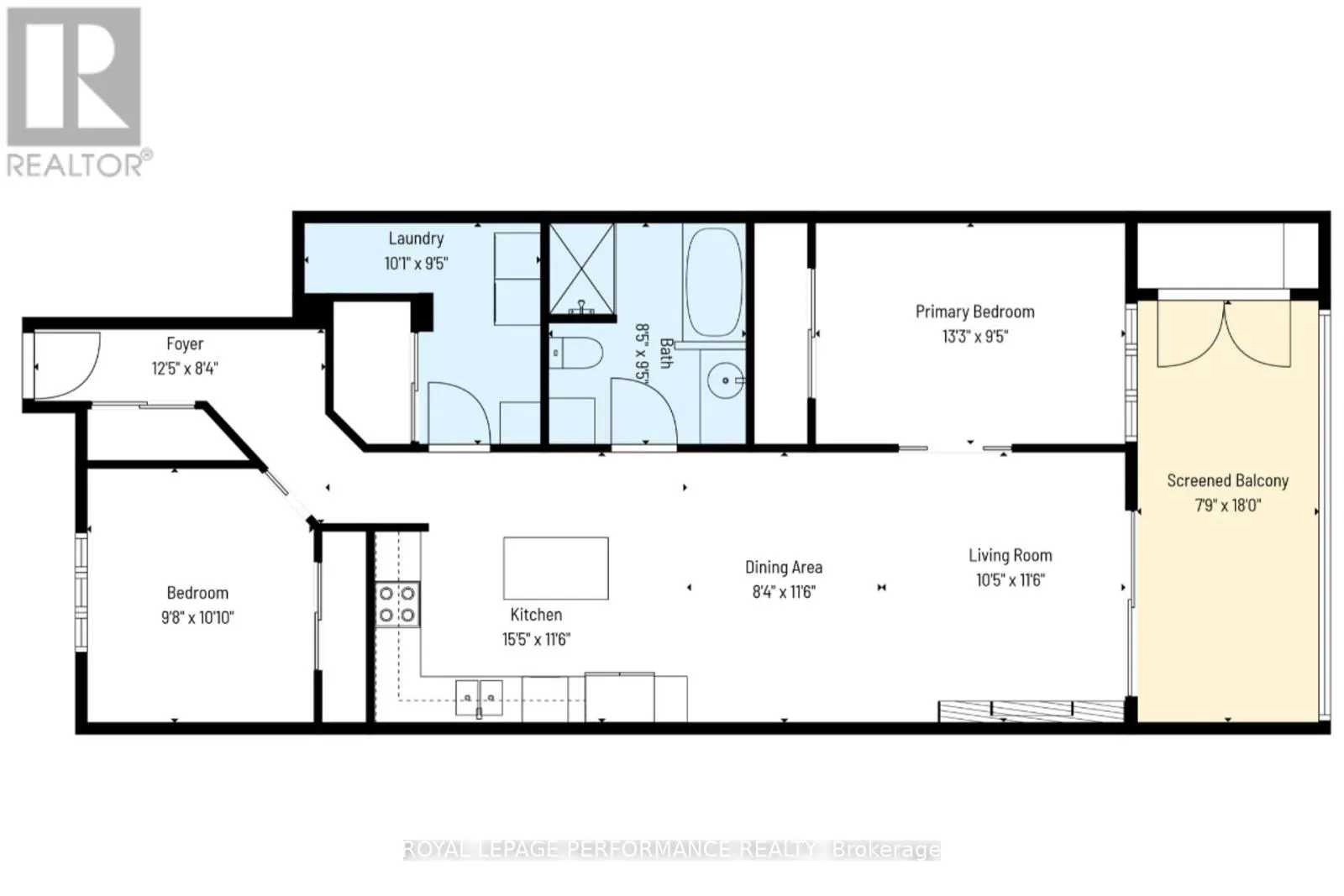
Cross Streets: Ste Marie St/St-Moritz Trail. ** Directions: From the HW417 E, take exit 88 (Vars/Embrun), turn right on St-Guillaume and continue straight. Turn left at the third round about onto Notre Dame street. Continue straight then turn right on Ste-Marie then left onto St Moritz. Welcome to 99 St-Moritz, unit #404 - an incredible 2023-built, spacious 1,050 sq ft, 2-bedroom, 1-bathroom main-floor condo unit! This home offers the perfect blend of modern comfort and a peaceful, nature-filled setting (backing directly onto a forest). The bright, open-concept layout is beautifully designed with quality finishes throughout. The kitchen, living, and dining areas flow effortlessly together, creating a space that feels both spacious and inviting-ideal for relaxing at home or hosting family and friends. Radiant heated floors add a cozy touch during the colder months, and the solid concrete construction ensures exceptional soundproofing for quiet, comfortable living. Enjoy the window-enclosed balcony, perfect for relaxing with a beautiful view in nature. With generous storage and year-round forest views, it's truly a serene retreat-perfect for morning coffee, reading, or simply enjoying the changing seasons. You'll also appreciate the in-unit laundry, and the convenience of a dedicated parking space located directly in front of the unit. Situated in the heart of Embrun, this location offers the best of both worlds: peaceful natural surroundings with easy access to convenient amenities. Enjoy nearby walking trails, parks, reputable schools, the sports complex, great restaurants, Embrun's famous bike path, and a quick drive to the 417-highway. Move-in ready, thoughtfully finished, and surrounded by nature - book your showing today! (id:27476)

Property Highlights

MLS® Number
X12545222
Type
Single Family
Community Name
602 - Embrun
Maintenance Fee
250.00
Ownership Type
Condominium/Strata
Parking Space Total
1

Building

Building Type
Apartment
Square Footage
1000 - 1199 sqft
Bathrooms Total
1
Bedrooms Above Ground
2
Bedrooms Total
2
Amenities
Fireplace(s), Storage - Locker
Exterior Finish
Stone, Wood
Fireplace Present
Yes
Basement Type
None
Basement Features
Building Heating Type
Radiant heat
Heating Fuel
Natural gas
Building Cooling Type
Wall unit, Air exchanger

Location