450 Provence Avenue, Russell, Ontario K0A 1W0

Listed for:
$784,000
4 beds
3 baths
Listed 27 days ago
House for rent: 450 Provence Avenue, Russell, Ontario K0A 1W0

View all 30 photos

About

Cross Streets: Ste. Therese Blvd. ** Directions: From Notre Dame head south onto St Jacques Rd then right onto Ste. Therese Blvd, then right onto Provence Ave. OPEN HOUSE Sun Feb 15, 2-4pm. Where timeless character meets modern design, this stunning Embrun home exudes style & warmth in every corner. From the moment you step inside, the magazine-worthy main floor impresses with its bright, open-concept layout & thoughtfully curated finishes throughout. The dream kitchen anchors the space, featuring a large center island, a walk-in pantry, and seamless flow into the sun-filled dining area with patio doors-perfect for entertaining & everyday living. The cozy yet modern living room is highlighted by an elegant gas fireplace, creating a warm & inviting atmosphere. A convenient main-floor powder room, inside access to the garage, and a dedicated fourth bedroom-currently used as a bright home office-complete this level. Upstairs, you'll find three generously sized bedrooms, two full bathrooms, and second-floor laundry for added convenience. The primary suite is a true retreat, offering a sleek five-piece ensuite, a spacious walk-in closet, and showcasing premium upgrades including a stunning white oak staircase and wide-plank 7" engineered white oak flooring-high-end finishes that elevate the home's overall design. Nearly all lighting, mirrors, and bathroom and kitchen fixtures have been thoughtfully upgraded, adding to the home's polished, modern feel. Outside, the backyard is designed for both function and relaxation, featuring a large 18-foot interlock patio complete with a TojaGrid pergola secured with sono tubes beneath the patio, along with retractable privacy side and top screens. A designated Christmas light plug on the soffit, controlled by an interior switch, adds a thoughtful seasonal touch. The partially fenced yard offers the ideal setting for outdoor gatherings, summer BBQs, and relaxing evenings. Ideally located in a prime Embrun neighbourhood close to parks, schools, recreation facilities, shopping, & all essential amenities-this exceptional home truly checks every box. Don't miss your chance to make it yours. (id:27476)

Property Highlights

MLS® Number
X12691656
Type
Single Family
Community Name
602 - Embrun
Ownership Type
Freehold
Land Size
50 x 109.8 FT
Parking Space Total
6

Building

Building Type
House
Storeys
2.00
Square Footage
1500 - 2000 sqft
Bathrooms Total
3
Bedrooms Above Ground
4
Bedrooms Total
4
Amenities
Fireplace(s) Schools, Park, Place of Worship
Exterior Finish
Stone, Vinyl siding
Fireplace Present
Yes
Basement Type
N/A (Unfinished)
Basement Features
Building Heating Type
Forced air
Heating Fuel
Natural gas
Building Cooling Type
Central air conditioning, Air exchanger

Utilities

Water
Municipal water
Utility Sewer
Sanitary sewer

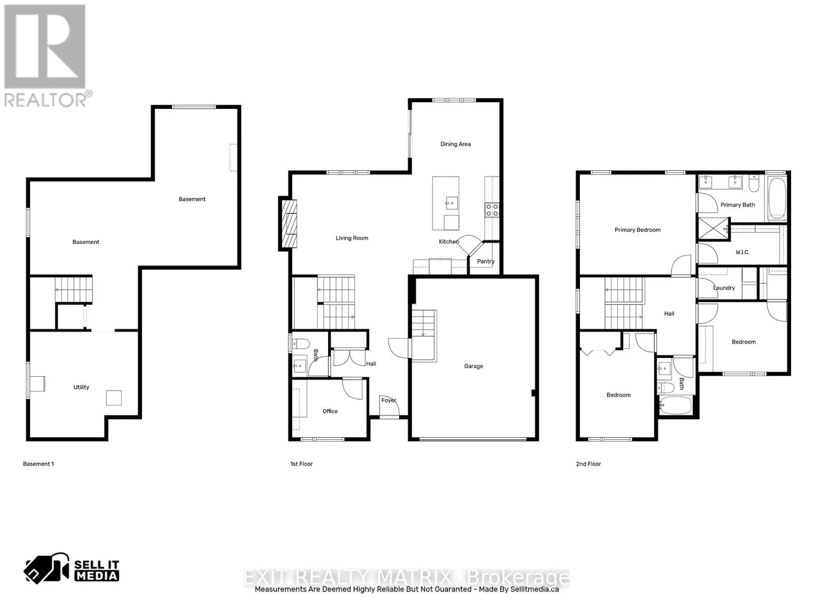
Room Layout

Living room
Main level
6.27 m x 4.85 m
Kitchen
Main level
4.05 m x 3.55 m
Dining room
Main level
3.55 m x 2.93 m
Bedroom
Main level
3.01 m x 2.34 m
Bathroom
Main level
1.84 m x 1.46 m
Primary Bedroom
Main level
4.68 m x 4.06 m
Laundry room
Upper Level
2.38 m x 1.31 m
Bathroom
Upper Level
3.6 m x 2.61 m
Bedroom
Upper Level
3.6 m x 2.84 m
Bedroom
Upper Level
4.28 m x 3.01 m
Bathroom
Upper Level
2.33 m x 1.58 m

Location

Learn more about this property
Listing provided by:
EXIT REALTY MATRIX
MLS® number:
X12691656
Agent:
Maggie Tessier
*Indicates required field
Name is required
Email is required
Please enter a valid phone number (e.g., 416-111-1111).