139 St Thomas Street, Russell, Ontario K0A 3H0

Listed for:
$1,498,000
6 beds
3 baths
Listed 48 days ago
House for rent: 139 St Thomas Street, Russell, Ontario K0A 3H0

View all 44 photos

About

Cross Streets: Russland Rd. ** Directions: From Russland Rd turn onto St Thomas Rd. Luxury 2024 Custom Bungalow Private Cul-de-Sac in Vars. Welcome to an exceptional modern estate designed for those who value space, privacy, and refined living. Built in 2024 on 2 acres and surrounded by mature trees with no rear neighbours, this impressive 6-bedroom, 4-bathroom bungalow offers the perfect blend of elegance and comfort. Step inside to a grand entrance and a stunning open-concept layout finished with rich hardwood flooring throughout. A striking double-sided fireplace serves as a dramatic architectural centerpiece, creating warmth and ambiance from both the living room and the kitchen/dining area. Electric blinds in the living room add modern convenience. The chef-inspired kitchen is truly a showpiece with double oversized islands, premium finishes, a dedicated drinks and coffee bar, large wine fridge, and an extraordinary walk-in pantry featuring a full prep kitchen complete with second oven, fridge, and sink. Designed for entertaining and family gatherings, this space is pure culinary luxury. The main level offers 4 spacious bedrooms, including a breathtaking primary suite with spa-like ensuite. A laundry room, powder room, and additional full bathroom complete the level. The fully finished basement adds 2 more bedrooms, a full bathroom, and excellent in-law suite potential with existing stove, washer, and dryer hookups. Enjoy the large covered heated deck with motorized blinds overlooking your private wooded backdrop. Heated attached garage. High-end finishes throughout. A rare opportunity to own a sophisticated turnkey property just minutes from the city. (id:27476)

Property Highlights

MLS® Number
X12827668
Type
Single Family
Community Name
603 - Russell Twp
Ownership Type
Freehold
Land Size
150 x 580 FT|2 - 4.99 acres
Parking Space Total
14

Building

Building Type
House
Storeys
1.00
Square Footage
2500 - 3000 sqft
Bathrooms Total
3
Bedrooms Above Ground
4
Bedrooms Total
6
Amenities
Fireplace(s)
Exterior Finish
Stone, Vinyl siding
Fireplace Present
Yes
Basement Type
Full (Finished)
Basement Features
Building Heating Type
Forced air, Radiant heat, Not known
Heating Fuel
Propane
Building Cooling Type
Central air conditioning, Air exchanger

Utilities

Utility Sewer
Septic System

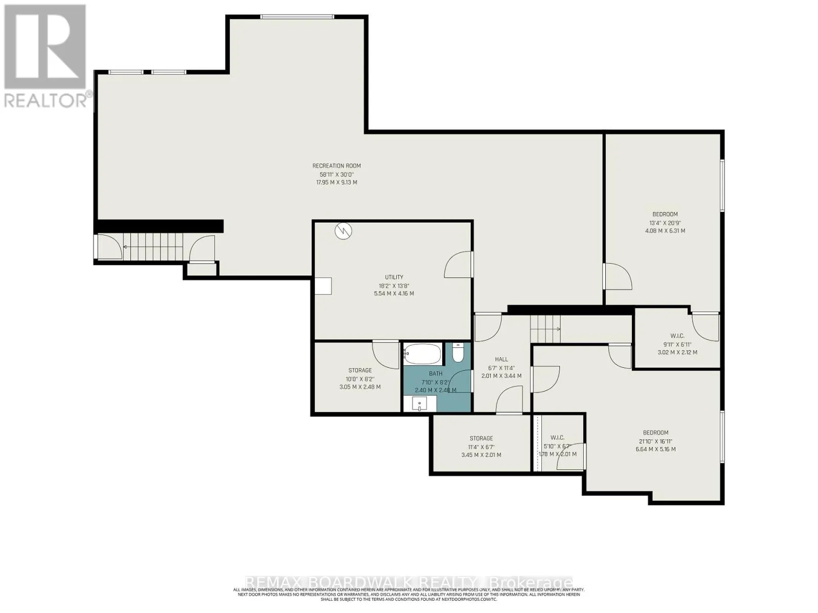
Room Layout

Recreational, Games room
Basement
17.95 m x 9.13 m
Bedroom
Basement
4.08 m x 6.31 m
Bedroom 2
Basement
6.64 m x 5.16 m
Bathroom
Basement
2.4 m x 2.48 m
Foyer
Basement
2.01 m x 3.44 m
Utility room
Basement
5.54 m x 4.16 m
Other
Basement
3.05 m x 2.48 m
Other
Basement
3.45 m x 2.01 m
Kitchen
Main level
5.33 m x 5.36 m
Bathroom
Main level
2.21 m x 2.88 m
Laundry room
Main level
1.55 m x 1.88 m
Kitchen
Main level
4.24 m x 2.55 m
Dining room
Main level
7.08 m x 2.38 m
Living room
Main level
6.47 m x 7.61 m
Foyer
Main level
4.54 m x 2.79 m
Primary Bedroom
Main level
5.32 m x 4.29 m
Bedroom 2
Main level
3.56 m x 4.63 m
Bedroom 3
Main level
3.56 m x 4.04 m
Bedroom 4
Main level
3.35 m x 4.17 m
Bathroom
Main level
4.89 m x 5.52 m

Location

Learn more about this property
Listing provided by:
REMAX BOARDWALK REALTY
MLS® number:
X12827668
Agent:
Eric Fournier
*Indicates required field
Name is required
Email is required
Please enter a valid phone number (e.g., 416-111-1111).