72 Chateauguay Street, Russell, Ontario K0A 1W0

Listed for:
$686,000
3 beds
3 baths
Listed 41 days ago
House for rent: 72 Chateauguay Street, Russell, Ontario K0A 1W0

View all 4 photos

About

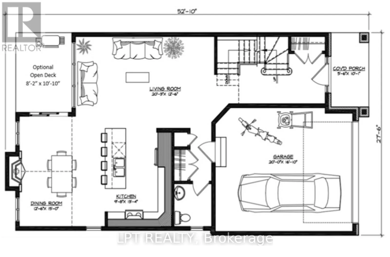
Cross Streets: Manoir. ** Directions: From St Thomas, head west on Chateauguay. FULL HST REBATE INCLUDED IN LISTING PRICE! OPEN HOUSE Sunday April 19th 1:00pm - 4:00pm AT 63 Chateauguay Street, Embrun Introducing the Modern Sofia, a thoughtfully designed 2-storey home offering 1,703 square feet of comfortable and efficient living space. With 3 bedrooms, 2.5 bathrooms, and a spacious 1.5-car garage, this home is ideal for modern families or first-time buyers looking for a smart, stylish layout. The main floor welcomes you with a bright living room that flows into a side-set kitchen and dining area, creating a defined yet connected living space. Just off the garage, you'll find a convenient powder room perfect for guests and day-to-day practicality. Upstairs, the primary suite offers a peaceful escape, complete with a private ensuite bathroom. The Modern Sofia blends functional living with clean, contemporary design for a space you'll love to come home to. Constructed by Leclair Homes, a trusted family-owned builder known for exceeding Canadian Builders Standards. Specializing in custom homes, two-storeys, bungalows, semi-detached, and now offering fully legal secondary dwellings with rental potential in mind, Leclair Homes brings detail-driven craftsmanship and long-term value to every project. (id:27476)

Property Highlights

MLS® Number
X12853778
Type
Single Family
Community Name
602 - Embrun
Ownership Type
Freehold
Land Size
45 x 110 FT ; Corner Lot
Parking Space Total
5

Building

Building Type
House
Storeys
2.00
Square Footage
1500 - 2000 sqft
Bathrooms Total
3
Bedrooms Above Ground
3
Bedrooms Total
3
Exterior Finish
Vinyl siding, Stone
Fireplace Present
No
Basement Type
Full (Unfinished)
Basement Features
Building Heating Type
Forced air
Heating Fuel
Natural gas
Building Cooling Type
None

Utilities

Water
Municipal water
Utility Sewer
Sanitary sewer

Room Layout

Primary Bedroom
Second level
4.27 m x 3.66 m
Bedroom 2
Second level
3.05 m x 3.66 m
Bedroom 3
Second level
3.05 m x 3.05 m
Kitchen
Main level
2.74 m x 2.84 m
Living room
Main level
6.32 m x 4.42 m
Dining room
Main level
1.93 m x 2.44 m

Location

Learn more about this property
Listing provided by:
LPT REALTY
MLS® number:
X12853778
Agent:
Ronald Jr. Mccomber-rozon
*Indicates required field
Name is required
Email is required
Please enter a valid phone number (e.g., 416-111-1111).