456 Falcon Lane, Russell, Ontario K4R 1E5

Listed for:
$649,900
3 beds
3 baths
Listed 57 days ago
House for rent: 456 Falcon Lane, Russell, Ontario K4R 1E5

View all 19 photos

About

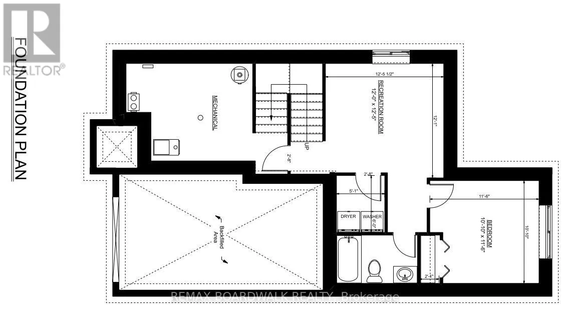
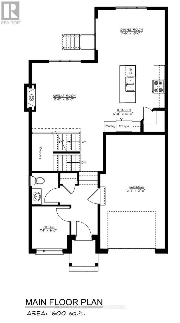
Cross Streets: Southwest Blvd. ** Directions: From Ottawa : 417 East bound, take exit 96 (Boundary Rd) towards Marionville, turn right on Boundary Rd, then left on Church St, then drive 1.7km and turn left in Southwest Blvd. Continue to Falcon St. The Mayflower is sure to impress! The main floor consist of an open concept which included a large gourmet kitchen with walk-in pantry and central island, sun filled dinning room with easy access to the back deck, a large great room, and even a main floor office. The second level is just as beautiful with its 3 generously sized bedrooms, modern family washroom, second floor laundry facility and to complete the master piece a massive 3 piece master Ensuite with large integrated walk-in closet. The basement is unspoiled and awaits your final touches! Possibility of having the basement completed for an extra $32,500. This home is not built. Construction for October 2026. *Please note that the pictures are from the same Model but from a different home with some added upgrades.* (id:27476)

Property Highlights

MLS® Number
X12899456
Type
Single Family
Community Name
601 - Village of Russell
Ownership Type
Freehold
Land Size
36.1 x 109.9 FT ; 0
Parking Space Total
4

Building

Building Type
House
Storeys
2.00
Square Footage
1500 - 2000 sqft
Bathrooms Total
3
Bedrooms Above Ground
3
Bedrooms Total
3
Amenities
Park
Exterior Finish
Wood, Stone
Fireplace Present
No
Basement Type
Full (Unfinished)
Basement Features
Building Heating Type
Forced air
Heating Fuel
Natural gas
Building Cooling Type
None, Air exchanger

Utilities

Water
Municipal water
Utility Sewer
Sanitary sewer

Room Layout

Primary Bedroom
Second level
3.78 m x 3.96 m
Bedroom
Second level
3.5 m x 3.4 m
Bedroom
Second level
4.03 m x 3.63 m
Kitchen
Main level
3.86 m x 3.96 m
Dining room
Main level
3.86 m x 3.04 m
Great room
Main level
3.78 m x 3.96 m
Office
Main level
2.15 m x 2.43 m

Location

Learn more about this property
Listing provided by:
REMAX BOARDWALK REALTY
MLS® number:
X12899456
Agent:
Eric Fournier
*Indicates required field
Name is required
Email is required
Please enter a valid phone number (e.g., 416-111-1111).

Street Spotlight - For sale