461 Northport Drive, Saugeen Shores, Ontario N0H 2C8

Listed for:
$939,900
4 beds
3 baths
Listed 5 days ago
House for rent: 461 Northport Drive, Saugeen Shores, Ontario N0H 2C8

View all 17 photos

About

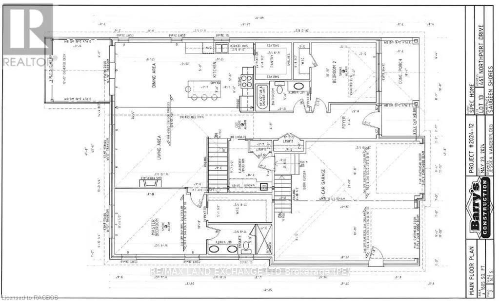
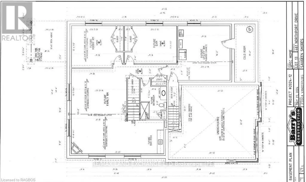
Bruce Street North turn right on Northport Drive to sign on left 461 Northport Drive (Lot 13) The kitchen is in and this brand new bungalow could be your new home at 461 Northport Drive in Port Elgin in just 30 days. One of the Builder's most popular plans; could it be the 6'8 x 6'8 walk in pantry, large finished basement, covered front porch, vaulted ceiling in the LR / DR & Kitchen or covered back deck that make it a best seller. The main floor boasts 1605 sqft of living space and the basement is accessible from the 2 car garage that measures 25'8 x 21'10. Standard features include Quartz kitchen counter tops, gas fireplace, central air, main floor laundry with cabinets for added storage, automatic garage door openers, double concrete drive, sodded yard and more. HST is in addition to the asking price. The Builder will co operate with the Buyers to secure the HST rebate provided it is approved by the Government and the Buyer is entitled to it. Price subject to change without notice (id:27476)

Property Highlights

MLS® Number
X11822708
Type
Single Family
Community Name
Saugeen Shores
Ownership Type
Freehold
Land Size
48.7 x 132.2 FT|under 1/2 acre
Parking Space Total
4

Building

Building Type
House
Storeys
1.00
Square Footage
1500 - 2000 sqft
Bathrooms Total
3
Bedrooms Above Ground
2
Bedrooms Total
4
Amenities
Fireplace(s) Schools
Exterior Finish
Stone, Vinyl siding
Fireplace Present
Yes
Basement Type
N/A, N/A
Basement Features
Walk-up, Separate entrance
Building Heating Type
Forced air
Heating Fuel
Natural gas
Building Cooling Type
Central air conditioning, Air exchanger

Utilities

Water
Municipal water
Utility Sewer
Sanitary sewer

Room Layout

Bedroom 4
Basement
3.38 m x 4.01 m
Utility room
Basement
4.72 m x 4.93 m
Family room
Basement
2.95 m x 3.1 m
Family room
Basement
7.67 m x 5 m
Bedroom 3
Basement
3.76 m x 4.01 m
Foyer
Main level
1.93 m x 2.57 m
Bedroom 2
Main level
3.33 m x 3.63 m
Laundry room
Main level
2.39 m x 2.92 m
Primary Bedroom
Main level
3.63 m x 5 m
Great room
Main level
4.19 m x 5.13 m
Dining room
Main level
3.81 m x 3.94 m
Kitchen
Main level
3.81 m x 3.81 m

Location

Learn more about this property
Listing provided by:
RE/MAX Land Exchange Ltd.
MLS® number:
X11822708
Agent:
Debbie Duplantis
*Indicates required field
Name is required
Email is required
Please enter a valid phone number (e.g., 416-111-1111).

Street Spotlight - For sale